| C H A P T E R 3 |
|
Connecting the Sun StorageTek 5320 NAS Appliance |
This chapter provides comprehensive instructions for connecting the Sun StorageTek 5320 NAS Appliance, the Sun StorageTek 5320 RAID Controller Units, and the optional Sun StorageTek 5320 Expansion Units. It also provides initial configuration instructions for the system.
This chapter contains the following sections:
|
Note - The Sun StorageTek 5320 NAS Appliance ships with the operating system installed. |
Before connecting the system, you must install the units in the rack. Refer to Installing Servers and Back-End Storage for rackmount instructions.
This section describes how to cable the Sun StorageTek 5320 NAS Appliance to backend storage, for several different configurations.
This section includes the following tasks:
|
Note - HBA cards for storage connections are inserted only in PCI slot 1 (PCI1) and, optionally, PCI slot 0 (PCI0) of the Sun StorageTek 5320 NAS Appliance. |
This section contains details on the following:
Use the instructions in this section if you are connecting one controller unit to the Sun StorageTek 5320 NAS Appliance.
For a Sun StorageTek 5320 NAS Appliance with one dual port FC HBA card in PCI slot 1 (FIGURE 3-2):
1. Connect the HBA port 1 (top port) on the Sun StorageTek 5320 NAS Appliance to the Controller A Ch 1 port.
2. Connect the HBA port 2 (bottom port) on the Sun StorageTek 5320 NAS Appliance to the Controller B Ch 1 port.
|
Note - The Ch 2 ports on controller A and controller B remain empty. |
|
Note - The preceding figure is for illustrative purposes only. The units have more space between them when they are installed in a cabinet. |
Use the instructions in this section if you are connecting a Sun StorageTek 5320 NAS Appliance with two dual port FC HBA cards in PCI slots 1 and 0.
1. Connect the HBA port 1 (top port) of the first HBA card (PCI1) to the Controller A Ch 1 port.
2. Connect the HBA port 1 (top port) of the second HBA card (PCI0) to the Controller B Ch 1 port.
|
Note - The preceding figure is for illustrative purposes only. The units have more space between them when they are installed in a cabinet. |
Use the instructions in this section if you are connecting two controller units to the Sun StorageTek 5320 NAS Appliance.
|
Note - The Sun StorageTek 5320 NAS Appliance must have two HBA cards (one in PCI slot 1 and one in PCI slot 0) to connect to two controller units. |
1. Connect the HBA port 1 (top port) of the first HBA card (PCI1) to the Controller A Ch 1 port on the first (bottom) controller unit (Unit 1).
2. Connect the HBA port 1 of the second HBA card (PCI0) to the Controller B Ch 1 port on Unit 1.
3. Connect the HBA port 2 of the first HBA card to the Controller B Ch 1 port on the second (top) controller unit (Unit 2).
4. Connect the HBA port 2 of the second HBA card to the Controller A Ch 1 port on Unit 2.
|
Note - The preceding figure is for illustrative purposes only. The units have more space between them when they are installed in a cabinet. |
A controller unit uses Controller A and Controller B expansion ports (P1 and P2) to connect to FC-AL ports (1A and 1B) at the back of an expansion unit. Refer to FIGURE 3-5 for port locations.
To connect a controller unit and one expansion unit, two 2-meter fiber cables are required. Refer to FIGURE 3-6.
1. Connect one cable between the A side expansion port P1 of the controller unit and the A side port 1B of the expansion unit.
2. Connect one fiber cable between the B side expansion port P1 of the controller unit and the B side port 1B of the expansion unit.
To connect a controller unit and two expansion units, four 2-meter fiber cables are required. Refer to FIGURE 3-7.
1. Connect one fiber cable between the A side expansion port P1 of the controller unit and the A side port 1B of expansion unit 1.
2. Connect one fiber cable between the A side expansion port P2 of the controller unit and the A side port 1B of expansion unit 2.
3. Connect one fiber cable between the B side expansion port P1 of the controller unit and the B side port 1B of expansion unit 1.
4. Connect one fiber cable between the B side expansion port P2 of the controller unit and the B side port 1B of expansion unit 2.
To connect a controller unit and three expansion units, six 2-meter fiber cables are required. Refer to FIGURE 3-8.
1. Connect one fiber cable between the A side expansion port P1 of the controller unit and the A side port 1B of expansion unit 1.
2. Connect one fiber cable between the A side expansion port P2 of the controller unit and the A side port 1B of expansion unit 3.
3. Connect one fiber cable between the A side port 1A of expansion unit 1 and the A side port 1B of expansion unit 2.
4. Connect one fiber cable between the B side expansion port P1 of the controller unit and the B side port 1B of expansion unit 2.
5. Connect one fiber cable between the B side expansion port P2 of the controller unit and the B side port 1B of expansion unit 3.
6. Connect one fiber cable between the B side port 1B of expansion unit 1 and the B side port 1A of expansion unit 2.
To connect a controller unit and six expansion units, twelve 2-meter fiber cables are required. Refer to FIGURE 3-9.
1. Connect one fiber cable between the A side expansion port P1 of the controller unit and the A side port 1B of expansion unit 1.
2. Connect one fiber cable between the A side expansion port P2 of the controller unit and the A side port 1B of expansion unit 4.
3. Connect one fiber cable between the A side port 1A of expansion unit 1 and the A side port 1B of expansion unit 2.
4. Connect one fiber cable between the A side port 1A of expansion unit 2 and the A side port 1B of expansion unit 3.
5. Connect one fiber cable between the A side port 1A of expansion unit 4 and the A side port 1B of expansion unit 5.
6. Connect one fiber cable between the A side port 1A of expansion unit 5 and the A side port 1B of expansion unit 6.
7. Connect one fiber cable between the B side expansion port P1 of the controller unit and the B side port 1B of expansion unit 3.
8. Connect one fiber cable between the B side expansion port P2 of the controller unit and the B side port 1B of expansion unit 6.
9. Connect one fiber cable between the B side port 1B of expansion unit 1 and the B side port 1A of expansion unit 2.
10. Connect one fiber cable between the B side port 1B of expansion unit 2 and the B side port 1A of expansion unit 3.
11. Connect one fiber cable between the B side port 1B of expansion unit 4 and the B side port 1A of expansion unit 5.
12. Connect one fiber cable between the B side port 1B of expansion unit 5 and the B side port 1A of expansion unit 6.
You can connect up to six StorageTek 5320 expansion units to a 5300 RAID EU controller enclosure. The following section provides instructions on how to connect single and dual expansion units to a single controller enclosure.
|
Note - Do not cable the expansion units to the controller enclosure if you have not upgraded the existing controller enclosure with the controller firmware revison level 06.19.25.10. If you do not upgrade the firmware on the controller enclosure first, it will not recognize the new expansion units. The required firmware patch can be downloaded from http://sunsolve.sun.com. You should also upgrade the NAS appliance to the latest OS before proceeding. |
Use the following procedure to cable a new single expansion unit to a 5300 RAID EU controller enclosure. Refer to FIGURE 3-10 for port locations.
1. Connect one fiber cable between the A side expansion port 1 of the controller enclosure and the A side port 1B of the expansion unit.
2. Connect one fiber cable between the B side expansion port 1 of the controller enclosure and the B side port 1B of the expansion unit.
Cabling two new expansion units to a 5300 RAID EU controller enclosure differs from cabling a new expansion unit to a new 5320 controller units in that 5300 controller enclosures have only one SFP port on each side of the controller instead of two.
To connect a controller unit and two expansion units, four 2-meter fiber cables are required. Refer to FIGURE 3-11.
1. Connect one fiber cable between the A side expansion port of the controller enclosure and the A side port 1B of expansion unit 1.
2. Connect one fiber cable between the A side port 1A of expansion unit 1 and the A side port 1B of expansion unit 2.
3. Connect one fiber cable between the B side expansion port of the controller enclosure and the B side port 1B of expansion unit 2.
4. Connect one fiber cable between the B side port 1A of expansion unit 2 and the B side port 1B of expansion unit 1.
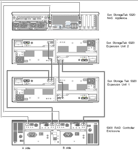
If you have a 5300 controller enclosure with SATA drives, use the following procedure to connect a new 5320 expansion unit to the system. Refer to FIGURE 3-12 for port locations.
|
|
1. Connect one fiber cable between the A side expansion port of the controller enclosure and the A side port 1 of expansion enclosure 1.
2. Connect one fiber cable between the A side port 2 of expansion enclosure 1 and the A side port 1B of expansion unit 2.
3. Connect one fiber cable between the B side expansion port of the controller enclosure and the B side port 1B of expansion unit 2.
4. Connect one fiber cable between the B side port 1A of expansion unit 2 and the B side port 2 of expansion enclosure 1.
After you have cabled the new expansion units in the existing cabinet and powered on the system, you need to upgrade the array firmware on the expansion units and enclosures. The files are included in the Controller Firmware 06.19.25.10 package.
Use the following procedures to connect the Sun StorageTek 5320 NAS Appliance to the network. The available network connectors depend on your system configuration: Fast Ethernet or optical Gigabit Ethernet. Each configuration is described in the following sections.
|
Refer to FIGURE 3-13 for NIC port locations.
1. To connect the Sun StorageTek 5320 NAS Appliance to a 100BASE-T Fast Ethernet network or to a 1000BASE-T Gigabit Ethernet network, connect an RJ-45 unshielded twisted-pair cable from your local area network (LAN) to port NET0 on the back of the Sun StorageTek 5320 NAS Appliance.
2. For additional LAN connections, continue to connect in order: NET1, NET2, and NET3.
|
Refer to FIGURE 3-14 for NIC and optical Gigabit Ethernet port locations.
To connect the Sun StorageTek 5320 NAS Appliance to an optical Gigabit Ethernet network, you must have the optional add-in optical Gigabit Ethernet connections.
Connect a fiber optic cable from the network to the top (LINK A) and connect another fiber optic cable from the network to the bottom (LINK B) optical Gigabit Ethernet connector on the back of the Sun StorageTek 5320 NAS Appliance.
|
Note - Later, when you configure the system (see Initial Sun StorageTek 5320 NAS Appliance Configuration), the LINK A port displays as "Port emf3" and the LINK B port displays as "Port emf4." The NET0 port displays as "Port emc1" and the NET1 port displays as "Port emc2." |
This section describes how to power on the appliance, controller units, and expansion units for the first time. It also details how to power on the system after the initial power-on sequence.
|
Caution - You must follow the correct initial power-on sequence for your configuration. Failure to follow the correct procedure will result in an inoperative system. |
|
Note - If you are using a UPS, connect all units to the UPS. |
|
Note - To achieve fault tolerance, units with two power supplies must receive power from two different AC circuits. |
|
|
Note - If you have an appliance and a controller unit only, use this initial power-on sequence. If you also have one or more expansion units, you must use the procedure described in To Initially Power On the Sun StorageTek 5320 NAS Appliance, Controller Units, and Expansion Units. |
1. Verify that all cables between the Sun StorageTek 5320 NAS Appliance and controller units are properly secured according to the instructions in Connecting the Sun StorageTek 5320 NAS Appliance to the Controller Unit.
2. Power on each controller unit by setting the two power supply switches to the On position.
3. Check that all LEDs on the controller unit front panels have turned solid green, indicating good operation.
4. Verify that the Sun StorageTek 5320 NAS Appliance is connected to the network.
5. Using a pen tip or similar implement, press the recessed Power button (FIGURE 3-15).
Power Button and Front Panel Detail
|
|
Note - If you have a controller unit and one or more expansion units, you must use this initial power-on sequence. If you do not have any expansion units, you must use the procedure described in To Initially Power On the Sun StorageTek 5320 NAS Appliance and Controller Unit. |
1. Verify that all cables between the Sun StorageTek 5320 NAS Appliance, controller units, and expansion units are properly secured according to the instructions in Connecting the Sun StorageTek 5320 NAS Appliance to the Controller Unit and Connecting Controller Units to Expansion Units.
2. Power on each controller unit by setting the two power supply switches to the On position, and then wait at least 3 minutes for all controllers to completely power on.
3. After 3 minutes, check that all LEDs on the controller unit front panels have turned solid green, indicating good operation.
4. Power on the first expansion unit by setting the two power supply switches to the On position.
5. Check that all LEDs on the expansion unit front panel have turned solid green, indicating good operation.
6. Power on any additional expansion units one at a time, making sure that all LEDs on the front panel of each unit turn solid green and waiting at least 30 seconds before you power on the next unit.
7. After all expansion units have been properly powered on, wait 5 minutes, then proceed to Step 9.
8. Verify that the appliance is connected to the network.
9. Power on the appliance by pressing the recessed Power button located on the front panel.
If necessary, use a pen tip or similar implement to depress the button. Refer to FIGURE 3-15 for a detailed view of the front panel.
|
Use this procedure if you need to power on the system again after it has been initially powered on. If the system has never been powered on before, use the procedure described in To Initially Power On the Sun StorageTek 5320 NAS Appliance and Controller Unit or To Initially Power On the Sun StorageTek 5320 NAS Appliance, Controller Units, and Expansion Units.
|
Note - When you power off the controller units and expansion units, wait 5 seconds before you power them back on. If you power the units off and on too quickly, unexpected results can occur. |
1. Verify that all cables between the Sun StorageTek 5320 NAS Appliance, controller units, and expansion units are properly secured according to the instructions in Connecting the Sun StorageTek 5320 NAS Appliance to the Controller Unit and Connecting Controller Units to Expansion Units.
2. Power on each expansion unit by setting the two power supply switches to the On position. Wait at least 30 seconds after powering on each expansion unit.
3. Power on each controller unit by setting the two power supply switches to the On position.
4. Check that all LEDs on the controller unit front panels have turn solid green, indicating good operation.
5. Check that all LEDs on the expansion unit front panels have turn solid green, indicating good operation.
6. Verify that the Sun StorageTek 5320 NAS Appliance is connected to the network.
7. Using a pen tip or similar implement, press the recessed Power button.
Refer to FIGURE 3-15 for a detailed view of the front panel.
To complete the initial Sun StorageTek 5320 NAS Appliance configuration, you must do the following:
To configure the Sun StorageTek 5320 NAS Appliance, you must have an IP address for the system. You can assign an IP address in one of two ways:
To dynamically acquire an IP address through a DHCP server, you must either have an existing DHCP server on the network or have a DHCP relay agent on the network with an accessible DHCP server on another network. If a DHCP server is not available, you must input the IP address through the LCD panel on the front panel of the Sun StorageTek 5320 NAS Appliance.
If your system supports DHCP, the DHCP server automatically assigns an IP address when the Sun StorageTek 5320 NAS Appliance boots for the first time.
If a DHCP server is not available, you must configure the IP address using the LCD panel.
1. Turn on the Sun StorageTek 5320 NAS Appliance and wait for the boot sequence to complete. The LCD panel displays the following:
A: Set Static IP
B: Retry DHCP
2. Press the ENTER button once, and then select A. Network Config.
3. Select A to set Gateway, if needed.
4. Select B to set the port-emc1 that corresponds to NIC port NET0.
5. Enter the following values in the order listed:
To enter data, use the up and down arrow buttons to change digits and press the ENTER button to confirm each digit. The cursor moves to the next digit. Once the last digit is set, press the ENTER button again to proceed to the next network setting. After the broadcast address is set, press the ENTER button to return to the Network Config menu.
When you connect to the Web Administrator for the first time, the Configuration Wizard launches automatically.
1. From a client on the same network, open a web browser and type the IP address of the Sun StorageTek 5320 NAS Appliance in the address or location field, for example:
The Web Administrator GUI for the Sun StorageTek 5320 NAS Appliance appears in your browser with a login screen.
|
Note - After you reach the login screen, you might want to bookmark it or add it to your Favorites list so that you do not have to remember the IP address in the future. |
2. On the Web Admin login screen, click Apply.
The password can be set later. Refer to the Sun StorageTek 5320 NAS OS Administration Guide.
3. On the System Operations, Set Time and Date panel, select the date, the time, and the time zone, and click Apply. Then click Yes to confirm.
This sets the secure clock to the same time and date. Make sure you set the time and date accurately as you can set the secure clock only once.
4. Accept the license agreement to start the Configuration wizard.
If you decline, Web Administrator returns you to the main login screen.
5. Follow the on-screen prompts, entering information as requested.
For more detailed descriptions of the wizard screens, refer to the Sun StorageTek 5320 NAS OS Administration Guide.
6. If your system uses DHCP to assign DNS, WINS, or IP and gateway addresses, these fields are automatically configured. When you reach these screens in the wizard, verify the information, and then continue with the wizard.
|
Note - When adding your DNS server, click Add to ensure the DNS server has been added. |
7. On the Confirmation screen, review the configuration information you have added.
|
Note - Be sure the configuration information is accurate before continuing. |
8. Click Finish on the wizard Confirmation screen.
The system configures the settings and indicates that in the Save Configuration screen.
9. Click Close on the Save Configuration screen.
10. Use Web Admin to configure file systems.
Refer to the Sun StorageTek 5320 NAS OS Administration Guide for information on creating file systems.
Copyright © 2007, Sun Microsystems, Inc. All Rights Reserved.