5 設置場所へのOracle Exadata Database MachineまたはOracle Exadata Storage拡張ラックの配置
この章では、ハードウェアを移動、設置および構成してシステムの電源を投入する方法について説明します。
ノート:
読みやすさを考慮して、Oracle Exadata Database MachineとOracle Exadata Storage拡張ラックの両方に言及する場合、「Oracle Exadataラック」という名前を使用します。
- 安全ガイドラインの確認
Oracle Exadataラックが到着する前に、次の安全上の注意を参照して、設置場所が安全で搬入可能であることを確認する必要があります。 - Oracle Exadataラックの開封
- 割り当てられた空間へのOracle Exadataラックの配置
- Oracle Exadata Database Machineの順応
Oracle Exadata Database Machineには24時間の順応期間をお薦めします。 - システムの最初の電源投入
5.1 安全ガイドラインの確認
Oracle Exadataラックが到着する前に、次の安全上の注意を参照して、設置場所が安全で搬入可能であることを確認する必要があります。
これらの注意を遵守しないと、外傷、機器の損傷または故障につながる可能性があります。
-
換気口をふさがないでください。
-
直射日光の当たる場所または高温になる可能性のある機器の近くにOracle Exadataラックを設置しないでください。
-
ほこりの多い場所、腐食性ガスが発生する場所、潮風が当たる場所にはOracle Exadataラックを設置しないでください。
-
振動の多い場所にOracle Exadataラックを設置しないでください。Oracle Exadataラックは平らな場所に設置してください。
-
適切な接地の電源コンセントを使用してください。共用接地を使用する場合、接地抵抗を10オーム以下にする必要があります。必ず施設管理者または資格を持つ電気技師に建物の接地方法の検証および接地工事を実施してもらってください。
-
Oracle Exadataラックに使用されている各接地線がOracle Exadataラック専用で使用されていることを確認してください。また、機器のラベルに示されている取扱いのノート、警告および指示を遵守していることも確認してください。
-
ケーブルを機器の下に置かないでください。また、ケーブルを張りすぎないでください。
-
電源が投入されている間に電源コードを機器から取り外さないでください。
-
LANケーブルを抜くときにコネクタのロック部に届かない場合は、マイナス・ドライバでロック部を押してケーブルを抜いてください。マイナス・ドライバを使用しないで隙間に無理やり指を入れると、システム・ボードが破損する可能性があります。
-
Oracle Exadataラックの上には何も置かず、ラックの真上で作業をしないでください。
-
特に冬に、室温を急激に上げないでください。突然の温度変化により、Oracle Exadataラックの内部に結露が生じることがあります。サーバー操作の前に十分なウォームアップ時間を設けてください。
-
コピー機、空調装置、溶接機など、大きな電気的ノイズが発生する機器の近くにOracle Exadataラックを設置しないでください。
-
設置場所で静電気が発生しないようにしてください。静電気がOracle Exadataラックに伝わると故障の原因になります。多くの場合、静電気はカーペットで発生します。
-
供給電圧と周波数が、Oracle Exadataラックに示されている電気定格に適合していることを確認してください。
-
ドキュメントの手順で特に指定されていないかぎり、Oracle Exadataラックの開口部には何も挿入しないでください。Oracle Exadataラックには、高電圧の部品が含まれています。Oracle Exadataラックの開口部に金属製の物体や他の導体が挿入されると、回路がショートする可能性があります。これにより、人的傷害、火事、感電および機器の損傷を招くおそれがあります。
-
単相配電ユニット(PDU)を使用する場合、次の点に注意してください。
-
PDU Aの入力0およびPDU Bの入力2を同じ位相にする必要があります。
-
PDU Aの入力1およびPDU Bの入力1を同じ位相にする必要があります。
-
PDU Aの入力2およびPDU Bの入力0を同じ位相にする必要があります。
PDUの外部への入力は分類されます。示されているケーブル接続により、フェイルオーバーに備えてAおよびBの位相のバランスを維持できます。
-
関連項目:
-
ラックに付属する『Important Safety Information for Sun Hardware Systems』(816-7190)
-
Oracle Engineered Systemセーフティおよびコンプライアンス・ガイド、コンプライアンス・モデル番号ESY27
5.2 Oracle Exadataラックの開封
開封場所は、サイト計画プロセス中に決定する必要があります。次の図に、Oracle Exadataラックの発送箱を示します。
- X7以降のラックの発送キットの内容
- X6以前のラックの発送キットの内容
- 発送箱からのOracle Exadataラックの取外し
ここに示すステップを使用してOracle Exadataラックを開梱し、設置場所に移動するための準備を整えてください。
5.2.1 X7以降のラックの発送キットの内容
Oracle Exadata Rack発送キットには、Engineered Systemラックを設置および修理する次の工具および機器が含まれます。
-
開梱工具(ラックの発送キットに同梱)
- 17mmおよび13mmの両口レンチ
- 6mmの六角棒レンチ(長さ5-3/4インチ)
- 8mmの六角棒レンチ(長さ6-3/8インチ)
-
ラック組立工具およびアクセサリ(ラック発送キットに同梱)
- 32個のM6ケージ・ナットとワッシャ
- 32個のM6パン頭ねじ
- 8個のM5ねじ
- 8個の自己タッピング・トルクスねじ
- 4個のPDUブラケット
- 4個のM5ケージ・ナット
- 4本のアースされた電源ケーブル
- 18mmおよび16mmの両口レンチ
- T-40トルクス・ドライバ
- T-25トルクス・ドライバ
- T-15トルクス・ドライバ
- 8mmおよび6mmの六角棒レンチ
- ケージ・ナット・ツール
- 前部ドア、後部ドア、サイド・パネルのロック部のキー
ノート:
次の設置工具は、発送キットには含まれていません。
- プラス・ドライバ(Phillipsの2番)
- 静電気除去リスト・ストラップ
親トピック: Oracle Exadataラックの開封
5.2.2 X6以前のラックの発送キットの内容
Oracle Exadata Rack発送キットには、Engineered Systemラックを設置および修理する次の工具および機器が含まれます。
- 16mmのねじ(Phillipsの2番)
- T30 Torxクランク・レンチ
- T25 Torxクランク・レンチ
- 6mmの六角アレン・レンチ
- SW 12mmの片口レンチ
- 4個のM5 Torxねじを使用する2つの四角のジャンパ金具
- 4個のばねナットを使用する2つのケーブル管理フック
- サイド・パネルの取外し工具
- 前部ドア、後部ドア、サイド・パネルのロック部のキー
- 32個のM6ケージ・ナット
- 32個のM6ねじ
- ケージ・ナットの取付け工具
- SW 17mmの片口レンチは、発送用パレットに付属しています。
ノート:
次の項目は発送キットに含まれません。
- プラス・ドライバ(Phillipsの2番)
- 静電気除去リスト・ストラップ
親トピック: Oracle Exadataラックの開封
5.2.3 発送箱からのOracle Exadataラックの取外し
ここに示すステップを使用してOracle Exadataラックを開梱し、設置場所に移動するための準備を整えてください。
警告:
Oracle Exadataラックの開封および設置は、専門の配送業者に依頼することを強くお薦めします。ラックを揺らしたり傾けたりすると、ラックが倒れて深刻な人的被害や死亡事故が発生する危険性があります。-
次に示すように、梱包品および発送用パレットから慎重にOracle Exadataラックを開封します。
ノート:
発送用の段ボールからラックを開封する前に、段ボール上のラベルに記載されている指示を確認してください。-
発送用の段ボールのひもを取り外します。
-
箱の上部を取り外します。
-
側面および内側上部の段ボールを取り外します。
-
-
発送キットを取り外します。
-
次に示すように、傾斜台を発送用パレットにつなぎます。
-
パレットの側面から傾斜台を取り外します。
-
キャビネットから部品バッグを出します。
-
傾斜台の水平ボルトを調整し、傾斜台をパレットのホイール・トラックにつなぎます。
-
ラックを移動する前に水平調整脚が立っていることを確認します。
-
-
次に示すように、発送用パレットからOracle Exadataラックを慎重に移動します。
-
パレットから外側の取付け金具を外します。
-
パレットから内側の取付け金具を外します。
ノート:
Oracle Exadata Rackの下から取付け金具を外す際は注意してください。内側の取付け金具に届かない場合があります。 -
キャビネットを傾斜路で床レベルまで移動します。ラックを傾斜路で移動する際は3人で行うことをお薦めします。2人が両サイドで、1人が後ろでラックを移動します。
ラックの前面側のキャスタは固定されているため、背面側のキャスタを使用して動かす必要があります。背面からラックを押すと、安全に移動できます。
-
-
発送用パレットにラックを固定するために使用されている取付け金具を保存しておきます。交換金具は注文できないので、取付け金具を捨てないでください。
-
梱包品を適切に再利用します。地域の法律およびガイドラインに従って、梱包材を廃棄します。
関連項目:
-
『Sun Rack IIユーザーズ・ガイド』(
https://docs.oracle.com/cd/E19657-01/html/E29153/index.html) -
X7以降のシステムについては、『Oracle Rack Cabinet 1242ユーザーズ・ガイド』(
http://docs.oracle.com/cd/E85660_01/html/E87280/index.html)を参照してください
親トピック: Oracle Exadataラックの開封
5.3 割り当てられた空間へのOracle Exadataラックの配置
この項では、Oracle Exadataラックを配置、固定および接地する方法について説明します。
- Oracle Exadataラックの移動
- Oracle Exadataラックの固定
設置場所にOOracle Exadata Rackを移動した後、動いたり傾いたりしないようにラックを固定します。 - 接地ケーブルの接続(オプション)
5.3.1 Oracle Exadataラックの移動
次の手順は、Oracle Exadataラックの移動方法を示しています。
-
ドアが完全に閉じていることを確認します。
-
ラックの水平調整および固定脚が上がって邪魔にならないことを確認します。
-
後部から設置場所まで、Oracle Exadataラックを押します。
設置場所までOracle Exadataラックを移動する場合、前方のキャスタは回転しないため、後方のキャスタを動かして進む必要があります。慎重にOracle Exadataラックを押すと、安全に進むことができます。図5-2に、ラックの正しい押し方を示します。
ラックの移動は2人で行うことをお薦めします。1人が前で、もう1人が後ろでラックを移動します。構成されたラックをある場所から別の場所へ移動する場合は、0.65メートル/秒(2.13フィート/秒)未満の速度でゆっくりと注意して移動します。
移動経路を慎重に確認してください。突然の停止や衝撃を与える可能性のある出入口やエレベータ入口などの障害を回避します。円滑な移動を可能にする傾斜台またはリフトを使用して、障害を回避します。
警告:
-
サイド・パネルを押してOracle Exadataラックを移動しないでください。サイド・パネルを押すと、ラックが倒れる可能性があります。これにより、機器の損傷および人的傷害や死に至る危険性があります。
-
ラックが倒れる可能性があるので、Oracle Exadataラックを傾けたり揺らしたりしないでください。
5.3.2 Oracle Exadataラックの固定
設置場所にOracle Exadataラックを移動した後、動いたり傾いたりしないようにラックを固定します。
ラックを床に完全に取り付けるために取付け金具を使用することはお薦めしません。
注意:
取付け金具は、地震に備えてラックを固定したり、ラックを支えたりするためのものではありません。ラックの水平調節脚を使用すると、ラックを固定できます。
- 水平調節脚を使用したOracle Exadataラックの固定
- 水平調節脚を使用したOracle ExadataラックX7以降の固定
ラックには4本の水平調整脚があり、ラックを安定させるために下げることができます。
5.3.2.1 水平調節脚を使用したOracle Exadataラックの固定
Oracle Exadataラックには4本の水平調整脚があり、ラックを安定させるために下げることができます。水平調整脚は、ラックを恒久的に床に固定する場合でも使用できます。4本の水平調節脚で、少なくとも1つの他の支えとラックの負荷を分散できるようにしてください。ラックの負荷を分散するには、次の方法も可能です。
-
キャスタと水平調整脚
水平調整脚を調整するには、次のようにします。
-
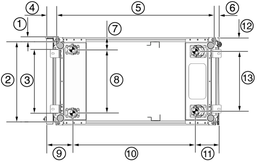
Oracle Exadataラックの下隅にある4本の水平調整脚を探します。図5-3に、ラックの底にある水平調整脚の場所を示します。
-
1: 取付け脚の端からラックの側面までの長さは33.75mm(1.33インチ)です。
-
2: 水平調整脚の外側からの幅は532.5mm(20.96インチ)です。
-
3: 水平調整脚の内側からの幅は429mm(16.89インチ)です。
-
4: 脚の端からラック前面までの距離は73.75 m(2.90インチ)
-
5: 水平調整脚の外側の奥行きは1058.5mm(41.67インチ)です。
-
6: 水平調整脚の端からラックの背面までの長さは32.5mm(1.28インチ)です。
-
7: 前部キャスタの中心からラックの側面までの長さは86.7mm(3.41インチ)です。
-
8: 前部キャスタの中心から中心までの幅は426.6mm(16.80インチ)です。
-
9: 後部キャスタの中心からラックの背面までの長さは173.7mm(6.83インチ)です。
-
10: 前部キャスタから後部キャスタまでの奥行きは828.6mm(32.62インチ)です。
-
11: 後部キャスタからラックの背面までの長さは162.4mm(6.39インチ)です。
-
12: 後部キャスタの中心からラックの側面までの長さは96.4mm(3.80インチ)です。
-
13: 後部キャスタの中心から中心までの幅は407.2mm(16.03インチ)です。
-
-
SW 12mmレンチを使用して、図5-4に示されているように、水平調節脚を床まで下げて各キャスタに負荷を分散します。
親トピック: Oracle Exadataラックの固定
5.3.2.2 水平調節脚を使用したOracle ExadataラックX7以降の固定
ラックには4本の水平調整脚があり、ラックを安定させるために下げることができます。
水平調整脚は、ラックを恒久的に床に固定する場合でも使用できます。4本の水平調節脚にかかる負荷は、キャスタと分散されます。これにより、ラックの設置面積が増えて、安定性が向上し、ラックが動かないようにします。
水平調整脚を調整するには、次のようにします。
-
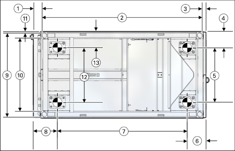
Oracle Exadataラックの下隅にある4本の水平調整脚を探します。次の図に、Oracle Exadataラックの底にある水平調整脚の場所を示します。図の寸法には、ラックに取り付けられているドアが含まれています。
-
1: 脚の端からドア前面までの長さは58mm (2.3インチ)です。
-
2: 水平調整脚の外側の奥行きは1113mm(43.8インチ)です。
-
3: 水平調整脚の端からドア背面までの長さは26mm (1.0インチ)です。
-
4: 後部キャスタの中心からラックの側面までの長さは96.5mm(3.8インチ)です。
-
5: 後部キャスタの中心から中心までの幅は407mm(16.0インチ)です。
-
6: 後部キャスタの中心からドア背面までの長さは142mm (5.6インチ)です。
-
7: 前部キャスタから後部キャスタまでの奥行きは889mm(35.0インチ)です。
-
8: 前部キャスタの中心とドア前面との間の長さは166mm (6.5インチ)です。
-
9: 水平調整脚の外側からの幅は583mm(23.0インチ)です。
-
10: 水平調整脚の内側からの幅は513mm(20.2インチ)です。
-
11: 取付け脚の端からラックの側面までの長さは8.5mm(0.3インチ)です。
-
12: 前部キャスタの中心から中心までの幅は410mm(16.1インチ)です。
-
13: 前部キャスタの中心からラックの側面までの長さは95mm(3.7インチ)です。
-
-
次の図に示すように、6mmの六角レンチまたは自分の指を使用して、4本の水平調節脚を床に下ろすことでラックを固定します。
関連項目:
ラックの仕様については、Oracle Rack Cabinet 1242ユーザーズ・ガイド(http://docs.oracle.com/cd/E85660_01/html/E87280/index.html)を参照してください。
親トピック: Oracle Exadataラックの固定
5.3.3 接地ケーブルの接続(オプション)
Oracle Exadataラックの配電ユニット(PDU)は、電源コードで接地します。電源コードをコンセントに接続する場合、接地用端子から最終的にシャーシの接地が行われます。接地を追加するには、シャーシの接地ケーブルをOracle Exadataラックに接続します。接地点の追加により、漏電電流を効率的に分散できます。
警告:
PDU電源入力リード線および接地ケーブルを使用するには、一般的な接地を基準にする必要があります。そうしないと、接地電位の違いが発生する場合があります。施設のPDUソケットの接地がわからない場合、適切なPDUソケットの接地があることを確認するまで接地ケーブルを設置しないでください。接地電位の違いが明白な場合は、訂正処理を行う必要があります。
ノート:
接地ケーブルはシステムに付属していません。
-
設置場所でデータ・センターの電源が適切に接地されていることを確認します。施設のPDUには接地が必要です。
-
高くした床や電源ソケットなどのすべての接地点で施設の接地を基準としていることを確認します。
-
この設置に直接の金属間接触が行われていることを確認します。製造時に接地ケーブルの接続部分が塗装またはコーティングされている場合があります。
-
図5-7に示されているように、システムのフレームの背面の下部のいずれかの接続ポイントに接地ケーブルを接続します。接続ポイントは、右側のOracle Exadataラックのキャビネットの背面の内側にある調整可能なボルトです。
関連項目:
Oracle Exadataラックを別のOracle Exadataラックに接続する場合は、Oracle Exadata Database Machine拡張およびマルチラック・ケーブリング・ガイドを参照してください。
5.4 Oracle Exadata Database Machineの順応
Oracle Exadata Database Machineには24時間の順応期間をお薦めします。
これは、ラックとケーブルを含むすべてのハードウェアに適用されます。周囲の環境に順応することで、結露による損傷を防ぐことができます。
5.5 システムの最初の電源投入
システムの電源を最初に投入する前に、マシンを調査して電源コードを接続する必要があります。
- 配置後のマシンの調査
この手順は、配置後の電源投入前にOracle Exadataラックの物理システムを視覚的に確認する方法を示しています。 - 電源コードの接続
- Oracle Exadataラックの電源の投入
この手順は、Oracle Exadataラックの電源の投入方法を示しています。
5.5.1 配置後のマシンの調査
この手順は、配置後の電源投入前にOracle Exadataラックの物理システムを視覚的に確認する方法を示しています。
-
損傷がないか、ラックを確認します。
-
ねじの緩みまたは欠落がないか、ラックを確認します。
-
注文した構成かどうか、Oracle Exadataラックを確認します。梱包品の側面のCustomer Information Sheet(CIS)を参照してください。
-
次に示すように、すべてのケーブル接続がしっかりと固定されていることを確認します。
-
電力ケーブルを確認します。データ・センター施設の電源用に正しいコネクタが用意されていることを確認します。
-
ネットワーク・データ・ケーブルを確認します。
-
-
ケーブル・アクセスと通気のために設置場所のタイルの配置を確認します。
-
Oracle Exadataラックの前面に流入するデータ・センターの通気を確認します。
関連項目
親トピック: システムの最初の電源投入
5.5.3 Oracle Exadataラックの電源の投入
この手順は、Oracle Exadataラックの電源の投入方法を示しています。
ノート:
Oracle Exadata Database Machine X2-8フル・ラック・データベース・サーバーは、通常のBIOS POSTテストを使用した起動に最大15分かかる場合があります。-
一度に1つずつPDU Bブレーカの電源を投入します。PDU Bは、背面から見てラックの右側にあります。次の図に示されているように、ブレーカはOracle Exadataラックのキャビネットの背面にあります。トグル・スイッチのON(|)を押します。ブレーカがONになると、ブレーカがPDU側で点灯します。
-
所定の電源LEDがオンになっていることを確認します。LEDの場所は次のとおりです。
-
データベース・サーバー: 右手LED
-
ストレージ・サーバー: 上のLED
-
Ciscoイーサネット・スイッチ: 左LED(前方からの視点)は緑色で、他のLEDは赤色です
-
InfiniBand Network Fabricスイッチ: 左LED (前方からの視点)のラベルはPS0、右LED (前方からの視点)のラベルはPS1です。
-
RoCE Network Fabricスイッチ: 左LED (前方からの視点)のラベルはP1、右LED (前方からの視点)のラベルはP2です。
-
Oracle Exadata Database Machine X2-2のKVMスイッチ: 下LED B
-
Oracle Exadata Database Machine X2-2のKMMスイッチ: PDU Bのみ
-
-
電力ケーブルをPDU Aに接続します。電力ケーブルを接続する前に、ブレーカ・スイッチがOFFになっていることを確認します。
-
一度に1つずつPDU Aブレーカの電源を投入します。
-
所定のLEDがオンになっていることを確認します。
-
ラックのすべてのケーブル接続を目視で確認します。コネクタを押して接続を確認しないでください。
-
すべてのシステムのOK LEDがスタンバイで点滅していることを確認します。スタンバイ・モードで3秒に1回、OK LEDが0.1秒点滅します。ILOMの起動時に、OKのLEDは点滅しません。2、3分後にスタンバイ・モードに移行するまで、LEDは点灯しません。
関連項目
親トピック: システムの最初の電源投入








