JavaScript is required to for searching.
Omitir vínculos de navegación
Salir de la Vista de impresión
Manual de servicio del cliente de Oracle® ZFS Storage Appliance, versión 2013.1.3.0

Para controladores ZS4-4, ZS3-x y 7x20, y estantes de discos Sun Disk Shelf y DE2-24

Red de tecnología de Oracle
Biblioteca
PDF
Vista de impresión
Comentarios
search filter icon
search icon

Información del documento

Introducción

Mantenimiento de hardware

Descripciones generales del hardware

Descripción general del hardware de ZS4-4

Descripción general del controlador ZS4-4

Panel frontal de ZS4-4

Panel posterior de ZS4-4

Puertos Ethernet de ZS4-4

Puerto de gestión de red de ZS4-4

Puerto de gestión serie de ZS4-4

HBA SAS-2 4x4 de ZS4-4

Numeración de ranuras de E/S PCIe de ZS4-4

Orden de ranuras PCIe de ZS4-4

Configuraciones PCIe básicas y opcionales de ZS4-4

Componentes internos del controlador ZS4-4

Memoria y CPU de ZS4-4

Subsistema de refrigeración de ZS4-4

Almacenamiento conectado de ZS4-4

Descripción general del hardware ZS3-4

Descripción general del controlador ZS3-4

Dimensiones del chasis de ZS3-4

Panel frontal de ZS3-4

Unidades de sistema de ZS3-4

Panel posterior de ZS3-4

HBA SAS-2 4x4 de ZS3-4

Especificaciones eléctricas de ZS3-4

Placas internas de ZS3-4

Componentes de ZS3-4

CPU y memoria de ZS3-4

Módulos de ventiladores de ZS3-4

Opciones de NIC/HBA de ZS3-4

Conectores de ZS3-4

Opciones PCIe de ZS3-4

Orden de ranuras PCIe de ZS3-4

Almacenamiento conectado de ZS3-4

Descripción general del hardware ZS3-2

Descripción general del controlador ZS3-2

Panel frontal del controlador ZS3-2

Panel posterior de ZS3-2

HBA SAS-2 4x4 de ZS3-2

Conector de gestión en serie de ZS3-2

Conector de gestión de red de ZS3-2

Puertos Ethernet de ZS3-2

Puertos de E/S de cluster de ZS3-2

Desconexión del cable RJ-45 del puerto serie del cluster

Especificaciones físicas de ZS3-2

Especificaciones eléctricas de ZS3-2

Emisiones de ruido acústico de ZS3-2

Componentes internos de ZS3-2

Almacenamiento, energía y componentes del ventilador de ZS3-2

Cables internos de ZS3-2

Placa base, memoria y tarjetas PCIe de ZS3-2

CPU y memoria de ZS3-2

Opciones de NIC/HBA de ZS3-2

Configuración de elevador PCIe de ZS3-2

Opciones PCIe de ZS3-2

Instalación de tarjetas de ranura PCIe opcionales en orden

Organizador de cables opcional de ZS3-2

Almacenamiento conectado de ZS3-2

Descripción general del hardware 7420

Descripción general del dispositivo

Chasis

Panel frontal

Unidades del sistema

Panel trasero

Conectores

Especificaciones eléctricas

Placas internas

Componentes

CPU y memoria

Módulos de ventiladores

Opciones de NIC/HBA

Opciones de PCIe

Orden de ranuras PCIe

Almacenamiento conectado

Descripción general del hardware 7320

Descripción general del chasis

Placas

Cables

Componentes de E/S de 7320

Componentes de la CPU y la memoria de 7320

Componentes de distribución de energía, módulos de ventiladores y discos de 7320

Especificaciones eléctricas

Panel frontal de 7320

Componentes sustituibles de 7320

Tarjetas y elevadores PCIe de 7320

Panel trasero de 7320

Configuraciones de controlador único y de cluster de 7320

Configuraciones de cluster de 7320

Clavijas del conector de 7320

Almacenamiento conectado

Consulte también

Descripción general del hardware 7120

Descripción general del chasis

Panel frontal

Panel trasero

Especificaciones eléctricas

Componentes internos

Componentes de E/S

Cables

CPU y memoria

Componentes de distribución de energía, módulos de ventiladores y discos

Configuraciones de controlador independiente

Opciones de NIC/HBA

Opciones de PCIe

Almacenamiento conectado

Descripción general de estantes de discos

SAS-2

Panel frontal

Ubicación de unidades

Indicadores del panel frontal

Panel posterior

Indicadores de módulo de E/S

Indicadores de placa SIM

Indicadores de fuente de alimentación

Configuraciones de estantes de discos

Oracle Storage Drive Enclosure DE2-24P

Oracle Storage Drive Enclosure DE2-24C

Sun Disk Shelf (DS2)

Procedimientos de mantenimiento

Procedimientos de mantenimiento para ZS4-4

Requisitos previos de ZS4-4

Información de seguridad de ZS4-4

Información y herramientas necesarias de ZS4-4

Número de serie del chasis de ZS4-4

Opciones de apagado de ZS4-4 para preparar las tareas de mantenimiento

Tareas de sustitución del controlador ZS4-4

Sustitución de una unidad HDD o SSD de ZS4-4

Sustitución de un módulo de ventiladores de ZS4-4

Sustitución de una fuente de alimentación de ZS4-4

Identificación de un módulo de memoria de ZS4-4 defectuoso

Sustitución de placa de memoria de ZS4-4

Sustitución de DIMM de ZS4-4

Sustitución de tarjeta PCIe de ZS4-4

Sustitución de batería de sistema de ZS4-4

Procedimientos de mantenimiento para ZS3-4

Requisitos previos de ZS3-4

Información de seguridad de ZS3-4

Información y herramientas necesarias de ZS3-4

Número de serie del chasis de ZS3-4

Tareas de sustitución para controladores ZS3-4

Unidades HDD o SSD de ZS3-4

Sustitución de unidades HDD o SSD del controlador ZS3-4

Módulo de ventiladores de ZS3-4

Sustitución del módulo de ventiladores del controlador ZS3-4

Fuente de alimentación de ZS3-4

Sustitución de fuente de alimentación del controlador ZS3-4

Memoria de ZS3-4

Sustitución de memoria del controlador ZS3-4

Tarjetas y elevadores PCIe de ZS3-4

Sustitución de tarjetas y placas de memoria PCIe del controlador ZS3-4

Batería de ZS3-4

Sustitución de batería del controlador ZS3-4

Interoperabilidad de Oracle DE2 y Sun Disk Shelf con ZS3-4

Procedimientos de mantenimiento para ZS3-2

Requisitos previos de ZS3-2

Información de seguridad de ZS3-2

Información y herramientas necesarias de ZS3-2

Número de serie del chasis de ZS3-2

Preparación del controlador ZS3-2 para realizar el mantenimiento de componentes internos

Desconexión de la energía

Extensión del controlador de almacenamiento desde el bastidor

Extracción de la cubierta superior

Tareas de sustitución para controladores ZS3-2

Unidades SSD y HDD de ZS3-2

Sustitución de unidades HDD o SSD del controlador ZS3-2

Fuentes de alimentación de ZS3-2

Sustitución de fuentes de alimentación del controlador ZS3-2

Módulos de ventiladores de ZS3-2

Sustitución de módulos de ventiladores del controlador ZS3-2

Memoria de ZS3-2

Sustitución de memoria del controlador ZS3-2

Tarjetas y elevadores PCIe de ZS3-2

Sustitución de tarjetas y placas de memoria PCIe del controlador ZS3-2

Unidad flash USB de ZS3-2

Sustitución de unidad flash USB del controlador ZS3-2

Batería de ZS3-2

Sustitución de batería del controlador ZS3-2

Interoperabilidad de Oracle DE2-24 y Sun Disk Shelf con ZS3-2

Procedimientos de mantenimiento para 7x20

Requisitos previos

Información de seguridad

Información y herramientas necesarias

Número de serie del chasis

Tareas de sustitución de controladores 7x20

HDD o SSD

Sustitución de unidades HDD o SSD del controlador 7x20

Módulo de ventiladores

Sustitución del módulo de ventiladores del controlador 7x20

Fuente de alimentación

Sustitución de fuente de alimentación del controlador 7x20

Memoria

Sustitución de memoria del controlador 7x20

Tarjetas y elevadores PCIe

Sustitución de tarjetas y placas de memoria PCIe del controlador 7x20

Batería

Sustitución de batería del controlador 7x20

Interoperabilidad entre Oracle DE2 y Sun Disk Shelf

Procedimientos de mantenimiento para estantes de discos

Requisitos previos

Información de seguridad

Precauciones contra descargas electrostáticas

Desconexión de la energía del estante de discos

Desconexión de la energía del estante de discos

Tareas de sustitución de estantes de discos

Unidad

Sustitución de una unidad defectuosa

Dispositivo de la caché

Agregación de un dispositivo de la caché

Fuente de alimentación

Sustitución de fuente de alimentación

Módulo de E/S

Sustitución de módulo de E/S

Placa SIM

Sustitución de placa SIM

Estante de discos

Agregación de un estante de discos nuevo

Fallos de hardware

Conexión con ILOM

Configuración del puerto de gestión

Observación y eliminación de fallos de CPU desde ILOM

Consulte también

Cableado

Conexión al almacenamiento conectado

Cantidad máxima de estantes de discos por configuración de controlador

Compatibilidad de HBA con estantes de discos

Mantenimiento del sistema

Sustitución de tarjetas y placas de memoria PCIe del controlador 7x20


Caution

Precaución  -  Este procedimiento requiere que manipule componentes sensibles a descargas electrostáticas, lo que puede provocar fallos en el componente. Para evitar daños, utilice una muñequera y una alfombra antiestáticas cuando manipule los componentes.


  1. Desconecte los cables de alimentación de CA del panel trasero del controlador de almacenamiento.
  2. Verifique que ningún cable se dañe ni interfiera cuando el controlador de almacenamiento se despliegue del bastidor.
  3. Desde la parte frontal del controlador de almacenamiento, libere los dos pasadores deslizantes.
  4. Mientras aprieta los pasadores deslizantes, tire lentamente del controlador de almacenamiento hacia adelante hasta que las guías deslizantes se bloqueen.
  5. 7120 o 7320: Para extraer la cubierta superior:

    Desbloquee la puerta del módulo de ventiladores, tire las dos pestañas de apertura hacia atrás, gire la puerta del ventilador a la posición de apertura y manténgala ahí.

    Presione el botón de apertura de la cubierta superior y deslice la cubierta hacia la parte trasera aproximadamente 1,3 cm (0,5 in).

    Levante y extraiga la cubierta superior.

  6. 7420: Para extraer la cubierta superior:

    Levante simultáneamente los dos pasadores de la cubierta en sentido recto.


    image:gráfico en el que se muestra cómo extraer la cubierta superior del controlador 7420

    Levante y extraiga la cubierta superior.

  7. Ubique la posición de la tarjeta PCIe en el controlador de almacenamiento; consulte Configuraciones de controlador único y de cluster de 7320 para el controlador 7320, Opciones de PCIe para el controlador 7120 u Opciones de PCIe para el controlador 7420.
  8. 7120 o 7320: Para sustituir la tarjeta PCIe:

    Desconecte todos los cables de datos conectados a las tarjetas en el elevador PCIe que desea sustituir. Rotule los cables para conectarlos correctamente más adelante.

    Afloje los dos tornillos Phillips prisioneros en el extremo de la barra transversal del panel trasero, y luego levante la barra transversal y tire de ella para extraerla.


    image:gráfico en el que se muestra cómo extraer una barra transversal de ranura de una tarjeta PCIe de un controlador 7120 o 7320

    Afloje el tornillo prisionero que fija el extremo de la parte frontal del elevador y el tornillo Phillips ubicado en el otro extremo del elevador.

    Levante el elevador para extraerlo del controlador de almacenamiento.


    image:gráfico en el que se muestra cómo extraer un elevador de tarjetas PCIe de un controlador 7120 o 7320

    Quite con cuidado la tarjeta PCIe del conector de la placa del elevador y limpie la ranura con aire comprimido filtrado, si es necesario.


    image:gráfico en el que se muestra cómo extraer una tarjeta PCIe de un controlador 7120 o 7320

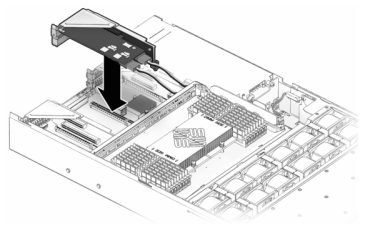
    Inserte la tarjeta PCIe de repuesto en la ranura del elevador y conecte los cables.


    image:gráfico en el que se muestra cómo instalar una tarjeta PCIe en un controlador 7120 o 7320

    Alinee el elevador (y todas las tarjetas PCIe conectadas) con la ubicación deseada en la placa base, y luego insértelo en su ranura.


    image:gráfico en el que se muestra cómo instalar un elevador de tarjetas PCIe de un controlador 7120 o 7320

    Deslice la parte posterior del elevador dentro del refuerzo del panel trasero de la placa base.

    Apriete el tornillo que fija el elevador a la placa base.

    Vuelva a colocar la barra transversal PCI del panel trasero. Para ello, deslícela hacia abajo sobre los elevadores PCIe y asegúrese de fijarla con dos tornillos Phillips prisioneros.


    image:gráfico en el que se muestra cómo sustituir una barra transversal de ranura de una tarjeta PCIe de un controlador 7120 o 7320
  9. 7420: Para sustituir la tarjeta PCIe:

    Quite de la posición de bloqueo la barra transversal de la ranura de tarjeta PCIe y gire la barra transversal hasta que alcance una posición recta.


    image:gráfico en el que se muestra cómo desacoplar una barra transversal de ranura de una tarjeta PCIe de un controlador 7420

    Quite el tornillo de fijación que acopla la tarjeta PCIe al chasis.

    Quite con cuidado la tarjeta PCIe del conector y limpie la ranura con aire comprimido filtrado, si es necesario.

    Instale la tarjeta PCIe de repuesto en la ranura de tarjeta PCIe.

    Instale el tornillo de fijación para acoplar la tarjeta PCIe al chasis.

    Coloque nuevamente la barra transversal en la posición de cierre y bloqueo.


    image:gráfico en el que se muestra cómo cerrar una barra transversal de ranura de una tarjeta PCIe en un controlador 7420
  10. 7120 o 7320: aunque los componentes pueden variar ligeramente entre el sistema 7120 y 7320, los procedimientos de mantenimientos de ambos son idénticos. En la figura, se muestra el controlador 7320. Para instalar la cubierta superior:

    Coloque la cubierta superior en el chasis de modo que sobresalga de la parte trasera del controlador de almacenamiento aproximadamente 2,5 cm (1 in). Luego, deslice la cubierta superior hacia adelante hasta que quede encajada.

    Cierre la cubierta del ventilador y coloque los pasadores de la cubierta. La cubierta debe estar totalmente cerrada para que se encienda el controlador de almacenamiento.


    image:gráfico en el que se muestra cómo cerrar la cubierta del ventilador del controlador 7120 o 7320
  11. 7420: Para instalar la cubierta superior:

    Coloque la cubierta superior en el chasis (1) de modo que sobresalga de la parte trasera del controlador de almacenamiento aproximadamente 2,5 cm (1 in).

    Deslice la cubierta superior hacia la parte trasera del chasis (2) hasta que se acople.

    Presione la cubierta con ambas manos hasta que los pasadores queden fijados.


    image:gráfico en el que se muestra cómo cerrar la cubierta superior del controlador 7420
  12. Presione las pestañas de apertura en el lateral de cada guía y deslice lentamente el controlador de almacenamiento dentro del bastidor. Asegúrese de que ningún cable obstruya el trayecto del controlador.
  13. Conecte los cables de alimentación a las fuentes de alimentación.
  14. Verifique que el modo de energía en espera está activado. El indicador de estado de energía deberá parpadear en el panel frontal aproximadamente dos minutos después de conectar los cables de alimentación.
  15. Utilice un lápiz u otro objeto con punta para presionar y soltar el botón de encendido ubicado en el panel frontal del controlador de almacenamiento. El indicador de estado de energía junto al botón de encendido se ilumina y permanece encendido.
  16. Conecte los cables de datos a la tarjeta PCIe a través del organizador de cables.
  17. Vaya a la pantalla Maintenance (Mantenimiento) > Hardware de la BUI y haga clic en el ícono de la flecha derecha image: en el controlador. Luego, haga clic en Ranuras para verificar el estado del nuevo componente. El ícono de conexión image: debería estar verde.
  18. Instale el estante de discos como se describe en Instalación de Guía de instalación de Oracle ZFS Storage Appliance, versión 2013.1.3.0 y conecte el almacenamiento de expansión como se describe en Conexión al almacenamiento conectado.