Go to main content

Oracle® ZFS Storage Appliance 顧客サービスマニュアル

印刷ビューの終了

更新: 2018 年 11 月
 
 

7x20 コントローラの PCIe カードまたはライザーの交換


Caution

注意  -  この手順では、静電気に弱いコンポーネントを扱う必要があるため、コンポーネントに障害が発生する可能性があります。損傷を避けるには、コンポーネントを扱う際、静電気防止用リストストラップを着用し、静電気防止用マットを使用します。7120 Sun Flash Accelerator F20 カードは FRU であり、Oracle 保守技術者が交換する必要があります


BUI の「保守」 > 「ハードウェア」画面に移動し、コントローラの右矢印アイコン image:適用アイコン をクリックし、「スロット」をクリックして、障害が発生したコンポーネントを特定します。すべての HBA が同じタイプである必要があります。新しくリリースされた HBA を取り付ける前に、システムソフトウェアをアップグレードしておいてください。

  1. コントローラの電源切断の説明に従って、ストレージコントローラの電源を切断します。
  2. AC 電源コードをストレージコントローラの背面パネルから取り外します。

    Caution

    注意  -  システムには 3.3 VDC のスタンバイ電源が常に供給されているため、コールドサービスが可能なコンポーネントに対して作業をする前には電源コードを外す必要があります。


  3. コントローラのラックからの引き出しの説明に従って、コントローラをラックから引き出します。
  4. 7120 または 7320: 上部カバーを取り外すには:
    1. ファンモジュールのドアのラッチを外し、2 つのリリース爪を引いて、ファンのドアを開放位置まで回してとめます。
    2. 上部カバーのリリースボタンを押して、上部カバーを後方に約 0.5 インチ (1.3 cm) スライドさせます。
    3. 上部カバーを持ち上げて、取り外します。
  5. 7420: 上部カバーを取り外すには:
    1. 両方のカバーラッチを同時に引き上げます。
      image:7420 コントローラの上部カバーを取り外す方法を示す図
    2. 上部カバーを持ち上げて、取り外します。
  6. ストレージコントローラでの PCIe カードの位置を探すには、7320 の構成オプション (7320 の場合)、7120 の PCIe オプション (7120 の場合)、7420 PCIe I/O カード (7420 の場合) を参照してください。
  7. 7120 または 7320: PCIe カードを交換するには:
    1. 交換する PCIe ライザーに装着されているカードに接続されているデータケーブルをすべて取り外します。あとで正しく接続できるように、ケーブルにラベルを貼ります。
    2. 背面パネルクロスバーの端の 2 本の Phillips 脱落防止機構付きねじを緩め、クロスバーを引き上げ後方に除けて取り外します。
      image:7120 または 7320 コントローラの PCIe カードスロットのクロスバーを取り外す方法を示す図
    3. ライザーの正面端を留めている脱落防止機構付き留めねじとライザーの端の Phillips ねじを緩めます。
    4. ライザーを持ち上げて、ストレージコントローラから取り外します。
      image:7120 または 7320 コントローラの PCIe カードのライザーを取り外す方法を示す図
    5. ライザーボードコネクタから PCIe カードを注意深く取り外し、必要に応じてろ過した圧縮空気でスロットのほこりを取り除きます。
      image:7120 または 7320 コントローラの PCIe カードを取り外す方法を示す図
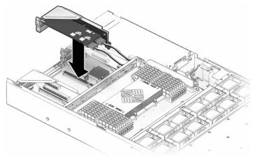
    6. 交換用の PCIe カードをライザーのスロットに固定し、ケーブルを接続します。
      image:7120 または 7320 コントローラの PCIe カードを取り付ける方法を示す図
    7. PCIe カードを固定したライザーをマザーボード上の希望する位置に合わせて、スロットに注意深く挿入します。
      image:7120 または 7320 コントローラの PCIe カードのライザーを取り付ける方法を示す図
    8. ライザーの背面をマザーボード背面のパネル補強材にスライドさせます。
    9. マザーボードにライザーを固定するねじを締めます。
    10. 背面の PCI クロスバーを PCIe ライザー上でスライドさせて交換し、2 本の Phillips 脱落防止機構付きねじでクロスバーを固定します。
      image:7120 または 7320 コントローラの PCIe カードスロットのクロスバーを元どおりに取り付ける方法を示す図
  8. 7420: PCIe カードを交換するには:
    1. 固定されている位置から PCIe カードスロットのクロスバーを外し、クロスバーを垂直の位置になるよう回転させます。
      image:7420 コントローラの PCIe カードスロットのクロスバーを外す方法を示す図
    2. PCIe カードをシャーシに固定している留めねじを取り外します。
    3. コネクタから PCIe カードを注意深く取り外し、必要に応じてろ過した圧縮空気でスロットのほこりを取り除きます。
    4. 交換用の PCIe カードを PCIe カードスロットに取り付けます。
    5. 留めねじを取り付けて PCIe カードをシャーシに固定します。
    6. 閉じてロックする位置にクロスバーを戻します。
      image:7420 コントローラの PCIe カードスロットのクロスバーを閉じる方法を示す図
  9. 7120 または 7320: 7120 と 7320 ではコンポーネントが多少異なりますが、それぞれの保守の手順は同じです。図は 7320 コントローラを示しています。上部カバーを取り付けるには:
    1. ストレージコントローラの背面から約 1 インチ (2.5 cm) はみ出るように、シャーシの上に上部カバーを置き、固定されるまで上部カバーを前方にスライドさせます。
    2. ファンカバーを閉じて、ファンカバーラッチをとめます。ストレージコントローラの電源を入れるには、カバーが完全に閉じている必要があります。
      image:7120 または 7320 コントローラのファンカバーを閉じる方法を示す図
  10. 7420: 上部カバーを取り付けるには:
    1. ストレージコントローラの背面から約 1 インチ (2.5 cm) 前にはみ出るように、シャーシ (1) の上に上部カバーを置きます。
    2. シャーシ (2) の背面に向かって、固定されるまで上部カバーをスライドさせます。
    3. 両方のラッチで留められるまで、両手でカバーを下に押します。
      image:7420 コントローラの上部カバーを閉じる方法を示す図
  11. 各レールの側面にあるリリース爪を押し、コントローラを押し込む方向にケーブルがないことを確認しながら、ストレージコントローラをゆっくりとラックに押し込みます。
  12. ガイドとして以前追加されたラベルを参照して、すべてのケーブルを元のポートに再接続します。配線の詳細については、 Oracle ZFS Storage Appliance 配線ガイド を参照してください。
  13. 電源コードを電源装置に接続します。
  14. スタンバイ電源がオンになっていることを確認します。これは、電源コードを差し込んでから約 2 分後に、フロントパネルの電源/OK ステータスインジケータが点滅することで示されます。
  15. ペンまたはその他の先端がとがったものを使用して、ストレージコントローラのフロントパネルにある埋め込み式の電源ボタンを押してから放します。電源ボタンの近くにある電源/OK ステータスインジケータが点灯し、そのまま点灯し続けます。
  16. データケーブルを PCIe カードに接続し、ケーブル管理アームを通して配線します。
  17. BUI の「保守」 > 「ハードウェア」画面に移動し、コントローラの右矢印アイコン image:適用アイコン をクリックします。次に「スロット」をクリックし、新しいコンポーネントのステータスを確認します。オンラインアイコン image:ライト点灯アイコン が緑色になります。
  18. 障害が自動でクリアされない場合、アクティブな問題の修復を参照してください。
  19. Oracle ZFS Storage Appliance インストールガイドのディスクシェルフの設置の説明に従ってディスクシェルフを取り付け、接続ストレージへの接続の説明に従って拡張ストレージを接続します。