Go to main content

Oracle® ZFS Storage Appliance 고객 서비스 설명서

인쇄 보기 종료

업데이트 날짜: 2018년 11월
 
 

7x20 컨트롤러 PCIe 카드 또는 라이저 교체


Caution

주의  -  이 절차에서는 정전기 방전에 민감한 구성요소를 취급해야 하는데, 이로 인해 구성요소에서 장애가 발생할 수 있습니다. 손상을 방지하려면 구성요소를 다룰 때 정전기 방지 손목대를 착용하고 정전기 방지 매트를 사용하십시오. 7120 Sun Flash Accelerator F20 카드는 FRU이므로 반드시 Oracle Service 담당자가 교체해야 합니다.


BUI의 Maintenance(유지 관리) > Hardware(하드웨어) 화면으로 이동하여 컨트롤러의 오른쪽 화살표 아이콘(image:적용 아이콘 )을 누른 다음 Slots(슬롯)를 누르면 결함 구성요소를 찾을 수 있습니다. 모든 HBA는 동일한 유형이어야 합니다. 새로 릴리스된 HBA를 설치하기 전에 시스템 소프트웨어를 업그레이드해야 합니다.

  1. 컨트롤러 전원 끄기에 설명된 대로 스토리지 컨트롤러의 전원을 끕니다.
  2. 스토리지 컨트롤러의 후면 패널에서 AC 전원 코드를 분리합니다.

    Caution

    주의  -  시스템에는 항상 3.3 VDC 대기 전원이 공급되므로, 콜드 서비스 대상 구성요소에 액세스하려면 먼저 전원 코드의 플러그를 뽑아야 합니다.


  3. 랙에서 컨트롤러 확장에 설명된 대로 랙에서 컨트롤러를 확장합니다.
  4. 7120 또는 7320: 윗면 덮개를 분리하려면 다음과 같이 합니다.
    1. 팬 모듈 도어를 풀고 두 개의 해제 탭을 다시 잡아 당긴 다음 팬 도어를 열림 위치로 돌리고 그 상태로 유지합니다.
    2. 윗면 덮개 해제 버튼을 누르고 윗면 덮개를 1.3cm(1/2인치) 정도 후면 쪽으로 밉니다.
    3. 윗면 덮개를 들어 올려 분리합니다.
  5. 7420: 윗면 덮개를 분리하려면 다음과 같이 합니다.
    1. 두 개의 덮개 래치를 동시에 위쪽으로 올립니다.
      image:7420 컨트롤러 윗면 덮개를 분리하는 방법을 보여주는 그림
    2. 윗면 덮개를 들어 올려 분리합니다.
  6. 스토리지 컨트롤러에서 PCIe 카드 위치를 찾습니다. 7320은 7320 구성 옵션을, 7120은 7120 PCIe 옵션을, 7420은 7420 PCIe I/O 카드를 참조하십시오.
  7. 7120 또는 7320: PCIe 카드를 교체하려면 다음과 같이 합니다.
    1. 교체하려는 PCIe 라이저 카드에 연결된 데이터 케이블을 분리합니다. 나중에 제대로 연결할 수 있도록 케이블에 레이블을 표시합니다.
    2. 후면 패널 크로스바의 끝에 있는 두 개의 십자 홈 고정 나사를 풀고 크로스바를 들어 올려 분리합니다.
      image:7120 또는 7320 컨트롤러 PCIe 카드 슬롯 크로스바를 분리하는 방법을 보여주는 그림
    3. 라이저의 전면 끝을 고정하고 있는 고정 나사와 라이저 끝에 있는 십자 홈 나사를 풉니다.
    4. 라이저를 들어 올려 스토리지 컨트롤러에서 분리합니다.
      image:7120 또는 7320 컨트롤러 PCIe 카드 라이저를 분리하는 방법을 보여주는 그림
    5. 라이저 보드 커넥터에서 PCIe 카드를 조심해서 분리하고 필요한 경우 정화된 압축 공기로 슬롯을 청소합니다.
      image:7120 또는 7320 컨트롤러 PCIe 카드를 분리하는 방법을 보여주는 그림
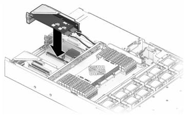
    6. 교체용 PCIe 카드를 라이저 슬롯에 고정하고 케이블을 연결합니다.
      image:7120 또는 7320 컨트롤러 PCIe 카드를 설치하는 방법을 보여주는 그림
    7. 연결된 PCIe 카드와 라이저를 마더보드의 원하는 위치에 맞춘 다음 조심스럽게 슬롯에 끼웁니다.
      image:7120 또는 7320 컨트롤러 PCIe 카드 라이저를 설치하는 방법을 보여주는 그림
    8. 라이저 후면을 마더보드 후면 패널 Stiffener(스티프너) 쪽으로 밉니다.
    9. 라이저를 마더보드에 고정하는 나사를 조입니다.
    10. 후면 패널 PCI 크로스바를 PCIe 라이저를 향해 아래쪽으로 밀어 교체하고 두 개의 십자 홈 고정 나사로 크로스바를 고정합니다.
      image:7120 또는 7320 컨트롤러 PCIe 카드 슬롯 크로스바를 교체하는 방법을 보여주는 그림
  8. 7420: PCIe 카드를 교체하려면 다음과 같이 합니다.
    1. PCIe 카드 슬롯 크로스바를 잠금 위치에서 풀어 크로스바를 수직으로 세웁니다.
      image:7420 컨트롤러 PCIe 카드 슬롯 크로스바를 분리하는 방법을 보여주는 그림
    2. PCIe 카드를 섀시에 고정하고 있는 고정 나사를 분리합니다.
    3. 커넥터에서 PCIe 카드를 조심해서 분리하고 필요한 경우 정화된 압축 공기로 슬롯을 청소합니다.
    4. 교체용 PCIe 카드를 PCIe 카드 슬롯에 설치합니다.
    5. 고정 나사를 설치하여 PCIe 카드를 섀시에 고정합니다.
    6. 크로스바를 닫힘 및 잠금 위치로 되돌립니다.
      image:7420 컨트롤러 PCIe 카드 슬롯 크로스바를 닫는 방법을 보여주는 그림
  9. 7120 또는 7320: 구성요소는 7120과 7320 간에 약간 다를 수 있지만, 각각의 서비스 절차는 동일합니다. 다음 그림은 7320 컨트롤러를 보여줍니다. 윗면 덮개를 설치하려면 다음과 같이 합니다.
    1. 섀시의 윗면 덮개가 스토리지 컨트롤러의 후면을 2.5cm(1인치) 정도 덮도록 섀시의 윗면 덮개를 놓은 다음 윗면 덮개가 고정될 때까지 밉니다.
    2. 팬 덮개를 닫고 팬 덮개 래치를 잠급니다. 스토리지 컨트롤러의 전원을 켜려면 덮개가 완전히 닫혀 있어야 합니다.
      image:7120 또는 7320 컨트롤러 팬 덮개를 닫는 방법을 보여주는 그림
  10. 7420: 윗면 덮개를 설치하려면 다음과 같이 합니다.
    1. 섀시의 윗면 덮개가 2.5cm(1인치) 정도 스토리지 컨트롤러 후면의 앞쪽에 오도록 섀시의 윗면 덮개(1)를 놓습니다.
    2. 윗면 덮개가 고정될 때까지 윗면 덮개를 섀시 후면(2) 쪽으로 밉니다.
    3. 두 래치가 맞물릴 때까지 두 손으로 덮개를 누릅니다.
      image:7420 컨트롤러 윗면 덮개를 닫는 방법을 보여주는 그림
  11. 각 레일의 측면에 있는 해제 탭을 민 다음 스토리지 컨트롤러를 랙 쪽으로 천천히 밀되, 케이블이 컨트롤러 경로를 방해하지 않도록 합니다.
  12. 이전에 추가한 레이블을 참조하여 모든 케이블을 원래 포트에 다시 연결합니다. 케이블 연결에 대한 자세한 내용은 Oracle ZFS Storage Appliance 케이블 연결 설명서를 참조하십시오.
  13. 전원 공급 장치에 전원 코드를 연결합니다.
  14. 대기 전원이 켜져 있는지 확인합니다. 즉, 전원 코드를 꽂으면 전원/OK 상태 표시기가 전면 패널에서 2분 정도 깜박거립니다.
  15. 펜 또는 다른 뾰족한 물체를 사용하여 스토리지 컨트롤러 전면 패널에 있는 오목한 전원 버튼을 눌렀다 놓습니다. 전원 버튼 옆에 있는 전원/OK 상태 표시기에 불이 켜진 상태로 유지됩니다.
  16. 케이블 관리 암을 통과하도록 경로 지정하여 데이터 케이블을 PCIe 카드에 연결합니다.
  17. BUI의 Maintenance(유지 관리) > Hardware(하드웨어) 화면으로 이동한 다음 컨트롤러의 오른쪽 화살표 아이콘(image:적용 아이콘 )을 누릅니다. 그런 다음 Slot(슬롯)을 눌러 새 구성요소의 상태를 확인합니다. 온라인 아이콘(image:켜짐 아이콘 )은 녹색이어야 합니다.
  18. 결함이 자체적으로 해결되지 않을 경우 활성 문제 복구를 참조하십시오.
  19. Oracle ZFS Storage Appliance 설치 설명서의 Disk Shelf 설치에 설명된 대로 Disk Shelf를 설치하고 연결 스토리지에 연결에 설명된 대로 확장 스토리지를 연결합니다.