四个 CPU 插槽位于控制器的中部,按从右到左的顺序连续标记(从控制器的前面看)。最右侧的插槽是 CPU-0,标记为 P0;最左侧的插槽是 CPU-3,标记为 P3。
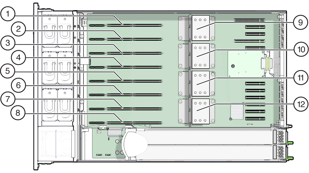
八个内存竖隔板 (memory riser, MR) 卡插槽位于风扇模块插槽和 CPU 插槽之间。按从右到左的顺序连续标记,最右侧的插槽是插槽 0,最左侧的插槽是插槽 7。
这些插槽也是按其与四个 CPU 插槽 (P0-P3) 的关联来标记的。每个 CPU 插槽分配有两个插槽。例如,插槽 0 和 1 与 CPU 插槽 P0 配对,标记为 P0/MR0 和 P0/MR1。插槽 2 和 3 与 CPU 插槽 P1 配对,标记为 P1/MR0 和 P1/MR1。剩余的插槽同样使用此编号模式。

|
下图显示了内存竖隔板的组件。

|
内存竖隔板位于风扇模块托架的后面。每个内存竖隔板 (Memory Riser, MR) 卡及其关联的 CPU 的标记位于控制器的内部,在粘贴到背面 MR 支架的标签上。卡标记为 MR,CPU 标记为 P。从控制器的前面看时,插槽和 CPU 按从右到左的顺序标记如下:
P0/MR0(最右侧的插槽)
P0/MR1
P1/MR0
P1/MR1
P2/MR0
P2/MR1
P3/MR0
P3/MR1(最左侧的插槽)
下图显示了上述的内存竖隔板插槽及其关联 CPU 的编号:

控制器的内存竖隔板填充规则如下:
每个 CPU 都具有两个专用的内存竖隔板插槽(MR0 和 MR1)。
每个已安装 CPU 的专用内存竖隔板插槽必须包含一个内存竖隔板。具有四个 CPU 的系统必须包含八个内存竖隔板。
填充具有内存竖隔板的控制器时:
首先填充每个 CPU 的竖隔板插槽 MR0,从编号最低的 CPU (P0) 开始。
然后填充每个 CPU 的竖隔板插槽 MR1,从编号最低的 CPU (P0) 开始。