JavaScript is required to for searching.
ナビゲーションリンクをスキップ
印刷ビューの終了
Oracle® ZFS Storage Appliance 顧客サービスマニュアル

ZS3-x、7x20 コントローラ、および DE2-24、Sun Disk Shelf 用

Oracle Technology Network
ライブラリ
PDF
印刷ビュー
フィードバック
search filter icon
search icon

Document Information

このドキュメントの使用法

 1 概要

 2 ハードウェアの保守

保守

概要

ZS3-2

ZS3-2 ハードウェアの概要

コントローラの概要

フロントパネル

背面パネル

4x4 SAS-2 HBA

シリアル管理コネクタ

ネットワーク管理コネクタ

Ethernet ポート

クラスタ I/O ポート

クラスタシリアルポートからの RJ-45 ケーブルの取り外し

物理仕様

電気的仕様

音響ノイズの放出

内部コンポーネント

ストレージ、電源、およびファンコンポーネント

内部ケーブル

マザーボード、メモリー、および PCIe カード

CPU およびメモリー

NIC/HBA オプション

PCIe ライザーの構成

PCIe オプション

PCIe スロットの順序

オプションのケーブル管理アーム

接続されるストレージ

ZS3-4

ZS3-4 ハードウェアの概要

コントローラの概要

シャーシの寸法

フロントパネル

システムドライブ

背面パネル

4x4 SAS-2 HBA

電気的仕様

内部ボード

コンポーネント

CPU およびメモリー

ファンモジュール

NIC/HBA オプション

コネクタ

PCIe オプション

PCIe スロットの順序

接続されるストレージ

ZS3-2

ZS3-2 CRU の保守手順

前提条件

安全に関する情報

必要な工具と情報

シャーシのシリアル番号

内部コンポーネントを保守するためのコントローラの準備

ZS3-2 内部コンポーネントを保守するためのコントローラの準備

電源の取り外し

ラックからストレージコントローラを広げる

上部カバーを取り外す

コントローラの交換タスク

ZS3-2 コントローラの交換タスク

SSD および HDD

ZS3-2 コントローラの SSD および HDD の交換

電源装置

ZS3-2 コントローラの電源装置の交換

ファンモジュール

ZS3-2 コントローラのファンモジュールの交換

メモリー

ZS3-2 コントローラのメモリーの交換

PCIe カードおよびライザー

ZS3-2 コントローラの PCIe カードおよびライザーの交換

USB フラッシュドライブ

ZS3-2 コントローラの USB フラッシュドライブの交換

バッテリ

ZS3-2 コントローラのバッテリの交換

Oracle DE2 と Sun Disk Shelfの相互運用性

ZS3-4

ZS3-4 CRU の保守手順

前提条件

安全に関する情報

必要な工具と情報

シャーシのシリアル番号

コントローラの交換タスク

ZS3-4 コントローラの交換タスク

HDD または SSD

ZS3-4 コントローラの HDD または SSD の交換

ファンモジュール

ZS3-4 コントローラのファンモジュールの交換

電源装置

ZS3-4 コントローラの電源装置の交換

メモリー

ZS3-4 コントローラのメモリーの交換

PCIe カードおよびライザー

ZS3-4 コントローラの PCIe カードおよびライザーの交換

バッテリ

ZS3-4 コントローラのバッテリの交換

Oracle DE2 と Sun Disk Shelfの相互運用性

7120

7120 ハードウェアの概要

シャーシの概要

フロントパネル

背面パネル

電気的仕様

内部コンポーネント

I/O コンポーネント

ケーブル

CPU およびメモリー

配電、ファンモジュール、およびディスクコンポーネント

スタンドアロンコントローラ構成

NIC/HBA オプション

PCIe オプション

接続されるストレージ

7320

7320 ハードウェアの概要

シャーシの概要

ボード

ケーブル

7320 I/O コンポーネント

7320 CPU およびメモリーコンポーネント

7320 の配電およびファンモジュールコンポーネント

電気的仕様

7320 のフロントパネル

7320 の交換可能コンポーネント

7320 PCIe カードおよびライザー

7320 の背面パネル

7320 の単一コントローラおよびクラスタコントローラ構成

7320 のクラスタ構成

7320 コネクタのピン配列

接続されるストレージ

関連項目

7420

7420 ハードウェアの概要

アプライアンスの概要

シャーシ

フロントパネル

システムドライブ

背面パネル

コネクタ

電気的仕様

内部ボード

コンポーネント

CPU およびメモリー

ファンモジュール

NIC/HBA オプション

PCIe オプション

PCIe スロットの順序

接続されるストレージ

7x20

7x20 CRU の保守の手順

前提条件

安全に関する情報

必要な工具と情報

シャーシのシリアル番号

コントローラの交換タスク

7x20 コントローラの交換タスク

HDD または SSD

7x20 コントローラの HDD または SSD の交換

ファンモジュール

7x20 コントローラのファンモジュールの交換

電源装置

7x20 コントローラの電源装置の交換

メモリー

7x20 コントローラのメモリーの交換

PCIe カードおよびライザー

7x20 コントローラの PCIe カードおよびライザーの交換

バッテリ

7x20 コントローラのバッテリの交換

Oracle DE2 と Sun Disk Shelfの相互運用性

シェルフ

ディスクシェルフの概要

SAS-2

フロントパネル

ドライブの位置

フロントパネルインジケータ

バックパネル

I/O モジュールインジケータ

SIM ボードインジケータ

電源装置インジケータ

ディスクシェルフの構成

Oracle Storage Drive Enclosure DE2-24P

Oracle Storage Drive Enclosure DE2-24C

Sun Disk Shelf (DS2)

シェルフ

ディスクシェルフの保守手順

前提条件

安全に関する情報

静電気放電に関する注意

シェルフの静電気放電に関する注意

ディスクシェルフの電源の切断

ディスクシェルフの電源を切断する

タスク

ディスクシェルフの交換タスク

ドライブ

ドライブの交換

電源装置

電源の交換

I/O モジュール

I/O モジュールの交換

SIM ボード

SIM ボードの交換

障害

ハードウェア障害

ILOM への接続

管理ポートの構成

ILOM からの CPU 障害の監視およびクリア

関連項目

配線

接続ストレージへの接続

コントローラ構成ごとのディスクシェルフの最大数

次の手順

 3 システム保守

コントローラの交換タスク

7x20 コントローラの交換タスク

7x20 コントローラを交換するには、次の手順を使用します。

HDD または SSD

障害が発生したドライブが複数ある場合は、一度に 1 台のドライブのみを交換してください。複数のドライブを立て続けに取り外すと、ハードウェア/プールの障害の原因になります。

7x20 コントローラの HDD または SSD の交換

  1. 障害の発生した HDD または SSD を特定するには、BUI の「保守」>「ハードウェア」セクションに移動して、ドライブ情報アイコン image: をクリックします。物理的にシステムにいる場合は、HDD または SSD に付いているオレンジ色の保守要求インジケータが点灯します。
  2. システムの近くで作業していない場合は、ロケータアイコン image: をクリックして、ロケータインジケータをオンに設定します。
  3. HDD または SSD にあるリリースボタンを押して、ラッチを解除します。
  4. ラッチをつかみ (2)、ドライブスロットからドライブを引き出します。
    image:7x20 コントローラのディスクドライブを取り外す方法を示す図
  5. 15 秒後、「保守」>「ハードウェア」画面に移動し、システムコントローラにある右矢印アイコン image: をクリックして、ドライブが存在しないことが検出されていることを確認します。
  6. 完全に固定されるまで交換用ドライブをスロットにスライドさせます。
    image:7x20 コントローラのディスクドライブを取り付ける方法を示す図
  7. ラッチを閉じてドライブを所定の位置に固定します。

    Sun ZFS Storage システムソフトウェアによって、新しいドライブが自動的に検出、構成されます。デバイスは、コントローラまたはドライブシェルフの詳細を表示すると、BUI の「保守」>「ハードウェア」画面に表示されます。

ファンモジュール

ファンモジュールはホットスワップ対応であるため、ストレージコントローラの実行中でも、ほかのハードウェア機能に影響を与えずに取り外しや取り付けが可能です。

7120 または 7320: ファンモジュールとステータスインジケータは、7120 および 7320 ストレージコントローラではファンのドアの下に隠されています。7120 と 7320 ではコンポーネントが多少異なりますが、それぞれの保守の手順は同じです。図は 7320 コントローラを示しています。

image:7120 および 7320 コントローラのファンモジュールとステータスインジケータを示す図

ストレージコントローラの稼働中に 60 秒を超える時間ドアを開けたままにすると過熱してシャットダウンする可能性があります。

7420: 次の図は、7420 ストレージコントローラのファンモジュールを示しています。

image:7420 コントローラのファンモジュールとステータスインジケータを示す図

7x20 コントローラのファンモジュールの交換


Caution

注意  -  ファンを取り外した状態で長期間コントローラを稼働すると、冷却システムの効果が低下します。そのため、交換用ファンは事前に開梱しておき、障害が発生したファンを取り外したら、ただちにコントローラシャーシに挿入できるようにしておきます。


  1. 保守の必要があるシャーシを特定するには、BUI の「保守」>「ハードウェア」画面で、対応するロケータアイコン image: をクリックするか、サービスプロセッサ (SP) プロンプトで set /SYS/LOCATE status=on コマンドを発行します。コントローラシャーシの位置特定 LED が点滅します。
  2. ケーブルが損傷していないこと、またはラックからストレージコントローラを延長している場合は干渉しないことを確認します。
  3. ストレージコントローラの正面から、2 つのスライドリリースラッチを外します。
  4. スライドリリースラッチを強く押しながら、スライドレールが閉じるまでストレージコントローラをゆっくり前方に引き出します。
  5. 7120 または 7320: ファンモジュールを交換するには:

    ドアのリリース爪のラッチを外しながら、ファンモジュールを開きます。

    対応する保守要求ステータスインジケータを探すか、BUI の「保守」>「ハードウェア」画面でロケータアイコン image: をクリックして交換するファンを見つけ、障害が発生したファンモジュールを特定します。

    親指と人差し指を使って、ファンモジュールを引き上げ、取り出します。


    image:7120 または 7130 コントローラのファンモジュールを取り外す方法を示す図

    交換用ファンモジュールをストレージコントローラのファンスロットに取り付けます。


    Caution

    注意  -  コントローラがシャットダウンしないよう、ファンを 1 分以内に元どおりに取り付ける必要があります。



    image:7120 または 7130 コントローラのファンモジュールを取り付ける方法を示す図

    ファンモジュールが完全に固定されるまで強く押します。

    ファンの OK ステータスインジケータが点灯していることと、交換したファンモジュールの障害ステータスインジケータが薄暗いことを確認します。

    ファンを交換したら、ただちに上部カバーを閉じ、ストレージコントローラの通気を維持します。

  6. 7420: ファンモジュールを交換するには:

    対応する保守要求ステータスインジケータを探すか、BUI の「保守」>「ハードウェア」画面でロケータアイコン image: をクリックして交換するファンを見つけ、障害が発生したファンモジュールを特定します。

    ファンモジュールの上部にあるラッチを持ち上げてファンモジュールをロック解除し、ファンモジュールを引き抜きます。


    image:7420 コントローラのファンモジュールを取り外して取り付ける方法を示す図

    7420 ファンモジュールをロック解除し、挿入します。

    ファンモジュールが完全に固定されるまで強く押します。

    ファンの OK ステータスインジケータが点灯していることと、交換したファンモジュールの障害ステータスインジケータが薄暗いことを確認します。

  7. 上部のファンステータスインジケータ、保守要求ステータスインジケータ、ロケータステータスインジケータまたはロケータボタンが薄暗いことを確認します。
  8. 各レール側面のリリース爪を押して、ゆっくりとストレージコントローラをラックにスライドさせます。
電源装置

ストレージコントローラはホットスワップ対応の冗長電源装置が装備されています。電源装置に障害が発生し、交換用の装置がない場合は、障害が発生した電源装置を取り付けたままにして、適切な通気を確保してください。電源装置に障害が発生すると、ステータス表示 LED がオレンジ色になります。

7x20 コントローラの電源装置の交換

  1. 障害が発生した電源装置が取り付けられているストレージコントローラの背面に移動します。
  2. ケーブル管理アーム (CMA) が取り付けてある場合は、CMA リリース爪を押しながら、アームを作業の妨げにならない方向に回します。
    image:7x20 コントローラのケーブル管理アームを外す方法を示す図
  3. 電源コードを障害が発生した電源装置から取り外します。
  4. 電源装置を取り外します。

    7120 または 7320: ラッチを外してから、電源装置を取り外します。7120 と 7320 ではコンポーネントが多少異なりますが、それぞれの保守の手順は同じです。図は 7320 コントローラを示しています。


    image:7120 または 7320 コントローラの電源装置を取り外す方法を示す図

    7420: 電源装置のハンドルをしっかり握り、リリースラッチを押して電源装置を取り外します。


    image:7420 コントローラの電源装置を取り外す方法を示す図
  5. 交換用の電源装置の位置を、空いている電源装置シャーシベイに合わせます。
  6. 完全に固定されるまで電源装置をベイにスライドさせます。次の図は、7420 の電源装置を示しています。
    image:7x20 コントローラの電源装置を取り付ける方法を示す図
  7. 電源コードを電源装置に接続します。
  8. 緑色の AC 供給ステータスインジケータが点灯していることを確認します。
  9. CMA を閉じて、CMA を背面左のレールの留め具に挿入します。
  10. BUI の「保守」>「ハードウェア」画面に移動します。コントローラの右矢印アイコン image: をクリックし、電源装置をクリックして、新しく装着した電源装置のオンラインアイコン image: が緑色になっていることを確認します。
メモリー

障害が発生したメモリーモジュールを特定するには、ストレージコントローラを開き、マザーボード上のオレンジ色のステータス LED を使用する必要があります。一般的なメモリーの障害を特定するには、BUI の「保守」>「ハードウェア」画面に移動し、コントローラ上の右矢印アイコン image: をクリックします。次に「DIMM」をクリックして、警告アイコン image: で示される障害が発生したコンポーネントを特定します。

このタスクを行う前に、アプライアンスをシャットダウンする必要があります。システムがクラスタ化構成でない場合、ストレージにアクセスできなくなることに注意してください。次のいずれかの方法で、アプライアンスをシャットダウンします。

7x20 コントローラのメモリーの交換


Caution

注意  -  この手順では、静電気に弱いコンポーネントを扱う必要があるため、コンポーネントに障害が発生する可能性があります。損傷を避けるには、コンポーネントを扱う際、静電気防止用リストストラップを着用し、静電気防止用マットを使用します。


  1. AC 電源コードをストレージコントローラの背面パネルから取り外します。
  2. ケーブルが損傷していないこと、またはラックからストレージコントローラを延長している場合は干渉しないことを確認します。
  3. ストレージコントローラの正面から、2 つのスライドリリースラッチを外します。
  4. スライドリリースラッチを強く押しながら、スライドレールが閉じるまでストレージコントローラをゆっくり前方に引き出します。
  5. 7120 または 7320: 7120 と 7320 ではコンポーネントが多少異なりますが、それぞれの保守の手順は同じです。図は 7320 コントローラを示しています。上部カバーを取り外すには:

    ファンモジュールのドアのラッチを外し、2 つのリリース爪を引いて、ファンのドアを開放位置まで回して留めます。

    上部カバーのリリースボタンを押して、上部カバーを後方に約 0.5 インチ (1.3 cm) スライドさせます。

    上部カバーを持ち上げて、取り外します。

    また、エアバッフルコネクタを押してから持ち上げて、サーバーから取り外します。


    image:7120 または 7320 コントローラの上部カバーおよびエアバッフルを取り外す方法を示す図
  6. 7420: 上部カバーを取り外すには:

    両方のカバーラッチを同時に引き上げます。


    image:7420 コントローラの上部カバーを取り外す方法を示す図

    上部カバーを持ち上げて、取り外します。

  7. 保守する DIMM を探すには、ストレージコントローラの障害検知ボタンを押します。

    次の図は、7120 コントローラの障害検知ボタンを示しています。


    image:7120 または 7320 コントローラの障害検知ボタンを示す図

    次の図は、7420 コントローラの障害検知ボタンを示しています。


    image:7420 コントローラの障害検知ボタンを示す図
  8. 7420: 保守要求ステータスインジケータによって、障害が発生した DIMM を搭載しているメモリーライザーを特定します。メモリーライザーをまっすぐに持ち上げてマザーボードから取り外し、静電気防止用マットに置きます。
    image:7420 コントローラのメモリーライザーを取り外す方法を示す図
  9. DIMM スロットの取り外しレバーを両方ともできるだけ外側に回し、障害が発生した DIMM を注意してまっすぐに持ち上げ、ソケットから取り外します。
    image:7420 コントローラの DIMM を取り外す方法を示す図
  10. コネクタと交換用の DIMM の位置を合わせ、確実に正しい位置に配置されるようノッチと切り欠けを合わせてください。
    image:7420 コントローラの DIMM を取り付ける方法を示す図
  11. 取り外しレバーによって所定の位置に固定されるまで、DIMM をコネクタに押し込みます。
  12. 7120 または 7320: 7120 と 7320 ではコンポーネントが多少異なりますが、それぞれの保守の手順は同じです。図は 7320 を示しています。カバーを元どおりに取り付けるには:

    ストレージコントローラの背面から約 1 インチ (2.5 cm) はみ出るように、シャーシの上に上部カバーを置きます。

    装着されるまで、上部カバーを手前にスライドさせます。

    ファンカバーを閉じて、ファンカバーラッチを留めます。ストレージコントローラの電源を入れるには、カバーが完全に閉じている必要があります。


    image:7120 または 7320 コントローラのファンカバーを閉じる方法を示す図
  13. 7420: カバーを元どおりに取り付けるには:

    メモリーライザーモジュールを所定の位置に固定するまで、対応する CPU メモリーライザースロットに押し込みます。


    image:7420 コントローラのライザーモジュールを元どおりに取り付ける方法を示す図

    ストレージコントローラの背面から約 1 インチ (2.5 cm) 前にはみ出るように、シャーシの上に上部カバーを置きます。

    固定されるまでシャーシの背面に向かって上部カバーをスライドさせ、両方のラッチで留められるまで、両手でカバーを下に押します。


    image:7420 コントローラの上部カバーを閉じる方法を示す図
  14. 各レール側面のリリース爪を押して、ゆっくりとストレージコントローラをラックに押し込みます。
    image:レールのリリース爪を押す方法を示す図

    次の画像は、7420 のシャーシを示しています。


    image:7x20 コントローラをラックに取り付ける方法を示す図
  15. 電源コードを電源装置に接続します。
  16. スタンバイ電源がオンになっていることを確認します。電源コードを差し込んでから約 2 分後に、電源/OK ステータスインジケータがフロントパネルで点滅すれば、スタンバイ電源はオンになっています。
  17. ペンまたはその他の先端がとがったものを使用して、ストレージコントローラのフロントパネルにある埋め込み式の電源ボタンを押してから放します。

    電源ボタンの近くにある電源/OK ステータスインジケータが点灯し、そのまま点灯し続けます。BUI の「保守」>「ハードウェア」画面では、DIMM の「詳細」ページに交換のステータスが表示されます。

PCIe カードおよびライザー

BUI の「保守」>「ハードウェア」画面に移動し、コントローラにある右矢印アイコン image: をクリックし、「スロット」をクリックして障害の発生したコンポーネントを特定します。

7120 Sun Flash Accelerator F20 カードは FRU であり、Oracle 保守技術者が交換する必要があります

すべての HBA は同じ種類である必要があります。新しくリリースされた HBA を取り付ける前に、システムソフトウェアをアップグレードしておいてください。

このタスクを行う前に、コントローラをシャットダウンする必要があります。システムがクラスタ化構成でない場合、ストレージにアクセスできなくなることに注意してください。次のいずれかの方法で、アプライアンスをシャットダウンします。

7x20 コントローラの PCIe カードおよびライザーの交換


Caution

注意  -  この手順では、静電気に弱いコンポーネントを扱う必要があるため、コンポーネントに障害が発生する可能性があります。損傷を避けるには、コンポーネントを扱う際、静電気防止用リストストラップを着用し、静電気防止用マットを使用します。


  1. AC 電源コードをストレージコントローラの背面パネルから取り外します。
  2. ケーブルが損傷していないこと、またはラックからストレージコントローラを延長している場合は干渉しないことを確認します。
  3. ストレージコントローラの正面から、2 つのスライドリリースラッチを外します。
  4. スライドリリースラッチを強く押しながら、スライドレールが閉じるまでストレージコントローラをゆっくり前方に引き出します。
  5. 7120 または 7320: 上部カバーを取り外すには:

    ファンモジュールのドアのラッチを外し、2 つのリリース爪を引いて、ファンのドアを開放位置まで回して留めます。

    上部カバーのリリースボタンを押して、上部カバーを後方に約 0.5 インチ (1.3 cm) スライドさせます。

    上部カバーを持ち上げて、取り外します。

  6. 7420: 上部カバーを取り外すには:

    両方のカバーラッチを同時に引き上げます。


    image:7420 コントローラの上部カバーを取り外す方法を示す図

    上部カバーを持ち上げて、取り外します。

  7. ストレージコントローラでの PCIe カードの位置を探すには、7320 の単一コントローラおよびクラスタコントローラ構成 (7320 の場合)、PCIe オプション (7120 の場合)、または PCIe オプション (7420 の場合) を参照してください。
  8. 7120 または 7320: PCIe カードを交換するには:

    交換する PCIe ライザーに装着されているカードに接続されているデータケーブルを取り外します。あとで正しく接続できるように、ケーブルにラベルを貼ります。

    背面パネルクロスバーの端の 2 本の Phillips 脱落防止機構付きねじを緩め、クロスバーを引き上げ後方に除けて取り外します。


    image:7120 または 7320 コントローラの PCIe カードスロットのクロスバーを取り外す方法を示す図

    ライザーの正面端を留めている脱落防止機構付き留めねじとライザーの端の Phillips ねじを緩めます。

    ライザーを持ち上げて、ストレージコントローラから取り外します。


    image:7120 または 7320 コントローラの PCIe カードのライザーを取り外す方法を示す図

    ライザーボードコネクタから PCIe カードを注意深く取り外し、必要に応じてろ過した圧縮空気でスロットのほこりを取り除きます。


    image:7120 または 7320 コントローラの PCIe カードを取り外す方法を示す図

    交換用 PCIe カードをライザーのスロットに固定し、ケーブルを接続します。


    image:7120 または 7320 コントローラの PCIe カードを取り付ける方法を示す図

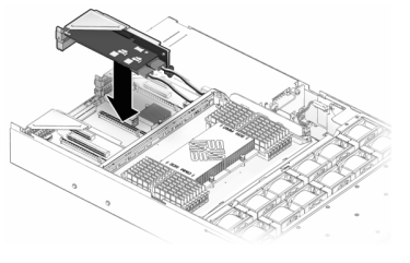
    PCIe カードを固定したライザーをマザーボード上の希望する位置に合わせて、スロットに注意深く挿入します。


    image:7120 または 7320 コントローラの PCIe カードのライザーを取り付ける方法を示す図

    ライザーの背面をマザーボード背面のパネル補強材にスライドさせます。

    マザーボードにライザーを固定するねじを締めます。

    背面の PCI クロスバーを PCIe ライザー上でスライドさせて交換し、2 本の Phillips 脱落防止機構付きねじでクロスバーを固定します。


    image:7120 または 7320 コントローラの PCIe カードスロットのクロスバーを元どおりに取り付ける方法を示す図
  9. 7420: PCIe カードを交換するには:

    固定されている位置から PCIe カードスロットのクロスバーを外し、クロスバーを垂直の位置になるよう回転させます。


    image:7420 コントローラの PCIe カードスロットのクロスバーを外す方法を示す図

    PCIe カードをシャーシに固定している留めねじを取り外します。

    コネクタから PCIe カードを注意深く取り外し、必要に応じてろ過した圧縮空気でスロットのほこりを取り除きます。

    交換用 PCIe カードを PCIe カードスロットに取り付けます。

    留めねじを取り付けて PCIe カードをシャーシに固定します。

    閉じてロックする位置にクロスバーを戻します。


    image:7420 コントローラの PCIe カードスロットのクロスバーを閉じる方法を示す図
  10. 7120 または 7320: 7120 と 7320 ではコンポーネントが多少異なりますが、それぞれの保守の手順は同じです。図は 7320 コントローラを示しています。上部カバーを取り付けるには:

    ストレージコントローラの背面から約 1 インチ (2.5 cm) はみ出るように、シャーシの上に上部カバーを置き、固定されるまで上部カバーを前方にスライドさせます。

    ファンカバーを閉じて、ファンカバーラッチを留めます。ストレージコントローラの電源を入れるには、カバーが完全に閉じている必要があります。


    image:7120 または 7320 コントローラのファンカバーを閉じる方法を示す図
  11. 7420: 上部カバーを取り付けるには:

    ストレージコントローラの背面から約 1 インチ (2.5 cm) 前にはみ出るように、シャーシ (1) の上に上部カバーを置きます。

    シャーシ (2) の背面に向かって、固定されるまで上部カバーをスライドさせます。

    両方のラッチで留められるまで、両手でカバーを下に押します。


    image:7420 コントローラの上部カバーを閉じる方法を示す図
  12. 各レールの側面にあるリリース爪を押し、コントローラを押し込む方向にケーブルがないことを確認しながら、ストレージコントローラをゆっくりとラックに押し込みます。
  13. 電源コードを電源装置に接続します。
  14. スタンバイ電源がオンになっていることを確認します。電源コードを差し込んでから約 2 分後に、電源/OK ステータスインジケータがフロントパネルで点滅すれば、スタンバイ電源はオンになっています。
  15. ペンまたはその他の先端がとがったものを使用して、ストレージコントローラのフロントパネルにある埋め込み式の電源ボタンを押してから放します。電源ボタンの近くにある電源/OK ステータスインジケータが点灯し、そのまま点灯し続けます。
  16. データケーブルを PCIe カードに接続し、ケーブル管理アームを通して配線します。
  17. BUI の「保守」>「ハードウェア」画面に移動し、コントローラの右矢印アイコン image: をクリックします。次に「スロット」をクリックし、新しいコンポーネントのステータスを確認します。オンラインアイコン image: が緑色になります。
  18. Oracle ZFS Storage Appliance インストールガイド の設置の説明に従ってディスクシェルフを取り付け、接続ストレージへの接続の説明に従って拡張ストレージを接続します。
バッテリ

ストレージコントローラが電源を停止しネットワークから切断されているために適切な時間を維持できない場合は、バッテリを交換しなければならないことがあります。小さなマイナスの非金属製のねじ回し (1 番) またはそれと同等のねじ回しが必要です。

このタスクを行う前に、アプライアンスをシャットダウンする必要があります。システムがクラスタ化構成でない場合、ストレージにアクセスできなくなることに注意してください。次のいずれかの方法で、アプライアンスをシャットダウンします。

7x20 コントローラのバッテリの交換

  1. AC 電源コードをストレージコントローラの背面パネルから取り外します。
  2. ケーブルが損傷していないこと、またはラックからストレージコントローラを延長している場合は干渉しないことを確認します。
  3. ストレージコントローラの正面から、2 つのスライドリリースラッチを外します。
  4. スライドリリースラッチを強く押しながら、スライドレールが閉じるまでストレージコントローラをゆっくり前方に引き出します。
  5. 7120 または 7320: 上部カバーを取り外すには:

    ファンモジュールのドアのラッチを外し、2 つのリリース爪を引いて、ファンのドアを開放位置まで回して留めます。

    上部カバーのリリースボタンを押して、上部カバーを後方に約 0.5 インチ (1.3 cm) スライドさせます。

    上部カバーを持ち上げて、取り外します。

  6. 7420: 上部カバーを取り外すには:

    両方のカバーラッチを同時に引き上げます。


    image:7420 コントローラの上部カバーを取り外す方法を示す図
  7. 上部カバーを持ち上げて、取り外します。
  8. 小さな、非金属製のねじ回しを使用して、ラッチを押して、マザーボードからバッテリを取り外します。7420 バッテリをここに示します。
    image:7320 または 7420 コントローラのバッテリを取り外す方法を示す図

    次の図は 7120 バッテリを示しています。


    image:7120 コントローラのバッテリを取り外す方法を示す図
  9. プラス側 (+) を上に向けて交換用バッテリをマザーボードに押し込みます。
  10. 7120 または 7320: 7120 と 7320 ではコンポーネントが多少異なりますが、それぞれの保守の手順は同じです。図は 7320 を示しています。上部カバーを取り付けるには:

    ストレージコントローラの背面から約 1 インチ (2.5 cm) はみ出るように、シャーシの上に上部カバーを置き、固定されるまで上部カバーを前方にスライドさせます。

    ファンカバーを閉じて、ファンカバーラッチを留めます。ストレージコントローラの電源を入れるには、カバーが完全に閉じている必要があります。


    image:7120 または 7320 コントローラのファンカバーを取り外す方法を示す図
  11. 7420: 上部カバーを取り付けるには:

    ストレージコントローラの背面から約 1 インチ (2.5 cm) 前にはみ出るように、シャーシ (1) の上に上部カバーを置きます。

    シャーシ (2) の背面に向かって、固定されるまで上部カバーをスライドさせます。

    両方のラッチで留められるまで、両手でカバーを下に押します。


    image:7420 コントローラの上部カバーを閉じる方法を示す図
  12. 各レールの側面にあるリリース爪を押し、コントローラを押し込む方向にケーブルがないことを確認しながら、ストレージコントローラをゆっくりとラックに押し込みます。
  13. 電源コードを電源装置に接続します。
  14. スタンバイ電源がオンになっていることを確認します。電源コードを差し込んでから約 2 分後に、電源/OK ステータスインジケータがフロントパネルで点滅すれば、スタンバイ電源はオンになっています。
  15. ペンまたはその他の先端がとがったものを使用して、ストレージコントローラのフロントパネルにある埋め込み式の電源ボタンを押してから放します。電源ボタンの近くにある電源/OK ステータスインジケータが点灯し、そのまま点灯し続けます。
  16. データケーブルを PCIe カードに接続し、ケーブル管理アームを通して配線します。
  17. システムのブートが完了したら、ログインし、Oracle ZFS Storage Appliance 管理ガイド のNTP の BUI のクロックタスクの手順を使用して時間を設定します。