JavaScript is required to for searching.
탐색 링크 건너뛰기
인쇄 보기 종료
Oracle® ZFS Storage Appliance 고객 서비스 설명서

ZS3-x, 7x20 컨트롤러, DE2-24, Sun Disk Shelf용

Oracle 기술 네트워크
라이브러리
PDF
인쇄 보기
피드백
search filter icon
search icon

문서 정보

이 설명서 사용

 1 소개

 2 하드웨어 유지 관리

유지 관리

소개

ZS3-2

ZS3-2 하드웨어 개요

컨트롤러 개요

전면 패널

후면 패널

4x4 SAS-2 HBA

직렬 관리 커넥터

네트워크 관리 커넥터

이더넷 포트

클러스터 I/O 포트

클러스터 직렬 포트에서 RJ-45 케이블 분리

물리적 사양

전기 사양

음향 잡음 방출

내부 구성 요소

스토리지, 전원 및 팬 구성 요소

내부 케이블

마더보드, 메모리 및 PCIe 카드

CPU 및 메모리

NIC/HBA 옵션

PCIe 라이저 구성

PCIe 옵션

PCIe 슬롯 순서

선택적 케이블 관리 암

연결 스토리지

ZS3-4

ZS3-4 하드웨어 개요

컨트롤러 개요

섀시 치수

전면 패널

시스템 드라이브

후면 패널

4x4 SAS-2 HBA

전기 사양

내부 보드

구성 요소

CPU 및 메모리

팬 모듈

NIC/HBA 옵션

커넥터

PCIe 옵션

PCIe 슬롯 순서

연결 스토리지

ZS3-2

ZS3-2 CRU 유지 관리 절차

필수 조건

안전 정보

필요한 도구 및 정보

섀시 일련 번호

내부 구성 요소 서비스를 위한 컨트롤러 준비

ZS3-2 내부 구성 요소 서비스를 위한 컨트롤러 준비

전원 제거

랙에서 스토리지 컨트롤러 확장

윗면 덮개 분리

컨트롤러 교체 작업

ZS3-2 컨트롤러 교체 작업

SSD 및 HDD

ZS3-2 컨트롤러 SSD 및 HDD 교체

전원 공급 장치

ZS3-2 컨트롤러 전원 공급 장치 교체

팬 모듈

ZS3-2 컨트롤러 팬 모듈 교체

메모리

ZS3-2 컨트롤러 메모리 교체

PCIe 카드 및 라이저

ZS3-2 컨트롤러 PCIe 카드 및 라이저 교체

USB 플래시 드라이브

ZS3-2 컨트롤러 USB 플래시 드라이브 교체

배터리

ZS3-2 컨트롤러 배터리 교체

Oracle DE2와 Sun Disk Shelf 상호 운용성

ZS3-4

ZS3-4 CRU 유지 관리 절차

필수 조건

안전 정보

필요한 도구 및 정보

섀시 일련 번호

컨트롤러 교체 작업

ZS3-4 컨트롤러 교체 작업

HDD 또는 SSD

ZS3-4 컨트롤러 HDD 또는 SSD 교체

팬 모듈

ZS3-4 컨트롤러 팬 모듈 교체

전원 공급 장치

ZS3-4 컨트롤러 전원 공급 장치 교체

메모리

ZS3-4 컨트롤러 메모리 교체

PCIe 카드 및 라이저

ZS3-4 컨트롤러 PCIe 카드 및 라이저 교체

배터리

ZS3-4 컨트롤러 배터리 교체

Oracle DE2와 Sun Disk Shelf 상호 운용성

7120

7120 하드웨어 개요

섀시 개요

전면 패널

후면 패널

전기 사양

내부 구성 요소

I/O 구성 요소

케이블

CPU 및 메모리

배전, 팬 모듈 및 디스크 구성 요소

독립형 컨트롤러 구성

NIC/HBA 옵션

PCIe 옵션

연결 스토리지

7320

7320 하드웨어 개요

섀시 개요

보드

케이블

7320 I/O 구성 요소

7320 CPU 및 메모리 구성 요소

7320 배전 및 팬 모듈 구성 요소

전기 사양

7320 전면패널

7320 교체 가능 구성 요소

7320 PCIe 카드 및 라이저

7320 후면 패널

7320 단일 및 클러스터 컨트롤러 구성

7320 클러스터 구성

7320 커넥터 배치

연결 스토리지

참조 항목

7420

7420 하드웨어 개요

어플라이언스 개요

섀시

전면 패널

시스템 드라이브

후면 패널

커넥터

전기 사양

내부 보드

구성 요소

CPU 및 메모리

팬 모듈

NIC/HBA 옵션

PCIe 옵션

PCIe 슬롯 순서

연결 스토리지

7x20

7x20 CRU 유지 관리 절차

필수 조건

안전 정보

필요한 도구 및 정보

섀시 일련 번호

컨트롤러 교체 작업

7x20 컨트롤러 교체 작업

HDD 또는 SSD

7x20 컨트롤러 HDD 또는 SSD 교체

팬 모듈

7x20 컨트롤러 팬 모듈 교체

전원 공급 장치

7x20 컨트롤러 전원 공급 장치 교체

메모리

7x20 컨트롤러 메모리 교체

PCIe 카드 및 라이저

7x20 컨트롤러 PCIe 카드 및 라이저 교체

배터리

7x20 컨트롤러 배터리 교체

Oracle DE2와 Sun Disk Shelf 상호 운용성

Shelf

Disk Shelf 개요

SAS-2

전면 패널

드라이브 위치

전면 패널 표시기

후면 패널

I/O 모듈 표시기

SIM 보드 표시기

전원 공급 장치 표시기

Disk Shelf 구성

Oracle Storage Drive Enclosure DE2-24P

Oracle Storage Drive Enclosure DE2-24C

Sun Disk Shelf(DS2)

Shelf

Disk Shelf 유지 관리 절차

필수 조건

안전 정보

정전기 방전 예방 조치

Shelf 정전기 방전 예방 조치

Disk Shelf에서 전원 제거

Disk Shelf에서 전원 제거

작업

Disk Shelf 교체 작업

드라이브

드라이브 교체

전원 공급 장치

전원 공급 장치 교체

I/O 모듈

I/O 모듈 교체

SIM 보드

SIM 보드 교체

결함

하드웨어 결함

ILOM에 연결

관리 포트 구성

ILOM에서 CPU 결함 확인 및 지우기

참조 항목

케이블 연결

연결 스토리지에 연결

컨트롤러 구성별 최대 Disk Shelf 수

다음 단계

 3 시스템 유지 관리

컨트롤러 교체 작업

7x20 컨트롤러 교체 작업

다음 절차를 수행하여 7x20 컨트롤러를 교체할 수 있습니다.

HDD 또는 SSD

오류가 발생한 드라이브가 여러 개 있는 경우 한 번에 하나씩만 교체하십시오. 여러 개의 드라이브를 연속해서 빠르게 분리할 경우 하드웨어/풀 결함이 발생합니다.

7x20 컨트롤러 HDD 또는 SSD 교체

  1. BUI의 Maintenance(유지 관리) > Hardware(하드웨어) 섹션으로 이동한 다음 드라이브 정보 아이콘(image: )을 눌러 오류가 발생한 HDD 또는 SSD를 식별합니다. 자신이 있는 위치가 시스템인 경우 HDD 또는 SSD의 서비스 필요 표시기에 황갈색 불이 켜져 있어야 합니다.
  2. 자신이 있는 위치가 시스템이 아닌 경우 로케이터 아이콘(image: )을 눌러 로케이터 표시기를 켭니다.
  3. HDD 또는 SSD의 해제 버튼을 눌러 래치를 엽니다.
  4. 래치(2)를 잡고 드라이브를 드라이브 슬롯에서 빼냅니다.
    image:7x20 컨트롤러 디스크 드라이브를 분리하는 방법을 보여주는 그림
  5. 15초 후 Hardware(하드웨어) > Maintenance(유지 관리) 화면으로 이동하여 시스템 컨트롤러의 오른쪽 화살표 아이콘(image: )을 눌러 소프트웨어에서 드라이브가 없는 것으로 감지되었는지 확인합니다.
  6. 완전히 고정될 때까지 교체용 드라이브를 슬롯 쪽으로 밉니다.
    image:7x20 컨트롤러 디스크 드라이브를 설치하는 방법을 보여주는 그림
  7. 래치를 닫아 드라이브를 제자리에 고정합니다.

    Sun ZFS Storage 시스템 소프트웨어에서 자동으로 새 드라이브를 인식하고 구성합니다. 컨트롤러 또는 Drive Shelf에 대한 세부 정보를 확인하면 BUI Maintenance(BUI 유지 관리) > Hardware(하드웨어) 화면에 장치가 나타납니다.

팬 모듈

팬 모듈은 핫 스왑 가능 구성 요소이므로, 스토리지 컨트롤러가 실행 중인 동안 다른 하드웨어 기능에 영향을 주지 않으면서 제거하고 설치할 수 있습니다.

7120 또는 7320: 7120 및 7320 스토리지 컨트롤러에서는 팬 모듈과 상태 표시기가 팬 도어 아래에 숨겨져 있습니다. 구성 요소는 7120과 7320 간에 약간 다를 수 있지만, 각각의 서비스 절차는 동일합니다. 다음 그림은 7320 컨트롤러를 보여줍니다.

image:7120 및 7320 컨트롤러 팬 모듈 및 상태 표시기를 보여주는 그림

스토리지 컨트롤러가 실행 중인 동안 도어를 60초 이상 열어 두면 과열되어 종료될 수 있습니다.

7420: 다음 그림은 7420 스토리지 컨트롤러의 팬 모듈을 보여줍니다.

image:7420 컨트롤러 팬 모듈 및 상태 표시기를 보여주는 그림

7x20 컨트롤러 팬 모듈 교체


Caution

주의  -  팬을 제거한 상태에서 컨트롤러를 장시간 작동하면 냉각 시스템의 효과가 저하됩니다. 따라서 교체용 팬은 미리 포장을 풀어 두었다가 결함이 있는 팬을 제거하는 즉시 컨트롤러 섀시에 삽입해야 합니다.


  1. 서비스할 섀시를 찾으려면 BUI의 Maintenance(유지 관리) > Hardware(하드웨어) 화면에서 연관된 로케이터 아이콘(image: )을 누르거나 SP(서비스 프로세서) 프롬프트에서 set /SYS/LOCATE status=on 명령을 실행합니다. 컨트롤러 섀시에서 위치 LED가 깜박거립니다.
  2. 스토리지 컨트롤러를 랙에서 연장할 경우 케이블이 손상되거나 방해가 되지 않는지 확인합니다.
  3. 스토리지 컨트롤러의 앞쪽에 있는 두 개의 슬라이드 해제 래치를 풉니다.
  4. 슬라이드 해제 래치를 밀면서 슬라이드 레일이 고정될 때까지 스토리지 컨트롤러를 앞쪽으로 천천히 잡아당깁니다.
  5. 7120 또는 7320: 팬 모듈을 교체하려면 다음과 같이 합니다.

    도어에 있는 해제 탭을 풀면서 팬 모듈 도어를 엽니다.

    해당하는 서비스 필요 상태 표시기를 찾거나 교체하려는 팬에 대한 BUI의 Maintenance(유지 관리) > Hardware(하드웨어) 화면에서 로케이터 아이콘(image: )을 눌러 결함이 있는 팬 모듈을 식별합니다.

    엄지와 검지를 이용하여 팬 모듈을 들어 올려 꺼냅니다.


    image:7120 또는 7130 컨트롤러 팬 모듈을 분리하는 방법을 보여주는 그림

    교체용 팬 모듈을 스토리지 컨트롤러 팬 슬롯에 설치합니다.


    Caution

    주의  -  컨트롤러가 종료되지 않도록 하려면 팬을 1분 내에 교체해야 합니다.



    image:7120 또는 7130 컨트롤러 팬 모듈을 설치하는 방법을 보여주는 그림

    팬 모듈이 완전히 고정되도록 단단히 누릅니다.

    팬 정상 상태 표시기에 불이 켜지고, 교체된 팬 모듈의 결함 상태 표시기가 꺼졌는지 확인합니다.

    팬을 교체하는 즉시 윗면 덮개 도어를 닫아 스토리지 컨트롤러에서 공기가 통하도록 합니다.

  6. 7420: 팬 모듈을 교체하려면 다음과 같이 합니다.

    해당하는 서비스 필요 상태 표시기를 찾거나 교체하려는 팬에 대한 BUI의 Maintenance(유지 관리) > Hardware(하드웨어) 화면에서 로케이터 아이콘(image: )을 눌러 결함이 있는 팬 모듈을 식별합니다.

    팬 모듈의 위쪽에 있는 래치를 들어 팬 모듈을 잠금 해제한 다음 팬 모듈을 밖으로 꺼냅니다.


    image:7420 컨트롤러 팬 모듈을 분리하고 설치하는 방법을 보여주는 그림

    7420 팬 모듈을 잠금 해제하고 삽입합니다.

    팬 모듈이 완전히 고정되도록 단단히 누릅니다.

    팬 정상 상태 표시기에 불이 켜지고, 교체된 팬 모듈의 결함 상태 표시기가 꺼졌는지 확인합니다.

  7. 위쪽 팬 상태 표시기, 서비스 필요 상태 표시기 및 위치 상태 표시기/위치 버튼이 꺼졌는지 확인합니다.
  8. 각 레일의 측면에 있는 해제 탭을 민 다음 스토리지 컨트롤러를 랙 쪽으로 천천히 밉니다.
전원 공급 장치

스토리지 컨트롤러에는 중복된 핫 스왑 가능 전원 공급 장치가 장착되어 있습니다. 전원 공급 장치에서 오류가 발생했는데 교체품이 없는 경우 공기가 적절히 통하도록 오류가 발생한 전원 공급 장치를 설치된 상태로 두십시오. 고장난 전원 공급 장치는 황갈색 상태 LED로 표시됩니다.

7x20 컨트롤러 전원 공급 장치 교체

  1. 고장난 전원 공급 장치가 있는 스토리지 컨트롤러의 후면에 접근합니다.
  2. CMA(케이블 관리 암)가 설치된 경우 CMA 해제 탭을 누른 상태에서 방해가 되지 않게 암을 돌립니다.
    image:7x20 컨트롤러 케이블 관리 암을 해제하는 방법을 보여주는 그림
  3. 고장난 전원 공급 장치에서 전원 코드를 분리합니다.
  4. 전원 공급 장치를 제거합니다.

    7120 또는 7320: 래치를 해제한 다음 전원 공급 장치를 제거합니다. 구성 요소는 7120과 7320 간에 약간 다를 수 있지만, 각각의 서비스 절차는 동일합니다. 다음 그림은 7320 컨트롤러를 보여줍니다.


    image:7120 또는 7320 컨트롤러 전원 공급 장치를 제거하는 방법을 보여주는 그림

    7420: 전원 공급 장치 핸들을 잡은 다음 해제 래치를 눌러 전원 공급 장치를 제거합니다.


    image:7420 컨트롤러 전원 공급 장치를 제거하는 방법을 보여주는 그림
  5. 교체용 전원 공급 장치를 빈 전원 공급 장치 섀시 베이에 맞춥니다.
  6. 완전히 고정될 때까지 전원 공급 장치를 베이 쪽으로 밉니다. 다음 그림은 7420 전원 공급 장치를 보여줍니다.
    image:7x20 컨트롤러 전원 공급 장치를 설치하는 방법을 보여주는 그림
  7. 전원 공급 장치에 전원 코드를 연결합니다.
  8. 녹색 AC 켜짐 상태 표시기에 불이 켜졌는지 확인합니다.
  9. CMA를 후면 왼쪽 레일 브래킷에 끼우고 CMA를 닫습니다.
  10. BUI의 Maintenance(유지 관리) > Hardware(하드웨어) 화면으로 이동합니다. 컨트롤러의 오른쪽 화살표 아이콘(image: ) 아이콘을 누른 다음 전원 공급 장치를 눌러 새로 설치된 전원 공급 장치의 온라인 아이콘(image: )이 녹색인지 확인합니다.
메모리

결함이 있는 특정 메모리 모듈을 식별하려면 스토리지 컨트롤러를 열고 마더보드의 황갈색 상태 LED를 사용해야 합니다. 일반 메모리 결함을 식별하려면 BUI의 Maintenance(유지 관리) > Hardware(하드웨어) 화면으로 이동한 다음 컨트롤러의 오른쪽 화살표 아이콘(image: )을 누르십시오. 그런 다음 DIMM을 눌러 경고 아이콘(image: )이 표시된 결함 구성 요소를 찾으십시오.

이 작업을 시작하기 전에 반드시 어플라이언스를 종료해야 합니다. 시스템이 클러스터 구성인 경우를 제외하고, 스토리지에 액세스할 수 없습니다. 어플라이언스를 종료할 때 다음 방법 중 하나를 사용하십시오.

7x20 컨트롤러 메모리 교체


Caution

주의  -  이 절차에서는 정전기 방전에 민감한 구성 요소를 취급해야 하는데, 이로 인해 구성 요소에서 장애가 발생할 수 있습니다. 손상을 방지하려면 구성 요소를 다룰 때 정전기 방지 손목대를 착용하고 정전기 방지 매트를 사용하십시오.


  1. 스토리지 컨트롤러의 후면 패널에서 AC 전원 코드를 분리합니다.
  2. 스토리지 컨트롤러를 랙에서 연장할 경우 케이블이 손상되거나 방해가 되지 않는지 확인합니다.
  3. 스토리지 컨트롤러의 앞쪽에 있는 두 개의 슬라이드 해제 래치를 풉니다.
  4. 슬라이드 해제 래치를 밀면서 슬라이드 레일이 고정될 때까지 스토리지 컨트롤러를 앞쪽으로 천천히 잡아당깁니다.
  5. 7120 또는 7320: 구성 요소는 7120과 7320 간에 약간 다를 수 있지만, 각각의 서비스 절차는 동일합니다. 다음 그림은 7320 컨트롤러를 보여줍니다. 윗면 덮개를 제거하려면 다음과 같이 합니다.

    팬 모듈 도어를 풀고 두 개의 해제 탭을 다시 잡아 당긴 다음 팬 도어를 열림 위치로 돌리고 그 상태로 유지합니다.

    윗면 덮개 해제 버튼을 누르고 위면 덮개를 1.3cm(1/2인치) 정도 후면 쪽으로 밉니다.

    윗면 덮개를 들어 올려 제거합니다.

    에어 배플 커넥터를 바깥쪽으로 누르고 에어 배플을 서버에서 들어 올려 에어 배플도 제거합니다.


    image:7120 또는 7320 컨트롤러 윗면 덮개 및 에어 배플을 분리하는 방법을 보여주는 그림
  6. 7420: 윗면 덮개를 제거하려면 다음과 같이 합니다.

    두 개의 덮개 래치를 동시에 위쪽으로 올립니다.


    image:7420 컨트롤러 윗면 덮개를 분리하는 방법을 보여주는 그림

    윗면 덮개를 들어 올려 제거합니다.

  7. 서비스하려는 DIMM을 찾으려면 스토리지 컨트롤러에서 결함 확인 버튼을 누릅니다.

    다음 그림은 7120 컨트롤러의 결함 확인 버튼을 보여줍니다.


    image:7120 또는 7320 컨트롤러 결함 확인 버튼을 보여주는 그림

    다음 그림은 7420 컨트롤러의 결함 확인 버튼을 보여줍니다.


    image:7420 컨트롤러 결함 확인 버튼을 보여주는 그림
  8. 7420: 서비스 필요 상태 표시기를 확인하여 결함이 있는 DIMM이 있는 메모리 라이저를 식별합니다. 메모리 라이저를 들어 올려 마더보드에서 제거한 다음 정전기 방지 매트 위에 놓습니다.
    image:7420 컨트롤러 메모리 라이저를 분리하는 방법을 보여주는 그림
  9. 두 개의 DIMM 슬롯 배출기를 가능한 만큼 바깥쪽으로 돌린 다음 결함이 있는 DIMM을 똑바르게 들어 올려 소켓에서 제거합니다.
    image:7420 컨트롤러 DIMM을 제거하는 방법을 보여주는 그림
  10. 교체용 DIMM을 커넥터에 맞추고 구성 요소가 올바른 방향이 되도록 노치를 키에 맞춥니다.
    image:7420 컨트롤러 DIMM을 설치하는 방법을 보여주는 그림
  11. 배출기 탭이 구성 요소를 제자리에 고정할 때까지 DIMM을 커넥터 쪽으로 밉니다.
  12. 7120 또는 7320: 구성 요소는 7120과 7320 간에 약간 다를 수 있지만, 각각의 서비스 절차는 동일합니다. 다음 그림은 7320을 보여줍니다. 덮개를 교체하려면 다음과 같이 합니다.

    섀시의 윗면 덮개가 스토리지 컨트롤러의 후면을 2.5cm(1인치) 정도 덮도록 섀시의 윗면 덮개를 놓습니다.

    윗면 덮개가 고정될 때까지 앞쪽으로 밉니다.

    팬 덮개를 닫고 팬 덮개 래치를 잠급니다. 스토리지 컨트롤러의 전원을 켜려면 덮개가 완전히 닫혀 있어야 합니다.


    image:7120 또는 7320 컨트롤러 팬 덮개를 닫는 방법을 보여주는 그림
  13. 7420: 덮개를 교체하려면 다음과 같이 합니다.

    라이저 모듈이 제자리에 고정될 때까지 메모리 라이저 모듈을 연관된 CPU 메모리 라이저 슬롯 쪽으로 밉니다.


    image:7420 컨트롤러 라이저 모듈을 교체하는 방법을 보여주는 그림

    섀시의 윗면 덮개가 2.5cm(1인치) 정도 스토리지 컨트롤러 후면의 앞쪽에 오도록 섀시의 윗면 덮개를 놓습니다.

    윗면 덮개가 고정될 때까지 윗면 덮개를 섀시의 후면 쪽으로 민 다음 두 래치가 맞물릴 때까지 두 손으로 덮개를 누릅니다.


    image:7420 컨트롤러 윗면 덮개를 닫는 방법을 보여주는 그림
  14. 각 레일의 측면에 있는 해제 탭을 민 다음 스토리지 컨트롤러를 랙 쪽으로 천천히 밉니다.
    image:레일의 해제 탭을 누르는 방법을 보여주는 그림

    다음 그림은 7420 섀시를 보여줍니다.


    image:7x20 컨트롤러를 랙에 설치하는 방법을 보여주는 그림
  15. 전원 공급 장치에 전원 코드를 연결합니다.
  16. 대기 전원이 켜져 있는지 확인합니다. 즉, 전원 코드를 꽂으면 전원/정상 상태 표시기가 전면 패널에서 2분 정도 깜박거립니다.
  17. 펜 또는 다른 뾰족한 물체를 사용하여 스토리지 컨트롤러 전면 패널에 있는 오목한 전원 버튼을 눌렀다 놓습니다.

    전원 버튼 옆에 있는 전원/OK 상태 표시기에 불이 켜진 상태로 유지됩니다. BUI의 Maintenance(유지 관리) > Hardware(하드웨어) 화면을 통해 DIMM에 대한 세부 정보 페이지에서 교체품의 상태를 확인할 수 있습니다.

PCIe 카드 및 라이저

BUI의 Maintenance(유지 관리) > Hardware(하드웨어) 화면으로 이동하여 컨트롤러의 오른쪽 화살표 아이콘(image: )을 누른 다음 Slots(슬롯)를 누르면 결함 구성 요소를 찾을 수 있습니다.

7120 Sun Flash Accelerator F20 카드는 FRU이므로 반드시 Oracle Service 담당자가 교체해야 합니다.

모든 HBA는 동일한 유형이어야 합니다. 새로 릴리스된 HBA를 설치하기 전에 시스템 소프트웨어를 업그레이드해야 합니다.

이 작업을 시작하기 전에 반드시 컨트롤러를 종료해야 합니다. 시스템이 클러스터 구성인 경우를 제외하고, 스토리지에 액세스할 수 없습니다. 어플라이언스를 종료할 때 다음 방법 중 하나를 사용하십시오.

7x20 컨트롤러 PCIe 카드 및 라이저 교체


Caution

주의  -  이 절차에서는 정전기 방전에 민감한 구성 요소를 취급해야 하는데, 이로 인해 구성 요소에서 장애가 발생할 수 있습니다. 손상을 방지하려면 구성 요소를 다룰 때 정전기 방지 손목대를 착용하고 정전기 방지 매트를 사용하십시오.


  1. 스토리지 컨트롤러의 후면 패널에서 AC 전원 코드를 분리합니다.
  2. 스토리지 컨트롤러를 랙에서 연장할 경우 케이블이 손상되거나 방해가 되지 않는지 확인합니다.
  3. 스토리지 컨트롤러의 앞쪽에 있는 두 개의 슬라이드 해제 래치를 풉니다.
  4. 슬라이드 해제 래치를 밀면서 슬라이드 레일이 고정될 때까지 스토리지 컨트롤러를 앞쪽으로 천천히 잡아당깁니다.
  5. 7120 또는 7320: 윗면 덮개를 제거하려면 다음과 같이 합니다.

    팬 모듈 도어를 풀고 두 개의 해제 탭을 다시 잡아 당긴 다음 팬 도어를 열림 위치로 돌리고 그 상태로 유지합니다.

    윗면 덮개 해제 버튼을 누르고 위면 덮개를 1.3cm(1/2인치) 정도 후면 쪽으로 밉니다.

    윗면 덮개를 들어 올려 제거합니다.

  6. 7420: 윗면 덮개를 제거하려면 다음과 같이 합니다.

    두 개의 덮개 래치를 동시에 위쪽으로 올립니다.


    image:7420 컨트롤러 윗면 덮개를 분리하는 방법을 보여주는 그림

    윗면 덮개를 들어 올려 제거합니다.

  7. 스토리지 컨트롤러에서 PCIe 카드 위치를 찾습니다. 7320은 7320 단일 및 클러스터 컨트롤러 구성, 7120은 PCIe 옵션, 7420은 PCIe 옵션을 참조하십시오.
  8. 7120 또는 7320: PCIe 카드를 교체하려면 다음과 같이 합니다.

    교체하려는 PCIe 라이저 카드에 연결된 데이터 케이블을 분리합니다. 나중에 제대로 연결할 수 있도록 케이블에 레이블을 표시합니다.

    후면 패널 크로스바의 끝에 있는 두 개의 십자 홈 고정 나사를 풀고 크로스바를 들어 올려 제거합니다.


    image:7120 또는 7320 컨트롤러 PCIe 카드 슬롯 크로스바를 제거하는 방법을 보여주는 그림

    라이저의 전면 끝을 고정하고 있는 고정 나사와 라이저 끝에 있는 십자 홈 나사를 풉니다.

    라이저를 들어 올려 스토리지 컨트롤러에서 제거합니다.


    image:7120 또는 7320 컨트롤러 PCIe 카드 라이저를 제거하는 방법을 보여주는 그림

    라이저 보드 커넥터에서 PCIe 카드를 조심해서 제거하고 필요한 경우 정화된 압축 공기로 슬롯을 청소합니다.


    image:7120 또는 7320 컨트롤러 PCIe 카드를 제거하는 방법을 보여주는 그림

    교체용 PCIe 카드를 라이저 슬롯에 고정하고 케이블을 연결합니다.


    image:7120 또는 7320 컨트롤러 PCIe 카드를 설치하는 방법을 보여주는 그림

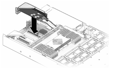
    연결된 PCIe 카드와 라이저를 마더보드의 원하는 위치에 맞춘 다음 조심스럽게 슬롯에 끼웁니다.


    image:7120 또는 7320 컨트롤러 PCIe 카드 라이저를 설치하는 방법을 보여주는 그림

    라이저의 뒷면을 마더보드 후면 패널 Stiffener(스티프너) 쪽으로 밉니다.

    라이저를 마더보드에 고정하는 나사를 조입니다.

    후면 패널 PCI 크로스바를 PCIe 라이저를 향해 아래쪽으로 밀어 교체하고 두 개의 십자 홈 고정 나사로 크로스바를 고정합니다.


    image:7120 또는 7320 컨트롤러 PCIe 카드 슬롯 크로스바를 교체하는 방법을 보여주는 그림
  9. 7420: PCIe 카드를 교체하려면 다음과 같이 합니다.

    PCIe 카드 슬롯 크로스바를 잠금 위치에서 풀어 크로스바를 수직으로 세웁니다.


    image:7420 컨트롤러 PCIe 카드 슬롯 크로스바를 분리하는 방법을 보여주는 그림

    PCIe 카드를 섀시에 고정하고 있는 고정 나사를 제거합니다.

    커넥터에서 PCIe 카드를 조심해서 제거하고 필요한 경우 정화된 압축 공기로 슬롯을 청소합니다.

    교체용 PCIe 카드를 PCIe 카드 슬롯에 설치합니다.

    고정 나사를 설치하여 PCIe 카드를 섀시에 고정합니다.

    크로스바를 닫힘 및 잠금 위치로 되돌립니다.


    image:7420 컨트롤러 PCIe 카드 슬롯 크로스바를 닫는 방법을 보여주는 그림
  10. 7120 또는 7320: 구성 요소는 7120과 7320 간에 약간 다를 수 있지만, 각각의 서비스 절차는 동일합니다. 다음 그림은 7320 컨트롤러를 보여줍니다. 윗면 덮개를 설치하려면 다음과 같이 합니다.

    섀시의 윗면 덮개가 스토리지 컨트롤러의 후면을 2.5cm(1인치) 정도 덮도록 섀시의 윗면 덮개를 놓은 다음 윗면 덮개가 고정될 때까지 밉니다.

    팬 덮개를 닫고 팬 덮개 래치를 잠급니다. 스토리지 컨트롤러의 전원을 켜려면 덮개가 완전히 닫혀 있어야 합니다.


    image:7120 또는 7320 컨트롤러 팬 덮개를 닫는 방법을 보여주는 그림
  11. 7420: 윗면 덮개를 설치하려면 다음과 같이 합니다.

    섀시의 윗면 덮개가 2.5cm(1인치) 정도 스토리지 컨트롤러 후면의 앞쪽에 오도록 섀시의 윗면 덮개(1)를 놓습니다.

    윗면 덮개가 고정될 때까지 윗면 덮개를 섀시 후면(2) 쪽으로 밉니다.

    두 래치가 맞물릴 때까지 두 손으로 덮개를 누릅니다.


    image:7420 컨트롤러 윗면 덮개를 닫는 방법을 보여주는 그림
  12. 각 레일의 측면에 있는 해제 탭을 민 다음 스토리지 컨트롤러를 랙 쪽으로 천천히 밀되, 케이블이 컨트롤러 경로를 방해하지 않도록 합니다.
  13. 전원 공급 장치에 전원 코드를 연결합니다.
  14. 대기 전원이 켜져 있는지 확인합니다. 즉, 전원 코드를 꽂으면 전원/정상 상태 표시기가 전면 패널에서 2분 정도 깜박거립니다.
  15. 펜 또는 다른 뾰족한 물체를 사용하여 스토리지 컨트롤러 전면 패널에 있는 오목한 전원 버튼을 눌렀다 놓습니다. 전원 버튼 옆에 있는 전원/OK 상태 표시기에 불이 켜진 상태로 유지됩니다.
  16. 케이블 관리 암을 통과하도록 경로 지정하여 데이터 케이블을 PCIe 카드에 연결합니다.
  17. BUI의 Maintenance(유지 관리) > Hardware(하드웨어) 화면으로 이동한 다음 컨트롤러의 오른쪽 화살표 아이콘(image: )을 누릅니다. 그런 다음 Slots(슬롯)를 눌러 새 구성 요소의 상태를 확인합니다. 온라인 아이콘(image: )은 녹색이어야 합니다.
  18. Oracle ZFS Storage Appliance 설치 설명서 의 설치에 설명된 대로 에 따라 Disk Shelf를 설치한 다음 연결 스토리지에 연결에 설명된 대로 확장 스토리지를 연결합니다.
배터리

전원이 꺼져 네트워크 연결이 끊긴 경우 스토리지 컨트롤러가 적절한 시간 동안 유지되지 않으면 배터리를 교체해야 합니다. 금속이 아닌 소형(1번 일자) 스크루드라이버 또는 이와 동등한 드라이버가 필요합니다.

이 작업을 시작하기 전에 반드시 어플라이언스를 종료해야 합니다. 시스템이 클러스터 구성인 경우를 제외하고, 스토리지에 액세스할 수 없습니다. 어플라이언스를 종료할 때 다음 방법 중 하나를 사용하십시오.

7x20 컨트롤러 배터리 교체

  1. 스토리지 컨트롤러의 후면 패널에서 AC 전원 코드를 분리합니다.
  2. 스토리지 컨트롤러를 랙에서 연장할 경우 케이블이 손상되거나 방해가 되지 않는지 확인합니다.
  3. 스토리지 컨트롤러의 앞쪽에 있는 두 개의 슬라이드 해제 래치를 풉니다.
  4. 슬라이드 해제 래치를 밀면서 슬라이드 레일이 고정될 때까지 스토리지 컨트롤러를 앞쪽으로 천천히 잡아당깁니다.
  5. 7120 또는 7320: 윗면 덮개를 제거하려면 다음과 같이 합니다.

    팬 모듈 도어를 풀고 두 개의 해제 탭을 다시 잡아 당긴 다음 팬 도어를 열림 위치로 돌리고 그 상태로 유지합니다.

    윗면 덮개 해제 버튼을 누르고 위면 덮개를 1.3cm(1/2인치) 정도 후면 쪽으로 밉니다.

    윗면 덮개를 들어 올려 제거합니다.

  6. 7420: 윗면 덮개를 제거하려면 다음과 같이 합니다.

    두 개의 덮개 래치를 동시에 위쪽으로 올립니다.


    image:7420 컨트롤러 윗면 덮개를 분리하는 방법을 보여주는 그림
  7. 윗면 덮개를 들어 올려 제거합니다.
  8. 금속이 아닌 소형 스크루드라이버를 사용하여 래치를 누르고 마더보드에서 배터리를 제거합니다. 7420 배터리는 여기에 표시된 것과 같습니다.
    image:7320 또는 7420 컨트롤러 배터리를 분리하는 방법을 보여주는 그림

    다음 그림은 7120 배터리를 보여줍니다.


    image:7120 컨트롤러 배터리를 분리하는 방법을 보여주는 그림
  9. 양극(+)이 위쪽을 향하게 하여 교체용 배터리를 마더보드로 밀어 넣습니다.
  10. 7120 또는 7320: 구성 요소는 7120과 7320 간에 약간 다를 수 있지만, 각각의 서비스 절차는 동일합니다. 다음 그림은 7320을 보여줍니다. 윗면 덮개를 설치하려면 다음과 같이 합니다.

    섀시의 윗면 덮개가 스토리지 컨트롤러의 후면을 2.5cm(1인치) 정도 덮도록 섀시의 윗면 덮개를 놓은 다음 윗면 덮개가 고정될 때까지 밉니다.

    팬 덮개를 닫고 팬 덮개 래치를 잠급니다. 스토리지 컨트롤러의 전원을 켜려면 덮개가 완전히 닫혀 있어야 합니다.


    image:7120 또는 7320 컨트롤러 팬 덮개를 제거하는 방법을 보여주는 그림
  11. 7420: 윗면 덮개를 설치하려면 다음과 같이 합니다.

    섀시의 윗면 덮개가 2.5cm(1인치) 정도 스토리지 컨트롤러 후면의 앞쪽에 오도록 섀시의 윗면 덮개(1)를 놓습니다.

    윗면 덮개가 고정될 때까지 윗면 덮개를 섀시 후면(2) 쪽으로 밉니다.

    두 래치가 맞물릴 때까지 두 손으로 덮개를 누릅니다.


    image:7420 컨트롤러 윗면 덮개를 닫는 방법을 보여주는 그림
  12. 각 레일의 측면에 있는 해제 탭을 민 다음 스토리지 컨트롤러를 랙 쪽으로 천천히 밀되, 케이블이 컨트롤러 경로를 방해하지 않도록 합니다.
  13. 전원 공급 장치에 전원 코드를 연결합니다.
  14. 대기 전원이 켜져 있는지 확인합니다. 즉, 전원 코드를 꽂으면 전원/정상 상태 표시기가 전면 패널에서 2분 정도 깜박거립니다.
  15. 펜 또는 다른 뾰족한 물체를 사용하여 스토리지 컨트롤러 전면 패널에 있는 오목한 전원 버튼을 눌렀다 놓습니다. 전원 버튼 옆에 있는 전원/OK 상태 표시기에 불이 켜진 상태로 유지됩니다.
  16. 케이블 관리 암을 통과하도록 경로 지정하여 데이터 케이블을 PCIe 카드에 연결합니다.
  17. 시스템 부트가 완료되면 로그인한 다음 Oracle ZFS Storage Appliance 관리 설명서 의 NTP BUI 시계 작업의 단계를 수행하여 시간을 설정합니다.