JavaScript is required to for searching.
跳过导航链接
退出打印视图
Oracle® ZFS Storage Appliance 客户服务手册

适用于 ZS3-x、7x20 控制器和 DE2-24、Sun Disk Shelf

Oracle 技术网
文档库
PDF
打印视图
反馈
search filter icon
search icon

文档信息

使用此文档

 1 简介

 2 硬件维护

维护

简介

ZS3-2

ZS3-2 硬件概述

控制器概述

前面板

后面板

4x4 SAS-2 HBA

串行管理连接器

网络管理连接器

以太网端口

群集 I/O 端口

断开连接到群集串行端口的 RJ-45 电缆

物理规格

电气规格

噪声排放

内部组件

存储、电源和风扇组件

内部电缆

主板、内存和 PCIe 卡

CPU 和内存

NIC/HBA 选件

PCIe 竖隔板配置

PCIe 选件

PCIe 插槽顺序

可选理线架

连接的存储

ZS3-4

ZS3-4 硬件概述

控制器概述

机箱尺寸

前面板

系统驱动器

后面板

4x4 SAS-2 HBA

电气规格

内部板

组件

CPU 和内存

风扇模块

NIC/HBA 选件

连接器

PCIe 选件

PCIe 插槽顺序

连接的存储

ZS3-2

ZS3-2 CRU 维护过程

先决条件

安全信息

所需工具和信息

机箱序列号

准备控制器以维修内部组件

ZS3-2 准备控制器以维修内部组件

移除电源

从机架中扩展存储控制器

移除顶盖

控制器更换任务

ZS3-2 控制器更换任务

SSD 和 HDD

更换 ZS3-2 控制器的 SSD 和 HDD

电源

更换 ZS3-2 控制器电源

风扇模块

更换 ZS3-2 控制器风扇模块

内存

更换 ZS3-2 控制器内存

PCIe 卡和竖隔板

更换 ZS3-2 控制器的 PCIe 卡和竖隔板

USB 闪存驱动器

更换 ZS3-2 控制器 USB 闪存驱动器

电池

更换 ZS3-2 控制器电池

Oracle DE2 与 Sun Disk Shelf 互操作性

ZS3-4

ZS3-4 CRU 维护过程

先决条件

安全信息

所需工具和信息

机箱序列号

控制器更换任务

ZS3-4 控制器更换任务

HDD 或 SSD

更换 ZS3-4 控制器的 HDD 和 SSD

风扇模块

更换 ZS3-4 控制器风扇模块

电源

更换 ZS3-4 控制器电源

内存

更换 ZS3-4 控制器内存

PCIe 卡和竖隔板

更换 ZS3-4 控制器的 PCIe 卡和竖隔板

电池

更换 ZS3-4 控制器电池

Oracle DE2 与 Sun Disk Shelf 互操作性

7120

7120 硬件概述

机箱概述

前面板

后面板

电气规格

内部组件

I/O 组件

电缆

CPU 和内存

配电、风扇模块和磁盘组件

单机控制器配置

NIC/HBA 选件

PCIe 选件

连接的存储

7320

7320 硬件概述

机箱概述

电缆

7320 I/O 组件

7320 CPU 和内存组件

7320 配电和风扇模块组件

电气规格

7320 前面板

7320 可更换组件

7320 PCIe 卡和竖隔板

7320 后面板

7320 单控制器和群集控制器配置

7320 群集配置

7320 连接器管脚分配

连接的存储

另请参见

7420

7420 硬件概述

设备概述

机箱

前面板

系统驱动器

后面板

连接器

电气规格

内部板

组件

CPU 和内存

风扇模块

NIC/HBA 选件

PCIe 选件

PCIe 插槽顺序

连接的存储

7x20

7x20 CRU 维护过程

先决条件

安全信息

所需工具和信息

机箱序列号

控制器更换任务

7x20 控制器更换任务

HDD 或 SSD

更换 7x20 控制器的 HDD 和 SSD

风扇模块

更换 7x20 控制器风扇模块

电源

更换 7x20 控制器电源

内存

更换 7x20 控制器内存

PCIe 卡和竖隔板

更换 7x20 控制器的 PCIe 卡和竖隔板

电池

更换 7x20 控制器电池

Oracle DE2 与 Sun Disk Shelf 互操作性

机框

磁盘机框概述

SAS-2

前面板

驱动器位置

前面板指示灯

后面板

I/O 模块指示灯

SIM 板指示灯

电源指示灯

磁盘机框配置

Oracle Storage Drive Enclosure DE2-24P

Oracle Storage Drive Enclosure DE2-24C

Sun Disk Shelf (DS2)

机框

磁盘机框维护过程

先决条件

安全信息

静电放电预防措施

机框静电放电预防措施

切断磁盘机框的电源

切断磁盘机框的电源

任务

磁盘机框更换任务

驱动器

更换驱动器

电源

更换电源

I/O 模块

更换 I/O 模块

SIM 板

更换 SIM 板

故障

硬件故障

连接到 ILOM

管理端口配置

在 ILOM 中查看并清除 CPU 故障

另请参见

布线

连接到附加存储

每个控制器配置的最大磁盘机框数

后续步骤

 3 系统维护

控制器更换任务

7x20 控制器更换任务

使用以下步骤更换 7x20 控制器:

HDD 或 SSD

如有多个驱动器发生故障,一次仅更换一个驱动器。连续快速移除多个驱动器会导致硬件/池发生故障。

更换 7x20 控制器的 HDD 和 SSD

  1. 确定出现故障的 HDD 或 SSD,方法是转至 BUI 的 "Maintenance"(维护)> "Hardware"(硬件)部分,然后单击驱动器信息图标 image: 。如果是在该系统上进行操作,则 HDD 或 SSD 上的琥珀色“需要维修”指示灯应亮起。
  2. 如果不是在该系统上进行操作,请通过单击定位器图标 image: 来打开定位器指示灯。
  3. 推动 HDD 或 SSD 上的释放按钮可打开锁扣。
  4. 用手抓住锁扣 (2),将驱动器从驱动器插槽中拔出。
    image:图中显示了如何移除 7x20 控制器磁盘驱动器
  5. 15 秒之后,导航到 "Hardware"(硬件)> "Maintenance"(维护)屏幕,然后单击系统控制器上的右箭头图标 image: ,验证软件能否检测到该驱动器不存在。
  6. 将更换驱动器滑入插槽中,直至其完全就位。
    image:图中显示了如何安装 7x20 控制器磁盘驱动器
  7. 关闭锁扣,将驱动器锁定到位。

    Sun ZFS Storage 系统软件会自动检测和配置新驱动器。查看控制器或驱动器机框的详细信息时,该设备将显示在 BUI 的 "Maintenance"(维护)> "Hardware"(硬件)屏幕中。

风扇模块

风扇模块可热交换,并且可以在存储控制器运行的同时进行移除和安装,而不影响其他硬件功能。

7120 或 7320:在 7120 和 7320 存储控制器中,风扇模块和状态指示灯隐藏在风扇门下方。7120 和 7320 中的组件可能会略有不同,但是,每个组件的维修过程是相同的。下图显示了 7320 控制器。

image:图中显示了 7120 和 7320 控制器风扇模块和状态指示灯。

在存储控制器运行时将顶盖门打开超过 60 秒可能会导致控制器过热而关机。

7420:下图显示了 7420 存储控制器中的风扇模块。

image:图中显示了 7420 控制器的风扇模块和状态指示灯。

更换 7x20 控制器风扇模块


Caution

注意  -  在移除风扇的情况下长时间地运行控制器会降低冷却系统的有效性。由于此原因,应提前拆开更换风扇,并在移除故障风扇之后尽快将更换风扇插入控制器机箱中。


  1. 要定位需要维修的机箱,请在 BUI 的 "Maintenance"(维护)> "Hardware"(硬件)屏幕中单击关联的定位器图标 image: ,或者在服务处理器 (service processor, SP) 提示符下发出 set /SYS/LOCATE status=on 命令。控制器机箱上的定位 LED 指示灯将开始闪烁。
  2. 确认在机架中扩展存储控制器时,没有电缆损坏或受到电缆的干扰。
  3. 松开存储控制器前部的两个滑动释放锁扣。
  4. 压住滑动释放锁扣,同时缓慢向前推存储控制器,直到滑轨锁定。
  5. 7120 或 7320:更换风扇模块:

    在拉开门上的释放卡舌的同时,打开风扇模块门。

    确定出现故障的风扇模块,方法是找到相应的“需要维修”状态指示灯,或者在 BUI 的 "Maintenance"(维护)> "Hardware"(硬件)屏幕中单击要更换的风扇的定位器图标 image:

    用拇指和食指将风扇模块拔出。


    image:图中显示了如何移除 7120 或 7130 控制器风扇模块

    将更换风扇模块装入存储控制器风扇插槽中。


    Caution

    注意  -  必须在一分钟内更换完风扇以避免控制器关机。



    image:图中显示了如何安装 7120 或 7130 控制器风扇模块

    向风扇模块施加稳定的压力,使其完全就位。

    确认“风扇正常”状态指示灯已亮起,并且更换后的风扇模块上的故障状态指示灯不亮。

    更换风扇之后,立即关上顶盖门,以保持存储控制器中的气流。

  6. 7420:更换风扇模块:

    确定出现故障的风扇模块,方法是找到相应的“需要维修”状态指示灯,或者在 BUI 的 "Maintenance"(维护)> "Hardware"(硬件)屏幕中单击要更换的风扇的定位器图标 image:

    提起风扇模块顶部的锁扣以解除风扇模块锁定,然后将风扇模块拔出。


    image:图中显示了如何移除 7420 控制器风扇模块

    解除锁定,然后插入 7420 风扇模块。

    向风扇模块施加稳定的压力,使其完全就位。

    确认“风扇正常”状态指示灯已亮起,并且更换后的风扇模块上的故障状态指示灯不亮。

  7. 确认“顶部风扇”状态指示灯、“需要维修”状态指示灯以及“定位器”状态指示灯/定位器按钮均不亮。
  8. 推动每个滑轨侧面的释放卡舌,然后缓慢地将存储控制器滑入机架中。
电源

存储控制器配备了可热交换的冗余电源。如果电源出现故障而且没有可更换的电源,请保持故障电源为安装状态以确保气流正常。出现故障的电源会通过琥珀色的 LED 状态指示灯指示。

更换 7x20 控制器电源

  1. 把手伸到故障电源所在的存储控制器的后面。
  2. 如果安装了理线架 (cable management arm, CMA),请按住 CMA 释放卡舌,然后旋转理线架,将其取出。
    image:图中显示了如何释放 7x20 控制器理线架
  3. 断开连接到故障电源的电源线。
  4. 移除电源。

    7120 或 7320:松开锁扣,然后移除电源。7120 和 7320 中的组件可能会略有不同,但是,每个组件的维修过程是相同的。下图显示了 7320 控制器。


    image:图中显示了如何移除 7120 或 7320 控制器电源

    7420:握住电源把手,然后按下释放锁扣移除电源。


    image:图中显示了如何移除 7420 控制器电源
  5. 将更换电源与空的电源机箱托架对齐。
  6. 将电源滑入托架中,直到其完全就位。下图显示了 7420 电源。
    image:图中显示了如何安装 7x20 控制器电源
  7. 将电源线连接到电源上。
  8. 确认绿色的“交流电源存在”状态指示灯已亮起。
  9. 关闭 CMA,将 CMA 插入左后方的滑轨托架。
  10. 在 BUI 中转至 "Maintenance"(维护)> "Hardware"(硬件)屏幕。单击控制器的右箭头图标 image: ,然后单击电源以确认新安装的电源的联机图标 image: 为绿色。
内存

要确定特定内存模块是否已出现故障,必须打开存储控制器,然后查看主板上的琥珀色 LED 状态指示灯。要确定一般的内存故障,请在 BUI 中转至 "Maintenance"(维护)> "Hardware"(硬件)屏幕,并单击控制器上的右箭头图标 image: 。然后单击 DIMM 以找到出现故障的组件(通过警告图标 image: 指示)。

在开始此任务之前,必须 关闭设备。请注意,此操作将导致无法访问存储器,除非系统处于群集配置中。可使用以下方法之一关闭设备:

更换 7x20 控制器内存


Caution

注意  -  此过程要求处理对静电放电敏感(可能导致组件出现故障)的组件。为避免损坏组件,在处理组件时,请佩戴防静电手腕带并使用防静电垫。


  1. 断开连接到存储控制器后面板的交流电源线。
  2. 确认在机架中扩展存储控制器时,没有电缆损坏或受到电缆的干扰。
  3. 松开存储控制器前部的两个滑动释放锁扣。
  4. 压住滑动释放锁扣,同时缓慢向前推存储控制器,直到滑轨锁定。
  5. 7120 或 7320:7120 和 7320 中的组件可能会略有不同,但是,每个组件的维修过程是相同的。下图显示了 7320 控制器。移除顶盖:

    打开风扇模块门的锁扣,将两个释放卡舌向后拉,然后将风扇门旋转至打开位置并停留在该位置。

    按下顶盖释放按钮,同时将顶盖向后滑动大约半英寸(1.3 厘米)。

    向上提起并移除顶盖。

    同时移除气流挡板,方法是按下外面的气流挡板连接器,然后将气流挡板向上提起并从服务器中取出。


    image:图中显示了如何移除 7120 或 7320 控制器顶盖和气流挡板
  6. 7420:移除顶盖:

    同时提起盖上的两个锁扣并向上移动。


    image:图中显示了如何移除 7420 控制器顶盖

    向上提起并移除顶盖。

  7. 要定位需要维修的 DIMM,请按下存储控制器上的故障提醒按钮。

    下图显示了 7120 控制器上的故障提醒按钮。


    image:图中显示了 7120 或 7320 控制器的故障提醒按钮

    下图显示了 7420 控制器上的故障提醒按钮。


    image:图中显示了 7420 控制器的故障提醒按钮
  8. 7420:通过“需要维修”状态指示灯确定出现故障的 DIMM 所在的内存竖隔板。垂直向上提起内存竖隔板,将其从主板中移除,然后将其放在防静电垫上。
    image:图中显示了如何移除 7420 控制器内存竖隔板
  9. 向外旋转两个 DIMM 插槽弹出杆,直到被挡上,然后小心地将出现故障的 DIMM 垂直向上提起,将其从插槽中移除。
    image:图中显示了如何移除 7420 控制器 DIMM
  10. 将更换 DIMM 对准连接器,使凹槽与卡固销子对齐,以确保组件方向正确。
    image:图中显示了如何安装 7420 控制器 DIMM
  11. 将 DIMM 推入连接器深处,直到弹出卡舌将组件锁定到位。
  12. 7120 或 7320:7120 和 7320 中的组件可能会略有不同,但是,每个组件的维修过程是相同的。下图显示了 7320。更换箱盖:

    将顶盖置于机箱上,使其悬于存储控制器背面上方大约一英寸(2.5 厘米)距离处。

    将顶盖向前滑动直到它固定到位。

    关闭风扇盖,并啮合风扇盖锁扣。必须彻底合上风扇盖,然后才能打开存储控制器的电源。


    image:图中显示了如何关闭 7120 或 7320 控制器风扇盖
  13. 7420:更换箱盖:

    将内存竖隔板模块推入至关联的 CPU 内存竖隔板插槽深处,直到竖隔板模块锁定到位。


    image:图中显示了如何更换 7420 控制器竖隔板模块

    将顶盖置于机箱上,使其悬于存储控制器背面前方大约一英寸(2.5 厘米)距离处。

    将顶盖滑入机箱的背面,直到它固定到位,然后用双手向下按箱盖直到两个锁扣都完全啮合。


    image:图中显示了如何关闭 7420 控制器顶盖
  14. 推动每个滑轨侧面的释放卡舌,然后缓慢地将存储控制器推入机架中。
    image:图中显示了如何按下滑轨上的释放卡舌

    下图显示了 7420 机箱。


    image:图中显示了如何将 7x20 控制器安装到机架中
  15. 将电源线连接到电源上。
  16. 确认备用电源已打开(接通电源线之后大约两分钟,前面板上的“电源/正常”状态指示灯将开始闪烁)。
  17. 使用笔或其他带尖头的工具按下存储控制器前面板上的凹陷式电源按钮并松开。

    电源按钮旁边的“电源/正常”状态指示灯将亮起并保持稳定。BUI 的 "Maintenance"(维护)> "Hardware"(硬件)屏幕中将提供更换组件的状态(在 DIMM 的 "Details"(详细信息)页面中)。

PCIe 卡和竖隔板

请在 BUI 中转到 "Maintenance"(维护)> "Hardware"(硬件)屏幕并单击控制器上的右箭头图标 image: ,然后单击 "Slots"(插槽)定位出现故障的组件。

请注意,7120 Sun Flash Accelerator F20 卡是一个 FRU,且必须由 Oracle 服务代表更换。

所有 HBA 必须是同一类型。请确保先升级您的系统软件,再安装新发行的 HBA。

在开始此任务之前,必须 关闭控制器。请注意,此操作将导致无法访问存储器,除非系统处于群集配置中。可使用以下方法之一关闭设备:

更换 7x20 控制器的 PCIe 卡和竖隔板


Caution

注意  -  此过程要求处理对静电放电敏感(可能导致组件出现故障)的组件。为避免损坏组件,在处理组件时,请佩戴防静电手腕带并使用防静电垫。


  1. 断开连接到存储控制器后面板的交流电源线。
  2. 确认在机架中扩展存储控制器时,没有电缆损坏或受到电缆的干扰。
  3. 松开存储控制器前部的两个滑动释放锁扣。
  4. 压住滑动释放锁扣,同时缓慢向前推存储控制器,直到滑轨锁定。
  5. 7120 或 7320:移除顶盖:

    打开风扇模块门的锁扣,将两个释放卡舌向后拉,然后将风扇门旋转至打开位置并停留在该位置。

    按下顶盖释放按钮,同时将顶盖向后滑动大约半英寸(1.3 厘米)。

    向上提起并移除顶盖。

  6. 7420:移除顶盖:

    同时提起盖上的两个锁扣并向上移动。


    image:图中显示了如何移除 7420 控制器顶盖

    向上提起并移除顶盖。

  7. 定位 PCIe 卡在存储控制器中的位置,对于 7320,请参见7320 单控制器和群集控制器配置;对于 7120,请参见PCIe 选件;对于 7420,请参见PCIe 选件
  8. 7120 或 7320:更换 PCIe 卡:

    断开所有连接到要更换的 PCIe 竖隔板上的卡的数据电缆。对电缆进行标记,以便稍后可以正确连接。

    拧松后面板交叉开关末端的两个自持十字螺丝,拿起交叉开关并将其移除。


    image:图中显示了如何移除 7120 或 7320 控制器 PCIe 卡插槽交叉开关

    拧松固定竖隔板前端的自持固定螺丝以及固定竖隔板后端的十字螺丝。

    向上提起竖隔板并将其从存储控制器中移除。


    image:图中显示了如何移除 7120 或 7320 控制器 PCIe 卡竖隔板

    小心地从竖隔板连接器中移除 PCIe 卡,如有必要,使用过滤过的压缩空气清理插槽。


    image:图中显示了如何移除 7120 或 7320 控制器 PCIe 卡

    将更换 PCIe 卡装到竖隔板的插槽中并连接电缆。


    image:图中显示了如何安装 7120 或 7320 控制器 PCIe 卡

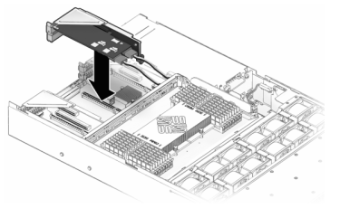
    将竖隔板和连接的任何 PCIe 卡对准主板上的预定位置,并小心地将其插入插槽中。


    image:图中显示了如何安装 7120 或 7320 控制器 PCIe 卡竖隔板

    将竖隔板的背面滑动到主板的后面板组件中。

    拧紧将竖隔板固定到主板上的螺丝。

    将后面板 PCI 交叉开关沿 PCIe 竖隔板向下滑动,对交叉开关进行更换并确保它由两个自持十字螺丝固定。


    image:图中显示了如何更换 7120 或 7320 控制器 PCIe 卡插槽交叉开关
  9. 7420:更换 PCIe 卡:

    将 PCIe 卡插槽交叉开关从其锁定位置松开,并将其旋转到竖直位置。


    image:图中显示了如何松开 7420 控制器 PCIe 卡插槽交叉开关

    移除将 PCIe 卡固定到机箱的固定螺丝。

    小心地从连接器中移除 PCIe 卡,如有必要,使用过滤过的压缩空气清理插槽。

    将更换 PCIe 卡安装到 PCIe 卡插槽中。

    安装固定螺丝以便将 PCIe 卡固定到机箱中。

    将交叉开关恢复到其关闭及锁定位置。


    image:图中显示了如何关闭 7420 控制器 PCIe 卡插槽交叉开关
  10. 7120 或 7320:7120 和 7320 中的组件可能会略有不同,但是,每个组件的维修过程是相同的。下图显示了 7320 控制器。安装顶盖:

    将顶盖置于机箱上,使其悬于存储控制器背面上方大约一英寸(2.5 厘米)距离处,然后向前滑动顶盖,直到它固定到位。

    关闭风扇盖,并啮合风扇盖锁扣。必须彻底合上风扇盖,然后才能打开存储控制器的电源。


    image:图中显示了如何关闭 7120 或 7320 控制器风扇盖
  11. 7420:安装顶盖:

    将顶盖置于机箱上 (1),使其悬于存储控制器背面上方大约一英寸(2.5 厘米)距离处。

    向机箱背面滑动顶盖 (2),直到它固定到位。

    用双手按下顶盖,直到两个锁扣都啮合。


    image:图中显示了如何关闭 7420 控制器顶盖
  12. 推动每个滑轨侧面的释放卡舌,然后缓慢地将存储控制器推入机架中(请确保控制器路径上没有电缆阻碍)。
  13. 将电源线连接到电源上。
  14. 确认备用电源已打开(接通电源线之后大约两分钟,前面板上的“电源/正常”状态指示灯将开始闪烁)。
  15. 使用笔或其他带尖头的工具按下存储控制器前面板上的凹陷式电源按钮并松开。电源按钮旁边的“电源/正常”状态指示灯将亮起并保持稳定。
  16. 将数据电缆连接到 PCIe 卡,通过理线架进行布线。
  17. 在 BUI 中转至 "Maintenance"(维护)> "Hardware"(硬件)屏幕,然后单击控制器上的右箭头图标 image: 。然后,单击 "Slots"(插槽)以验证新组件的状态。联机图标 image: 应为绿色。
  18. Oracle ZFS Storage Appliance 安装指南 中的安装中所述的步骤安装磁盘机框,并按连接到附加存储中所述的步骤连接扩展存储。
电池

如果在关闭电源以及断开网络连接时存储控制器无法维持正确的时间,则可能需要更换电池。您将需要一个小号(1 号平头)非金属螺丝刀或类似的工具。

在开始此任务之前,必须 关闭设备。请注意,此操作将导致无法访问存储器,除非系统处于群集配置中。可使用以下方法之一关闭设备:

更换 7x20 控制器电池

  1. 断开连接到存储控制器后面板的交流电源线。
  2. 确认在机架中扩展存储控制器时,没有电缆损坏或受到电缆的干扰。
  3. 松开存储控制器前部的两个滑动释放锁扣。
  4. 压住滑动释放锁扣,同时缓慢向前推存储控制器,直到滑轨锁定。
  5. 7120 或 7320:移除顶盖:

    打开风扇模块门的锁扣,将两个释放卡舌向后拉,然后将风扇门旋转至打开位置并停留在该位置。

    按下顶盖释放按钮,同时将顶盖向后滑动大约半英寸(1.3 厘米)。

    向上提起并移除顶盖。

  6. 7420:移除顶盖:

    同时提起盖上的两个锁扣并向上移动。


    image:图中显示了如何移除 7420 控制器顶盖
  7. 向上提起并移除顶盖。
  8. 使用小号非金属螺丝刀按下锁扣,并从主板上移除电池。此处显示了 7420 电池。
    image:图中显示了如何移除 7320 或 7420 控制器电池

    下图显示 7120 电池。


    image:图中显示了如何移除 7120 控制器电池
  9. 将更换电池按入主板中,正极 (+) 朝上。
  10. 7120 或 7320:7120 和 7320 中的组件可能会略有不同,但是,每个组件的维修过程是相同的。下图显示了 7320。安装顶盖:

    将顶盖置于机箱上,使其悬于存储控制器背面上方大约一英寸(2.5 厘米)距离处,然后向前滑动顶盖,直到它固定到位。

    关闭风扇盖,并啮合风扇盖锁扣。必须彻底合上风扇盖,然后才能打开存储控制器的电源。


    image:图中显示了如何移除 7120 或 7320 控制器风扇盖
  11. 7420:安装顶盖:

    将顶盖置于机箱上 (1),使其悬于存储控制器背面上方大约一英寸(2.5 厘米)距离处。

    向机箱背面滑动顶盖 (2),直到它固定到位。

    用双手按下顶盖,直到两个锁扣都啮合。


    image:图中显示了如何关闭 7420 控制器顶盖
  12. 推动每个滑轨侧面的释放卡舌,然后缓慢地将存储控制器推入机架中(请确保控制器路径上没有电缆阻碍)。
  13. 将电源线连接到电源上。
  14. 确认备用电源已打开(接通电源线之后大约两分钟,前面板上的“电源/正常”状态指示灯将开始闪烁)。
  15. 使用笔或其他带尖头的工具按下存储控制器前面板上的凹陷式电源按钮并松开。电源按钮旁边的“电源/正常”状态指示灯将亮起并保持稳定。
  16. 将数据电缆连接到 PCIe 卡,通过理线架进行布线。
  17. 系统完成引导后,登录并使用任务Oracle ZFS Storage Appliance 管理指南 中的NTP BUI 时钟中的步骤设置时间。