JavaScript is required to for searching.
Ignorer les liens de navigation
Quitter l'aperu
Manuel d'entretien client des systèmes Oracle® ZFS Storage Appliance

Pour les contrôleurs ZS3-x, 7x20 et les étagères de disques DE2-24, Sun Disk Shelf

Oracle Technology Network
Bibliothque
PDF
Aperu avant impression
Commentaires
search filter icon
search icon

Informations document

Utilisation de la présente documentation

Chapitre 1 Introduction

Chapitre 2 Maintenance de l'équipement

Maintenance

Introduction

ZS3-2

Présentation du matériel ZS3-2

Présentation du contrôleur

Panneau avant

Panneau arrière

HBA SAS-2 4x4

Connecteur de gestion série

Connecteur de gestion réseau

Ports Ethernet

Ports d'E/S du cluster

Déconnexion du câble RJ-45 du port série du cluster

Spécifications physiques

Spécifications électriques

Emissions sonores

Composants internes

Composants du stockage, de l'alimentation et du ventilateur

Câbles internes

Carte mère, mémoire et cartes PCIe

CPU et mémoire

Options NIC/HBA

Configuration de la carte riser PCIe

Options PCIe

Ordre des emplacements PCIe

Module facultatif de fixation des câbles

Stockage connecté

ZS3-4

Présentation du matériel ZS3-4

Présentation du contrôleur

Dimensions du châssis

Panneau avant

Unités système

Panneau arrière

HBA SAS-2 4x4

Spécifications électriques

Cartes internes

Composants

CPU et mémoire

Modules de ventilateur

Options NIC/HBA

Connecteurs

Options PCIe

Ordre des emplacements PCIe

Stockage connecté

ZS3-2

Procédures de maintenance des CRU des appareils ZS3-2

Conditions préalables

Informations de sécurité

Outils requis et informations

Numéro de série du châssis

Préparation du contrôleur pour la maintenance des composants internes

Préparation du contrôleur ZS3-2 pour la maintenance des composants internes

Retrait de l'alimentation

Sortie du contrôleur de stockage du rack

Retrait du capot supérieur

Tâches de remplacement du contrôleur

Tâches de remplacement du contrôleur ZS3-2

Disques durs électroniques (SSD) et unités de disques durs (HDD)

Remplacement des disques durs électroniques (SSD) et unités de disques durs (HDD) du contrôleur ZS3-2

Alimentations

Remplacement des alimentations électriques du contrôleur ZS3-2

Modules de ventilateur

Remplacement des modules de ventilateur du contrôleur ZS3-2

Mémoire

Remplacement de la mémoire du contrôleur ZS3-2

Cartes PCIe et cartes riser

Remplacement des cartes PCIe et cartes riser du contrôleur ZS3-2

Lecteur flash USB

Remplacement du lecteur flash USB du contrôleur ZS3-2

Batterie

Remplacement de la batterie du contrôleur ZS3-2

Interopérabilité d'Oracle DE2 et Sun Disk Shelf

ZS3-4

Procédures de maintenance des CRU des appareils ZS3-4

Conditions préalables

Informations de sécurité

Outils requis et informations

Numéro de série du châssis

Tâches de remplacement du contrôleur

Tâches de remplacement du contrôleur ZS3-4

Unités de disque dur (HDD) ou disques durs électroniques (SSD)

Remplacement des unités de disque dur (HDD) ou disques durs électroniques (SSD) du contrôleur ZS3-4

Module de ventilateur

Remplacement d'un module de ventilateur du contrôleur ZS3-4

Alimentation

Remplacement de l'alimentation électrique du contrôleur ZS3-4

Mémoire

Remplacement de la mémoire du contrôleur ZS3-4

Cartes PCIe et cartes riser

Remplacement des cartes PCIe et cartes riser du contrôleur ZS3-4

Batterie

Remplacement de la batterie du contrôleur ZS3-4

Interopérabilité d'Oracle DE2 et Sun Disk Shelf

7120

Présentation du matériel 7120

Présentation du châssis

Panneau avant

Panneau arrière

Spécifications électriques

Composants internes

Composants d'E/S

Câbles

CPU et mémoire

Distribution de puissance, module de ventilateur et composants de disque

Configurations de contrôleur autonome

Options NIC/HBA

Options PCIe

Stockage connecté

7320

Présentation du matériel 7320

Présentation du châssis

Cartes

Câbles

Composants d'E/S de l'appareil 7320

Composants de mémoire et de CPU de l'appareil 7320

Composants de distribution de puissance et de modules de ventilateur de l'appareil 7320

Spécifications électriques

Panneau avant de l'appareil 7320

Composants remplaçables de l'appareil 7320

Cartes PCIe et Riser de l'appareil 7320

Panneau arrière de l'appareil 7320

Configurations de contrôleur unique et de contrôleurs en cluster de l'appareil 7320

Configurations en cluster de l'appareil 7320

Brochage des connecteurs de l'appareil 7320

Stockage connecté

Voir aussi

7420

Présentation du matériel 7420

Présentation du matériel

Châssis

Panneau avant

Unités système

Panneau arrière

Connecteurs

Spécifications électriques

Cartes internes

Composants

CPU et mémoire

Modules de ventilateur

Options NIC/HBA

Options PCIe

Ordre des emplacements PCIe

Stockage connecté

7x20

Procédures de maintenance des CRU des appareils 7x20

Conditions préalables

Informations de sécurité

Outils requis et informations

Numéro de série du châssis

Tâches de remplacement du contrôleur

Tâches de remplacement du contrôleur 7x20

Unités de disque dur (HDD) ou disques durs électroniques (SSD)

Remplacement des unités de disque dur (HDD) ou disques durs électroniques (SSD) du contrôleur 7x20

Module de ventilateur

Remplacement d'un module de ventilateur de contrôleur 7x20

Alimentation

Remplacement de l'alimentation d'un contrôleur 7x20

Mémoire

Remplacement de la mémoire d'un contrôleur 7x20

Cartes PCIe et cartes riser

Remplacement des cartes PCIe et cartes riser d'un contrôleur 7x20

Batterie

Remplacement de la batterie d'un contrôleur 7x20

Interopérabilité d'Oracle DE2 et Sun Disk Shelf

Etagère

Présentation des étagères de disques

SAS-2

Panneau avant

Emplacements des unités de disque

Indicateurs du panneau avant

Panneau arrière

Indicateurs de module d'E/S

Indicateurs de carte de module SIM

Indicateurs d'alimentation

Configurations d'étagère de disques

Oracle Storage Drive Enclosure DE2-24P

Oracle Storage Drive Enclosure DE2-24C

Sun Disk Shelf (DS2)

Etagère

Procédures de maintenance des étagères de disques

Conditions préalables

Informations de sécurité

Précautions relatives aux décharges d'électricité statique

Précautions relatives aux décharges d'électricité statique

Mise hors tension d'une étagère de disques

Débranchement de l'alimentation d'une étagère de disques

Tâches

Tâches pour le remplacement de l'étagère de disques

Lecteurs

Remplacement d'une unité de disque

Alimentation

Remplacement d'une alimentation

Module E/S

Remplacement d'un module d'E/S

Carte SIM

Remplacement d'une carte de module SIM

Erreurs

Pannes matérielles

Connexion à ILOM

Configuration d'un port de gestion

Observation et suppression des pannes CPU à partir d'ILOM

Voir aussi

Câblage

Connexion au stockage connecté

Configuration du nombre maximum d'étagères de disques par contrôleur

Etapes suivantes

Chapitre 3 Maintenance du système

Tâches de remplacement du contrôleur

Tâches de remplacement du contrôleur 7x20

Utilisez les procédures suivantes pour remplacer le contrôleur 7x20 :

Unités de disque dur (HDD) ou disques durs électroniques (SSD)

Si plus d'une unité est défaillante, remplacez une seule unité à la fois. Le retrait successif rapide de plusieurs unités entraîne un défaut matériel/de pool.

Remplacement des unités de disque dur (HDD) ou disques durs électroniques (SSD) du contrôleur 7x20

  1. Identifiez le HDD ou SSD défaillant en accédant à la section Maintenance > Matériel de la BUI et en cliquant sur l'icône des détails de l'unité image: . Si vous êtes physiquement présent à côté du système, l'indicateur d'intervention requise orange sur le HDD ou le SSD doit être allumé.
  2. Si vous n'êtes pas présent physiquement à côté du système, allumez l'indicateur de localisation en cliquant sur l'icône de localisation image: .
  3. Appuyez sur le bouton de déverrouillage sur le HDD ou le SSD pour déverrouiller la bascule.
  4. Tout en maintenant la bascule (2), sortez l'unité de disque de son logement.
    image:schéma représentant comment retirer une unité de disque du contrôleur 7x20
  5. Après 15 secondes, accédez à l'écran Matériel > Maintenance et cliquez sur l'icône de la flèche pointant vers la droite image: sur le contrôleur du système afin de vérifier que le logiciel a détecté l'absence de l'unité.
  6. Faites glisser l'unité de remplacement à l'intérieur du logement jusqu'à ce qu'elle soit bien en place.
    image:schéma représentant comment installer une unité de disque du contrôleur 7x20
  7. Fermez la bascule pour verrouiller l'unité en position.

    Le logiciel système Sun ZFS Storage détecte et configure automatiquement la nouvelle unité. Le périphérique s'affiche sur l'écran Maintenance > Matériel de la BUI lorsque vous affichez les détails du contrôleur ou de l'unité elle-même.

Module de ventilateur

Les modules de ventilateur sont remplaçables à chaud et peuvent être retirés et installés lorsque le contrôleur de stockage s'exécute sans affecter les autres fonctions du matériel.

7120 or 7320 : les modules de ventilateur et les indicateurs d'état sont masqués par une porte de ventilateur dans les contrôleurs de stockage 7120 et 7320. Même si les composants peuvent être légèrement différents dans les appareils 7120 et 7320, les procédures de maintenance sont identiques. L'illustration représente le contrôleur 7320.

image:schéma représentant les modules de ventilateur et indicateurs d'état des contrôleurs 7120 et 7320

Laissez la porte ouverte plus de 60 secondes lorsque le contrôleur de stockage s'exécute peut entraîner la surchauffe et l'arrêt de celui-ci.

7420 : l'illustration suivante représente les modules de ventlateur dans le contrôleur de stockage 7420.

image:schéma représentant les modules de ventilateur et indicateurs d'état des contrôleurs 7420

Remplacement d'un module de ventilateur de contrôleur 7x20


Caution

Attention  -  L'utilisation du contrôleur sans ventilateur pendant une durée prolongée réduit l'efficacité du système de refroidissement. Le ventilateur de remplacement doit donc être préparé à l'avance et être prêt à l'insertion dans le châssis du contrôleur dès que le ventilateur en panne est retiré.


  1. Pour localiser le châssis dont vous souhaitez assurer la maintenance, cliquez sur l'icône image: correspondante dans l'écran Maintenance > Matériel de la BUI ou exécutez la commande set /SYS/LOCATE status=on à l'invite du processeur de service. La DEL de localisation clignotera sur le châssis du contrôleur.
  2. Vérifiez qu'aucun câble ne sera endommagé ou ne constituera une gêne lorsque le contrôleur de stockage sera déployé à partir du rack.
  3. Depuis la partie avant du contrôleur de stockage, libérez les deux bascules d'ouverture coulissantes.
  4. Tout en pinçant les bascules d'ouverture coulissantes, tirez lentement le contrôleur de stockage vers l'avant jusqu'à ce que les rails se dégagent.
  5. 7120 or 7320 : pour remplacer le module de ventilateur :

    Ouvrez la porte du module de ventilateur tout en déverrouillant les onglets de dégagement sur la porte.

    Identifiez le module de ventilateur en panne en localisant l'indicateur d'état d'intervention requise correspondant ou en cliquant sur l'icône de localisation image: du ventilateur que vous souhaitez remplacer dans l'écran Maintenance > Matériel de la BUI.

    A l'aide de votre pouce et de votre index, tirez le module de ventilateur vers le haut pour le dégager.


    image:schéma représentant comment retirer un module de ventilateur du contrôleur 7120 ou 7130

    Installez le module de ventilateur de remplacement dans l'emplacement du ventilateur du contrôleur de stockage.


    Caution

    Attention  -  Le ventilateur doit être remplacé en moins d'une minute pour éviter l'arrêt du contrôleur.



    image:schéma représentant comment installer un module de ventilateur du contrôleur 7120 ou 7130

    Appliquez une pression ferme sur le module de ventilateur pour qu'il se mette en place.

    Vérifiez que l'indicateur d'état OK du ventilateur est allumé et que l'indicateur d'état de panne du module de ventilateur remplacé est éteint.

    Fermez le capot supérieur immédiatement après avoir remplacé le ventilateur pour préserver la circulation de l'air dans le contrôleur de stockage.

  6. 7420 : pour remplacer le module de ventilateur :

    Identifiez le module de ventilateur en panne en localisant l'indicateur d'état d'intervention requise correspondant ou en cliquant sur l'icône de localisation image: du ventilateur que vous souhaitez remplacer dans l'écran Maintenance > Matériel de la BUI.

    Soulevez la bascule située en haut du module de ventilateur pour déverrouiller ce dernier, puis retirez-le.


    image:schéma représentant comment retirer et installer un module de ventilateur du contrôleur 7420

    Déverrouillez et insérez le module de ventilateur 7420.

    Appliquez une pression ferme sur le module de ventilateur pour qu'il se mette en place.

    Vérifiez que l'indicateur d'état OK du ventilateur est allumé et que l'indicateur d'état de panne du module de ventilateur remplacé est éteint.

  7. Vérifiez que l'indicateur d'état du Ventilateur supérieur, les indicateurs d'état d'intervention requise et l'indicateur d'état de localisation/le bouton de localisation sont éteints.
  8. Poussez les onglets de dégagement sur le côté de chaque rail et faites lentement glisser le contrôleur de stockage dans le rack.
Alimentation

Les contrôleurs de stockage sont équipés d'alimentations redondantes remplaçables à chaud. Si une alimentation est défectueuse et que vous ne disposez pas d'alimentation de remplacement, laissez l'unité défectueuse en place afin d'assurer une bonne ventilation. L'échec d'une alimentation est indiqué par une DEL d'état de couleur orange.

Remplacement de l'alimentation d'un contrôleur 7x20

  1. Accédez à l'arrière du contrôleur de stockage présentant l'alimentation défectueuse.
  2. Si un module de fixation des câbles est installé, maintenez enfoncé l'onglet de dégagement de ce module et faites pivoter le module pour le sortir de son logement.
    image:schéma représentant comment déverrouiller le module de fixation des câbles d'un contrôleur 7x20
  3. Débranchez le câble d'alimentation de l'alimentation défectueuse.
  4. Retirez l'alimentation.

    7120 ou 7320 : Déverrouillez la bascule puis retirez l'alimentation. Même si les composants peuvent être légèrement différents dans les appareils 7120 et 7320, les procédures de maintenance sont identiques. L'illustration représente le contrôleur 7320.


    image:schéma représentant comment retirer l'alimentation d'un contrôleur 7120 ou 7320

    7420 : saisissez la poignée de l'alimentation et appuyez sur la bascule d'ouverture pour retirer l'alimentation.


    image:schéma représentant comment retirer l'alimentation d'un contrôleur 7420
  5. Alignez l'alimentation de remplacement sur la baie vide d'alimentation du châssis.
  6. Faites glisser l'alimentation à l'intérieur de la baie jusqu'à ce qu'elle soit complètement mise en place. L'illustration suivante présente l'alimentation de l'appareil 7420.
    image:schéma représentant comment installer une alimentation pour un contrôleur 7x20
  7. Branchez le cordon d'alimentation à l'alimentation.
  8. Vérifiez que l'indicateur d'état de présence de courant vert est allumé.
  9. Fermez le module de fixation des câbles en l'insérant dans le support du rail arrière gauche.
  10. Accédez à l'écran Maintenance > Matériel de la BUI. Cliquez sur l'icône de la flèche pointant vers la droite image: du contrôleur puis cliquez sur l'alimentation pour vérifier que l'icône d'état en ligne image: est verte pour l'alimentation électrique que vous venez d'installer.
Mémoire

Pour identifier un module de mémoire défectueux particulier, vous devez ouvrir le contrôleur de stockage et utiliser les DEL d'état orange sur la carte mère. Pour identifier une panne de mémoire générale, accédez à l'écran Maintenance > Matériel de la BUI et cliquez sur l'icône de la flèche pointant vers la droite image: sur le contrôleur. Puis cliquez sur les modules DIMM pour localiser le composant défaillant, indiqué par l'icône d'avertissement image: .

Vous devez arrêter complètement l'appareil avant de commencer cette tâche. Notez que vous perdrez l'accès au stockage, à moins que le système ne soit dans une configuration en cluster. Arrêtez complètement l'appareil à l'aide de l'une des méthodes suivantes :

Remplacement de la mémoire d'un contrôleur 7x20


Caution

Attention  -  Cette procédure nécessite la manipulation de composants sensibles aux décharges statiques, ce qui peut entraîner leur défaillance. Pour éviter d'endommager le matériel, portez un bracelet antistatique et utilisez un tapis antistatique lorsque vous manipulez des composants.


  1. Débranchez les cordons d'alimentation CA du panneau arrière du contrôleur de stockage.
  2. Vérifiez qu'aucun câble ne sera endommagé ou ne constituera une gêne lorsque le contrôleur de stockage sera déployé à partir du rack.
  3. Depuis la partie avant du contrôleur de stockage, libérez les deux bascules d'ouverture coulissantes.
  4. Tout en pinçant les bascules d'ouverture coulissantes, tirez lentement le contrôleur de stockage vers l'avant jusqu'à ce que les rails se dégagent.
  5. 7120 ou 7320: même si les composants peuvent être légèrement différents dans les appareils 7120 et 7320, les procédures de maintenance sont identiques. L'illustration représente le contrôleur 7320. Pour retirer le capot supérieur :

    Déverrouillez la porte du module de ventilateur, tirez les deux onglets de dégagement vers l'arrière, faites pivoter la porte du ventilateur en position ouverte et maintenez-la dans cette position.

    Appuyez sur le bouton de dégagement du capot supérieur et faites glisser celui-ci vers l'arrière, sur environ 1,3 cm.

    Soulevez et retirez le capot supérieur.

    Retirez également le déflecteur d'air en repoussant ses connecteurs et en soulevant le déflecteur pour le retirer du serveur.


    image:schéma représentant comment retirer le capot supérieur et le déflecteur d'air d'un contrôleur 7120 ou 7320
  6. 7420 : pour retirer le capot supérieur :

    Soulevez simultanément les deux bascules du capot.


    image:schéma représentant comment retirer le capot supérieur d'un contrôleur 7420

    Soulevez et retirez le capot supérieur.

  7. Pour localiser le module DIMM sur lequel vous souhaitez effectuer une opération de maintenance, appuyez sur le bouton de rappel de panne sur le contrôleur de stockage.

    L'illustration suivante présente le bouton de rappel de panne sur le contrôleur 7120.


    image:schéma représentant le bouton de rappel de panne sur le contrôleur 7120 ou 7320

    L'illustration suivante présente le bouton de rappel de panne sur le contrôleur 7420.


    image:schéma représentant le bouton de rappel de panne sur le contrôleur 7420
  8. 7420 : identifiez la carte riser de mémoire qui héberge le module DIMM défectueux à l'aide du témoin d'état d'intervention requise. Soulevez la carte riser de mémoire à la verticale pour la retirer de la carte mère et placez-la sur un tapis antistatique.
    image:schéma représentant comment retirer une carte riser de mémoire d'un contrôleur 7420
  9. Faites pivoter autant que possible vers l'extérieur les deux éjecteurs d'emplacement de module DIMM et soulevez avec précaution le module DIMM défectueux à la verticale pour le retirer du socket.
    image:schéma représentant comment retirer un module mémoire d'un contrôleur 7420
  10. Alignez le module DIMM de remplacement avec le connecteur en alignant l'encoche avec la clé pour vous assurer que le composant est correctement orienté.
    image:schéma représentant comment installer un module mémoire d'un contrôleur 7420
  11. Enfoncez le module DIMM dans le connecteur jusqu'à ce que les onglets d'éjection verrouillent le composant en position.
  12. 7120 ou 7320: même si les composants peuvent être légèrement différents dans les appareils 7120 et 7320, les procédures de maintenance sont identiques. L'illustration présente l'appareil 7320. Pour remettre le capot :

    Placez le capot supérieur sur le châssis de façon à le positionner à environ 2,5 cm au-dessus de l'arrière du contrôleur de stockage.

    Ensuite, faites-le glisser vers l'avant jusqu'à ce qu'il soit complètement en place.

    Fermez le capot des ventilateurs et verrouillez les bascules du capot. Le capot doit être complètement fermé pour que le contrôleur de stockage se remette sous tension.


    image:schéma représentant comment fermer le capot du ventilateur du contrôleur 7120 ou 7320
  13. 7420 : pour remplacer le capot :

    Poussez le module riser de mémoire dans l'emplacement de module riser de mémoire CPU correspondant jusqu'à ce qu'il soit complètement en place.


    image:schéma représentant comment remplacer un module riser d'un contrôleur 7420

    Placez le capot supérieur sur le châssis de façon à le positionner à environ 2,5 cm face à l'arrière du contrôleur de stockage.

    Faites glisser le capot supérieur vers l'arrière du châssis jusqu'à ce qu'il soit complètement en place et appuyez sur le capot avec vos deux mains jusqu'au verrouillage des deux bascules.


    image:schéma représentant comment fermer le capot supérieur du contrôleur 7420
  14. Tirez les onglets de dégagement sur le côté de chaque rail et poussez lentement le contrôleur de stockage dans le rack.
    image:schéma représentant comment appuyer sur les onglets de dégagement sur les rails

    L'image suivante présente le châssis de l'appareil 7420.


    image:schéma représentant comment installer un contrôleur 7x20 dans le rack
  15. Branchez les cordons d'alimentation aux alimentations.
  16. Vérifiez que le mode veille est activé, ce qui est indiqué par le clignotement du témoin d'état d'alimentation/OK sur le panneau avant pendant deux minutes environ après le branchement des cordons d'alimentation.
  17. A l'aide d'un crayon ou d'un autre objet pointu, appuyez sur le bouton d'alimentation du panneau avant du contrôleur de stockage, puis relâchez-le.

    L'indicateur d'état d'alimentation/OK placé à côté du bouton d'alimentation s'allume en continu. L'écran Maintenance > Matériel de la BUI indique le statut du remplacement sur la page Informations des modules DIMM.

Cartes PCIe et cartes riser

Accédez à l'écran Maintenance > Matériel de la BUI et cliquez sur l'icône de la flèche pointant vers la droite image: sur le contrôleur, puis cliquez sur Emplacements pour localiser le composant en panne.

A noter que la carte Sun Flash Accelerator F20 du système 7120 est une FRU et que son remplacement doit être effectué par un technicien de maintenance Oracle.

Tous les HBA doivent être du même type. Assurez-vous de mettre à niveau le logiciel système avant d'installer un HBA récent.

Vous devez arrêter complètement le contrôleur avant de commencer cette tâche. Notez que vous perdrez l'accès au stockage, à moins que le système ne soit dans une configuration en cluster. Arrêtez complètement l'appareil à l'aide de l'une des méthodes suivantes :

Remplacement des cartes PCIe et cartes riser d'un contrôleur 7x20


Caution

Attention  -  Cette procédure nécessite la manipulation de composants sensibles aux décharges statiques, ce qui peut entraîner leur défaillance. Pour éviter d'endommager le matériel, portez un bracelet antistatique et utilisez un tapis antistatique lorsque vous manipulez des composants.


  1. Débranchez les cordons d'alimentation CA du panneau arrière du contrôleur de stockage.
  2. Vérifiez qu'aucun câble ne sera endommagé ou ne constituera une gêne lorsque le contrôleur de stockage sera déployé à partir du rack.
  3. Depuis la partie avant du contrôleur de stockage, libérez les deux bascules d'ouverture coulissantes.
  4. Tout en pinçant les bascules d'ouverture coulissantes, tirez lentement le contrôleur de stockage vers l'avant jusqu'à ce que les rails se dégagent.
  5. 7120 ou 7320 : pour retirer le capot supérieur :

    Déverrouillez la porte du module de ventilateur, tirez les deux onglets de dégagement vers l'arrière, faites pivoter la porte du ventilateur en position ouverte et maintenez-la dans cette position.

    Appuyez sur le bouton de dégagement du capot supérieur et faites glisser celui-ci vers l'arrière, sur environ 1,3 cm.

    Soulevez et retirez le capot supérieur.

  6. 7420 : pour retirer le capot supérieur :

    Soulevez simultanément les deux bascules du capot.


    image:schéma représentant comment retirer le capot supérieur d'un contrôleur 7420

    Soulevez et retirez le capot supérieur.

  7. Localisez l'emplacement de la carte PCIe dans le contrôleur de stockage, reportez-vous à la section Configurations de contrôleur unique et de contrôleurs en cluster de l'appareil 7320 pour le 7320, lesOptions PCIe pour le 7120, ouOptions PCIe pour le 7420.
  8. 7120 ou 7320 : pour remplacer la carte PCIe :

    Débranchez tous les câbles de données connectés aux cartes sur la carte riser PCIe à remplacer. Etiquetez les câbles pour pouvoir les rebrancher correctement par la suite.

    Desserrez les deux vis imperdables à tête cruciforme à l'extrémité de la barre transversale du panneau arrière et soulevez cette barre vers le haut et en arrière pour la retirer.


    image:schéma représentant comment retirer la barre transversale d'emplacement de carte PCIe d'un contrôleur 7120 ou 7320

    Desserrez la vis imperdable de maintien qui retient l'avant de la carte riser et la vis à tête cruciforme à l'extrémité de la carte riser.

    Soulevez la carte riser et retirez-la du contrôleur de stockage.


    image:schéma représentant comment retirer une carte riser PCIe d'un contrôleur 7120 ou 7320

    Retirez avec précaution la carte PCIe du connecteur de la carte riser et nettoyez l'emplacement avec de l'air filtré et comprimé, si nécessaire.


    image:schéma représentant comment retirer une carte PCIe d'un contrôleur 7120 ou 7320

    Mettez en place la carte PCIe de remplacement dans l'emplacement de la carte riser et connectez les câbles.


    image:schéma représentant comment installer une carte PCIe d'un contrôleur 7120 ou 7320

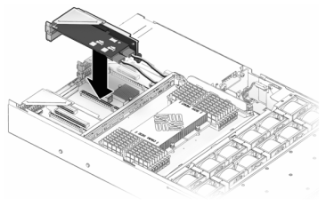
    Alignez la carte riser et les cartes PCIe éventuellement connectées avec l'emplacement prévu sur la carte mère, et insérez-la avec précaution dans son emplacement.


    image:schéma représentant comment installer une carte riser PCIe d'un contrôleur 7120 ou 7320

    Faites glisser l'arrière de la carte riser dans le renfort du panneau arrière de la carte mère.

    Serrez la vis qui maintient la carte riser sur la carte mère.

    Replacez la barre transversale PCI du panneau arrière en la faisant glisser vers le bas sur les cartes riser PCIe, en vous assurant que la barre transversale est bien maintenue par deux vis imperdables à tête cruciforme.


    image:schéma représentant comment remettre en place la barre transversale d'emplacement de carte PCIe d'un contrôleur 7120 ou 7320
  9. 7420 : pour remplacer la carte PCIe :

    Déverrouillez la barre transversale de l'emplacement de la carte PCIe et soulevez-la.


    image:schéma représentant comment déverrouiller une barre transversale d'emplacement de carte PCIe du contrôleur 7420

    Retirez la vis qui maintient la carte PCIe sur le châssis.

    Retirez avec précaution la carte PCIe du connecteur et, si nécessaire, nettoyez l'emplacement avec de l'air filtré et comprimé.

    Installez la carte PCIe de remplacement dans l'emplacement prévu à cet effet.

    Installez la vis qui maintient la carte PCIe sur le châssis.

    Replacez la barre transversale dans sa position de fermeture verrouillée.


    image:schéma représentant comment fermer la barre transversale d'emplacement de carte PCIe du contrôleur 7420
  10. 7120 ou 7320: même si les composants peuvent être légèrement différents dans les appareils 7120 et 7320, les procédures de maintenance sont identiques. L'illustration représente le contrôleur 7320. Pour installer le capot supérieur :

    Placez le capot supérieur sur le châssis de façon à le positionner à environ 2,5 cm au-dessus de l'arrière du contrôleur de stockage, puis faites-le glisser vers l'avant jusqu'à ce qu'il soit complètement en place.

    Fermez le capot des ventilateurs et verrouillez les bascules du capot. Le capot doit être complètement fermé pour que le contrôleur de stockage se remette sous tension.


    image:schéma représentant comment fermer le capot du ventilateur du contrôleur 7120 ou 7320
  11. 7420 : pour installer le capot supérieur :

    Placez le capot supérieur sur le châssis (1) de façon à le positionner à environ 2,5 cm devant l'arrière du contrôleur de stockage.

    Faites glisser le capot supérieur vers l'arrière du châssis (2) jusqu'à ce qu'il soit complètement en place.

    Appuyez sur le capot avec vos deux mains jusqu'au verrouillage des deux bascules.


    image:schéma représentant comment fermer le capot supérieur du contrôleur 7420
  12. Tirez les onglets de dégagement sur le côté de chaque rail et poussez lentement le contrôleur de stockage dans le rack, en vous assurant qu'aucun câble ne gêne ce dernier.
  13. Branchez les cordons d'alimentation aux alimentations.
  14. Vérifiez que le mode veille est activé, ce qui est indiqué par le clignotement du témoin d'état d'alimentation/OK sur le panneau avant pendant deux minutes environ après le branchement des cordons d'alimentation.
  15. A l'aide d'un crayon ou d'un autre objet pointu, appuyez sur le bouton d'alimentation du panneau avant du contrôleur de stockage, puis relâchez-le. L'indicateur d'état d'alimentation/OK placé à côté du bouton d'alimentation s'allume en continu.
  16. Connectez les câbles de données à la carte PCIe en les faisant passer dans le module de fixation des câbles.
  17. Accédez à l'écran Maintenance > Matériel de la BUI et cliquez sur l'icône de la flèche pointant vers la droite image: sur le contrôleur. Cliquez ensuite sur Emplacements pour vérifier l'état du nouveau composant. L'icône En ligne image: est verte normalement.
  18. Installez l'étagère de disques comme décrit sousInstallation du manuel Guide d’installation des systèmes Oracle ZFS Storage Appliance et connectez le stockage d'extension comme décrit sous Connexion au stockage connecté.
Batterie

Vous devez peut-être remplacer la batterie si le contrôleur de stockage ne continue pas d'afficher l'heure et la date correctes lorsque vous le mettez hors tension et le déconnectez du réseau. Vous aurez besoin d'un petit tournevis plat non métallique n° 1 ou équivalent.

Vous devez arrêter complètement l'appareil avant de commencer cette tâche. Notez que vous perdrez l'accès au stockage, à moins que le système ne soit dans une configuration en cluster. Arrêtez complètement l'appareil à l'aide de l'une des méthodes suivantes :

Remplacement de la batterie d'un contrôleur 7x20

  1. Débranchez les cordons d'alimentation CA du panneau arrière du contrôleur de stockage.
  2. Vérifiez qu'aucun câble ne sera endommagé ou ne constituera une gêne lorsque le contrôleur de stockage sera déployé à partir du rack.
  3. Depuis la partie avant du contrôleur de stockage, libérez les deux bascules d'ouverture coulissantes.
  4. Tout en pinçant les bascules d'ouverture coulissantes, tirez lentement le contrôleur de stockage vers l'avant jusqu'à ce que les rails se dégagent.
  5. 7120 ou 7320 : pour retirer le capot supérieur :

    Déverrouillez la porte du module de ventilateur, tirez les deux onglets de dégagement vers l'arrière, faites pivoter la porte du ventilateur en position ouverte et maintenez-la dans cette position.

    Appuyez sur le bouton de dégagement du capot supérieur et faites glisser celui-ci vers l'arrière, sur environ 1,3 cm.

    Soulevez et retirez le capot supérieur.

  6. 7420 : pour retirer le capot supérieur :

    Soulevez simultanément les deux bascules du capot.


    image:schéma représentant comment retirer le capot supérieur du contrôleur 7420
  7. Soulevez et retirez le capot supérieur.
  8. A l'aide d'un petit tournevis non métallique, appuyez sur la bascule et retirez la batterie de la carte mère. La batterie de l'appareil 7420 est présentée ci-après.
    image:schéma représentant comment retirer la batterie du contrôleur 7320 ou 7420

    L'illustration suivante présente la batterie de l'appareil 7120.


    image:schéma représentant comment retirer la batterie du contrôleur 7120
  9. Enfoncez la batterie de remplacement dans la carte mère en orientant la face positive (+) vers le haut.
  10. 7120 ou 7320 : même si les composants peuvent être légèrement différents dans les systèmes 7120 et 7320, les procédures de maintenance sont identiques. L'illustration présente l'appareil 7320. Pour installer le capot supérieur :

    Placez le capot supérieur sur le châssis de façon à le positionner à environ 2,5 cm au-dessus de l'arrière du contrôleur de stockage, puis faites-le glisser vers l'avant jusqu'à ce qu'il soit complètement en place.

    Fermez le capot des ventilateurs et verrouillez les bascules du capot. Le capot doit être complètement fermé pour que le contrôleur de stockage se remette sous tension.


    image:schéma représentant comment retirer le capot de ventilateur du contrôleur 7120 ou 7320
  11. 7420 : pour installer le capot supérieur :

    Placez le capot supérieur sur le châssis (1) de façon à le positionner à environ 2,5 cm devant l'arrière du contrôleur de stockage.

    Faites glisser le capot supérieur vers l'arrière du châssis (2) jusqu'à ce qu'il soit complètement en place.

    Appuyez sur le capot avec vos deux mains jusqu'au verrouillage des deux bascules.


    image:schéma représentant comment fermer le capot supérieur du contrôleur 7420
  12. Tirez les onglets de dégagement sur le côté de chaque rail et poussez lentement le contrôleur de stockage dans le rack, en vous assurant qu'aucun câble ne gêne ce dernier.
  13. Branchez les cordons d'alimentation aux alimentations.
  14. Vérifiez que le mode veille est activé, ce qui est indiqué par le clignotement du témoin d'état d'alimentation/OK sur le panneau avant pendant deux minutes environ après le branchement des cordons d'alimentation.
  15. A l'aide d'un crayon ou d'un autre objet pointu, appuyez sur le bouton d'alimentation du panneau avant du contrôleur de stockage, puis relâchez-le. L'indicateur d'état d'alimentation/OK placé à côté du bouton d'alimentation s'allume en continu.
  16. Connectez les câbles de données à la carte PCIe en les faisant passer dans le module de fixation des câbles.
  17. Quand le système a terminé l'initialisation, connectez-vous et réglez l'heure en suivant les étapes de la tâche Horloge NTP de la BUI du manuel Guide d’administration des systèmes Oracle ZFS Storage Appliance .