Remplacement d'une carte PCIe ou riser d'un contrôleur 7x20
 | Mise en garde -
Cette procédure nécessite la manipulation de composants sensibles aux décharges statiques, ce qui peut entraîner leur défaillance. Pour éviter d'endommager le matériel, portez un bracelet antistatique et utilisez un tapis antistatique lorsque vous manipulez des composants. Notez que la carte Sun Flash Accelerator F20 du contrôleur 7120 est une FRU et que son remplacement doit être effectué par un technicien de maintenance Oracle.
|
Accédez à l'écran Maintenance > Matériel de la BUI et cliquez sur l'icône de la flèche pointant vers la droite
sur le contrôleur, puis cliquez sur Emplacements pour localiser le composant en panne. Tous les HBA doivent être du même type. Assurez-vous de mettre à niveau le logiciel système avant d'installer un HBA récent.
-
Mettez le contrôleur de stockage hors tension, comme décrit dans la section Mise hors tension du contrôleur.
-
Sortez le contrôleur du rack comme décrit dans la section Extension du contrôleur de stockage du rack.
-
7120 ou 7320 : pour retirer le capot supérieur :
-
Déverrouillez la porte du module de ventilateur, tirez les deux onglets de dégagement vers l'arrière, faites pivoter la porte du ventilateur en position ouverte et maintenez-la dans cette position.
-
Appuyez sur le bouton de dégagement du capot supérieur et faites glisser celui-ci vers l'arrière, sur environ 1,3 cm.
-
Soulevez et retirez le capot supérieur.
-
7420 : pour retirer le capot supérieur :
-
Soulevez simultanément les deux bascules du capot.
-
Soulevez et retirez le capot supérieur.
-
Pour localiser l'emplacement de la carte PCIe dans le contrôleur de stockage, reportez-vous à la section 7320 Configuration Options pour le contrôleur 7320, 7120 PCIe Options pour le contrôleur 7120, ou 7420 PCIe Options pour le contrôleur 7420.
-
7120 ou 7320 : pour remplacer la carte PCIe :
-
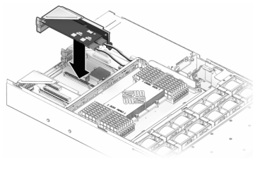
Débranchez tous les câbles de données connectés aux cartes sur la carte riser PCIe à remplacer. Etiquetez les câbles pour pouvoir les rebrancher correctement par la suite.
-
Desserrez les deux vis imperdables à tête cruciforme à l'extrémité de la barre transversale du panneau arrière et soulevez cette barre vers le haut et en arrière pour la retirer.
-
Desserrez la vis imperdable de maintien qui retient l'avant de la carte riser et la vis à tête cruciforme à l'extrémité de la carte riser.
-
Soulevez la carte riser et retirez-la du contrôleur de stockage.
-
Retirez avec précaution la carte PCIe du connecteur et, si nécessaire, nettoyez l'emplacement avec de l'air filtré et comprimé.
-
Mettez en place la carte PCIe de remplacement dans l'emplacement de la carte riser et connectez les câbles.
-
Alignez la carte riser et les cartes PCIe éventuellement connectées avec l'emplacement prévu sur la carte mère, et insérez-la avec précaution dans son emplacement.
-
Faites glisser l'arrière de la carte riser dans le renfort du panneau arrière de la carte mère.
-
Serrez la vis qui maintient la carte riser sur la carte mère.
-
Replacez la barre transversale PCI du panneau arrière en la faisant glisser vers le bas sur les cartes riser PCIe, en vous assurant que la barre transversale est bien maintenue par deux vis imperdables à tête cruciforme.
-
7420 : pour remplacer la carte PCIe :
-
Déverrouillez la barre transversale de l'emplacement de la carte PCIe et soulevez-la.
-
Retirez la vis qui maintient la carte PCIe sur le châssis.
-
Retirez avec précaution la carte PCIe du connecteur et, si nécessaire, nettoyez l'emplacement avec de l'air filtré et comprimé.
-
Installez la carte PCIe de remplacement dans l'emplacement prévu à cet effet.
-
Installez la vis qui maintient la carte PCIe sur le châssis.
-
Replacez la barre transversale dans sa position de fermeture verrouillée.
-
7120 ou 7320 : même si les composants peuvent être légèrement différents dans les contrôleurs 7120 et 7320, les procédures de maintenance sont identiques. L'illustration présente le contrôleur 7320. Pour installer le capot supérieur :
-
Placez le capot supérieur sur le châssis de façon à le positionner à environ 2,5 cm au-dessus de l'arrière du contrôleur de stockage, puis faites-le glisser vers l'avant jusqu'à ce qu'il soit complètement en place.
-
Fermez le capot du ventilateur et verrouillez les bascules du capot. Le capot doit être complètement fermé pour que le contrôleur de stockage se remette sous tension.
-
7420 : pour installer le capot supérieur :
-
Placez le capot supérieur sur le châssis (1) de façon à le positionner à environ 2,5 cm devant l'arrière du contrôleur de stockage.
-
Faites glisser le capot supérieur vers l'arrière du châssis (2) jusqu'à ce qu'il soit complètement en place.
-
Appuyez sur le capot avec vos deux mains jusqu'au verrouillage des deux bascules.
-
Tirez les onglets de dégagement sur le côté de chaque rail et poussez lentement le contrôleur de stockage dans le rack, en vous assurant qu'aucun câble ne gêne ce dernier.
-
Branchez les cordons d'alimentation aux alimentations.
-
Vérifiez que le mode veille est activé, ce qui est indiqué par le clignotement du témoin d'état d'alimentation/OK sur le panneau avant pendant deux minutes environ après le branchement des cordons d'alimentation.
-
A l'aide d'un crayon ou d'un autre objet pointu, appuyez sur le bouton d'alimentation du panneau avant du contrôleur de stockage, puis relâchez-le. L'indicateur d'état d'alimentation/OK placé à côté du bouton d'alimentation s'allume en continu.
-
Connectez les câbles de données à la carte PCIe en les faisant passer dans le module de fixation des câbles.
-
Accédez à l'écran Maintenance > Matériel de la BUI et cliquez sur l'icône de la flèche pointant vers la droite
sur le contrôleur. Cliquez ensuite sur Emplacements pour vérifier le statut du nouveau composant. L'icône En ligne
est verte normalement.
-
Installez l'étagère de disques comme décrit dans la section Installing Disk Shelves in Oracle ZFS Storage Appliance Installation Guide et connectez le stockage d'extension comme décrit dans la section Connecting to Attached Storage.