Go to main content

SPARC M7 시리즈 서버 설치 설명서

인쇄 보기 종료

업데이트 날짜: 2016년 10월
 
 

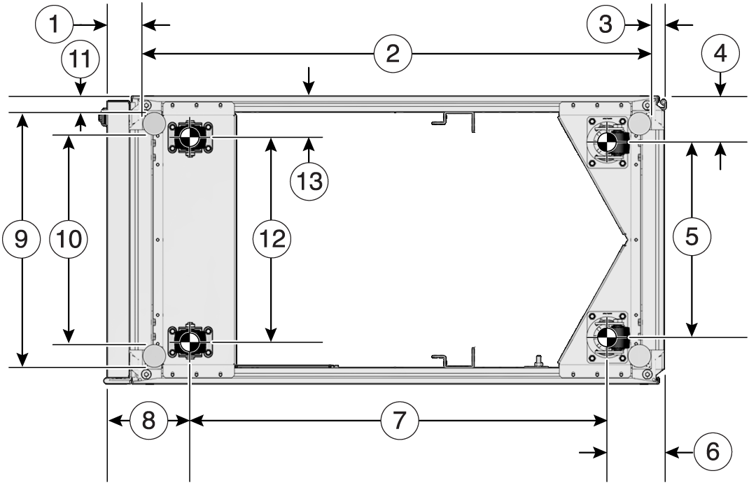
수평 조정 다리 및 이동용 바퀴 치수

이 그림은 랙의 하단 보기를 보여줍니다.

image:랙 다리 및 이동용 바퀴 치수를 보여주는 그림입니다.
번호
설명
인치
미터
1
다리 가장자리에서 전면 랙 표면까지의 거리
2.90인치
73.75mm
2
수평 조절 다리의 외부 가장자리 깊이
41.67인치
1058.5mm
3
수평 조절 다리의 가장자리에서 후면 랙 표면까지의 거리
1.33인치
33.75mm
4
전면 이동용 바퀴 중심에서 랙 측면까지의 거리
3.41인치
86.7mm
5
전면 이동용 바퀴의 중심 사이의 너비
16.80인치
426.6mm
6
후면 이동용 바퀴 중심에서 랙 후면까지의 거리
6.83인치
173.7mm
7
전면과 후면의 이동용 바퀴 사이의 깊이
32.62인치
828.6mm
8
후면 이동용 바퀴 중심에서 랙 후면 사이의 거리
6.39인치
162.4mm
9
수평 조절 다리의 외부 가장자리 너비
20.96인치
532.5mm
10
수평 조절 다리의 내부 가장자리 너비
16.89인치
429mm
11
마운팅 다리 가장자리에서 랙 측면까지의 거리
1.33인치
33.75mm
12
후면 이동용 바퀴의 중심 사이의 너비
16.03인치
407.2mm
13
후면 이동용 바퀴 중심에서 랙 측면까지의 거리
3.80인치
96.4mm

관련 정보