Go to main content

Oracle® ZFS Storage Appliance 客户服务手册,发行版 OS8.8.x

退出打印视图

更新时间: 2021 年 8 月
 
 

更换 7x20 控制器 PCIe 卡或竖隔板


注意  -  此过程要求处理对静电放电敏感(可能导致组件出现故障)的组件。为避免损坏组件,在处理组件时,请佩戴防静电手腕带并使用防静电垫。请注意,7120 Sun Flash Accelerator F20 卡是一个 FRU,且必须由 Oracle 服务代表更换。


转到 BUI 的 "Maintenance"(维护)> "Hardware"(硬件)屏幕并单击控制器上的右箭头键图标 image:应用图标 ,然后单击 "Slots"(插槽)定位出现故障的组件。所有 HBA 必须是同一类型。请确保先升级您的系统软件,再安装新发行的 HBA。

  1. 关闭存储控制器电源,如关闭控制器电源中所述。
  2. 断开连接到存储控制器后面板的 AC 电源线。

    注意  -  因为系统中始终存在 3.3 VDC 备用电源,访问任何可冷维修组件时,必须先拔掉电源线。


  3. 从机架中拉出控制器,如从机架中拉出控制器中所述。
  4. 7120 或 7320:移除顶盖:
    1. 打开风扇模块门的锁扣,将两个释放卡舌向后拉,然后将风扇门旋转到打开位置并停留在该位置。
    2. 按下顶盖释放按钮,同时将顶盖向后滑动大约半英寸(1.3 厘米)。
    3. 向上提起并移除顶盖。
  5. 7420:移除顶盖:
    1. 同时提起盖上的两个锁扣并向上移动。
      image:图中显示了如何移除 7420 控制器顶盖
    2. 向上提起并移除顶盖。
  6. 定位 PCIe 卡在存储控制器中的位置,对于 7320,请参见7320 配置选件;对于 7120,请参见7120 PCIe 选件;对于 7420,请参见7420 PCIe I/O 卡
  7. 7120 或 7320:更换 PCIe 卡:
    1. 断开所有连接到要更换的 PCIe 竖隔板上的卡的数据电缆。对电缆进行标记,以便稍后可以正确连接。
    2. 拧松后面板交叉开关末端的两个自持十字螺丝,拿起交叉开关并将其移除。
      image:图中显示了如何移除 7120 或 7320 控制器 PCIe 卡插槽交叉开关
    3. 拧松固定竖隔板前端的自持固定螺丝以及固定竖隔板后端的十字螺丝。
    4. 向上提起竖隔板并将其从存储控制器中移除。
      image:图中显示了如何移除 7120 或 7320 控制器 PCIe 卡竖隔板
    5. 小心地从竖隔板连接器中移除 PCIe 卡,如有必要,使用过滤过的压缩空气清理插槽。
      image:图中显示了如何移除 7120 或 7320 控制器 PCIe 卡
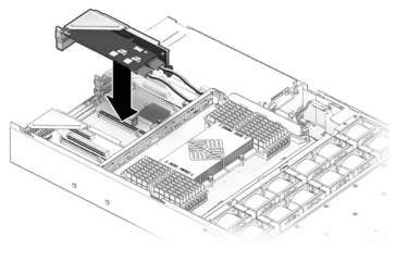
    6. 将更换 PCIe 卡装到竖隔板的插槽中并连接电缆。
      image:图中显示了如何安装 7120 或 7320 控制器 PCIe 卡
    7. 将竖隔板和连接的任何 PCIe 卡对准主板上的预定位置,并小心地将其插入插槽中。
      image:图中显示了如何安装 7120 或 7320 控制器 PCIe 卡竖隔板
    8. 将竖隔板的背面滑动到主板的后面板组件中。
    9. 拧紧将竖隔板固定到主板上的螺丝。
    10. 将后面板 PCI 交叉开关沿 PCIe 竖隔板向下滑动,对交叉开关进行更换并确保它由两个自持十字螺丝固定。
      image:图中显示了如何更换 7120 或 7320 控制器 PCIe 卡插槽交叉开关
  8. 7420:更换 PCIe 卡:
    1. 将 PCIe 卡插槽交叉开关从其锁定位置松开,并将其旋转到垂直位置。
      image:图中显示了如何松开 7420 控制器 PCIe 卡插槽交叉开关
    2. 移除将 PCIe 卡固定到机箱的固定螺丝。
    3. 小心地从连接器中移除 PCIe 卡,如有必要,使用过滤过的压缩空气清理插槽。
    4. 将更换 PCIe 卡安装到 PCIe 卡插槽中。
    5. 安装固定螺丝以便将 PCIe 卡固定到机箱中。
    6. 将交叉开关恢复到其关闭及锁定位置。
      image:图中显示了如何关闭 7420 控制器 PCIe 卡插槽交叉开关
  9. 7120 或 7320:7120 和 7320 中的组件可能会略有不同,但是,每个组件的维修过程是相同的。下图显示了 7320 控制器。安装顶盖:
    1. 将顶盖置于机箱上,使其悬于存储控制器背面上方大约一英寸(2.5 厘米)距离处,然后向前滑动顶盖,直到它固定到位。
    2. 关闭风扇盖,并啮合风扇盖锁扣。必须彻底合上风扇盖,然后才能打开存储控制器的电源。
      image:图中显示了如何关闭 7120 或 7320 控制器风扇盖
  10. 7420:安装顶盖:
    1. 将顶盖置于机箱上 (1),使其悬于存储控制器背面上方大约一英寸(2.5 厘米)距离处。
    2. 向机箱背面滑动顶盖 (2),直到它固定到位。
    3. 用双手按下顶盖,直到两个锁扣都啮合。
      image:图中显示了如何关闭 7420 控制器顶盖
  11. 按下每个滑轨侧面的释放卡舌,然后缓慢地将存储控制器推入机架中(请确保控制器路径上没有电缆阻碍)。
  12. 参考先前作为指南而添加的标签,将所有电缆重新连接到其原始端口。有关布线详细信息,请参见 Oracle ZFS Storage Appliance 布线指南
  13. 将电源线连接到电源上。
  14. 确认备用电源已打开(接通电源线之后大约两分钟,前面板上的“电源/正常”状态指示灯将开始闪烁)。
  15. 使用笔或其他尖状物按下存储控制器前面板上的凹陷式电源按钮并松开。电源按钮旁边的“电源/正常”状态指示灯将亮起并保持稳定。
  16. 将数据电缆连接到 PCIe 卡,通过理线架进行布线。
  17. 转到 BUI 的 "Maintenance"(维护)> "Hardware"(硬件)屏幕,然后单击控制器上的右箭头键图标 image:应用图标 。然后,单击 "Slot"(插槽)以验证新组件的状态。联机图标 image:亮起图标 应为绿色。
  18. 如果故障没有自己消失,请参见修复未解决问题
  19. Oracle ZFS Storage Appliance 安装指南中的安装磁盘机框中所述安装磁盘机框并按连接到连接的存储中所述连接扩展存储。